
门式刚架组成
主结构——柱、主梁、楼面梁、托梁、抗风柱、吊车梁(行车梁)、女儿墙立柱
次结构——支撑体系(包括水平支撑、柱间支撑、系杆、制动桁架)、天沟、屋面檩条、墙面檩条、拉条、撑管
连接件——高强螺栓、普通螺栓、花篮螺栓、自攻螺丝、铆钉等
围护结构——屋面板、墙面板、包边等
门式刚架名词

门式刚架结构功能形成原理

一个例子
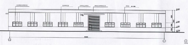
本工程为单跨单层钢结构建筑
跨度24米,柱距6米,总长度60米,檐口高度6.8米,牛腿标高5.0米,女儿墙标高8.6米;
建筑布置见建筑平面、立面图;
吊车荷载2台
起重量5t
起重量3t
平面布置图

立面布置图


刚架剖面图

柱的部件

梁的部件

柱间支撑

水平支撑

系杆

隅撑

吊车梁

框架组成
主结构——柱、主梁、次梁、女儿墙立柱 、楼梯间的构造柱
次结构——楼面加强件、支撑体系(柱间支撑)、天沟、屋面檩条、墙面檩条、拉条、撑管
连接件——高强螺栓、栓钉、普通螺栓、自攻螺丝、铆钉等
围护结构——屋面板、墙面板、包边等
框架外围尺寸的简介

特殊构件介绍
天窗(气楼)——通风、采光、美观的功能,天窗的样式比较多,常用的是人字型和圆弧形
通风器——无动力和有动力两种,它们的构造防水要求比较高
其他一些功能性部件——采光板、窗(塑钢、铝合金)门、落水管、排水沟等,这些东西比较好理解
人字型天窗

圆弧型天窗
