
这是一个位于北京的项目,是将一个原有的三层建筑改造为爱之园幼儿园的室内设计项目。“IBG”三个字母分别是英文“Inspiring”, “Bi-cultural”和“Green”的首字母,代表了该项目中的三个主旨:启发灵感,二元文化和绿色环保。



尽管许多人强调他们要求的是一个易于维护并易于成年人使用的建筑,但在这个项目中,设计师将儿童的使用和学习作为主要的标准。为了更好的支持学校的教育理念,该建筑的结构中充满了自然元素,以便于孩子们在宜人的绿色环境中学习,这样的设计理念对于这个城市中的社区来讲是十分罕见的。屋顶被改造成“运动花园” ,这是一个简单的露台花园,可以激发孩子们对运动和锻炼的兴致。


校园中的庭院是一个“学习花园”,花园中种植了的植物既有各种本土品质又包含了许多外来的植物,这也吸引来了许多种昆虫和鸟类,这也使得孩子们更容易感受并理解季节的变化。



教室的设计在保证了其功能性的同时也并不复杂,孩子们可以在其中感觉到许多自然元素,例如闻到植物的气味,感受到风吹过,听到水的声音等,从而将整个建筑着重在了其丰富的外部环境上。



房间内饰则根据其类型的不同而使用到了不同的表面材料和大小比例,这样也创造出了一种特殊的空间感。图书馆的墙壁,书架和天花板都使用到了木材,这样使环境更显得温暖而又简洁。在美术教室中,设计师探索了混凝土和木材的不同材料和质地,并随机化了书架的尺寸,所以思想可以在这里漫步,也能开发孩子们探索的创造力。






STEM教室十分的宽敞,使用白色砖块砌成,非常适合用于进行需要集中注意力的活动。这个建筑是北京这个‘钢筋森林’大都市中的为数不多的“自然环境”;在这里,孩子们被鼓励着通过玩耍,观察,学习来不断成长并来发现自己。

项目图纸

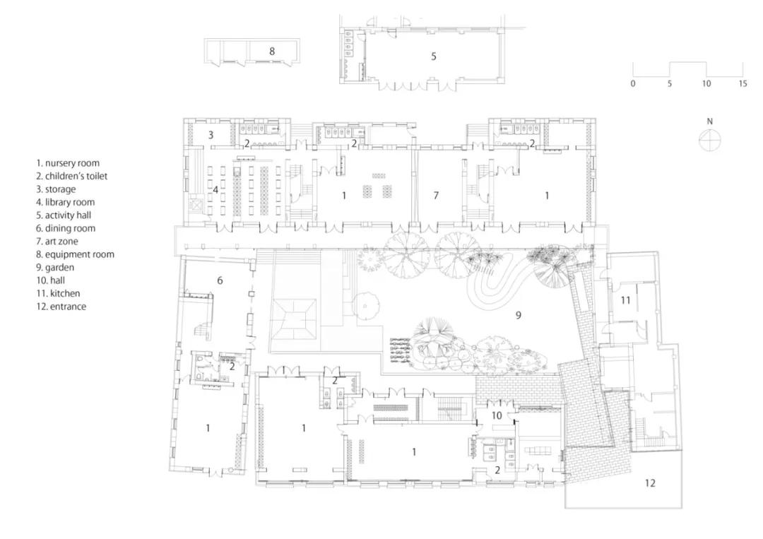
首层平面图

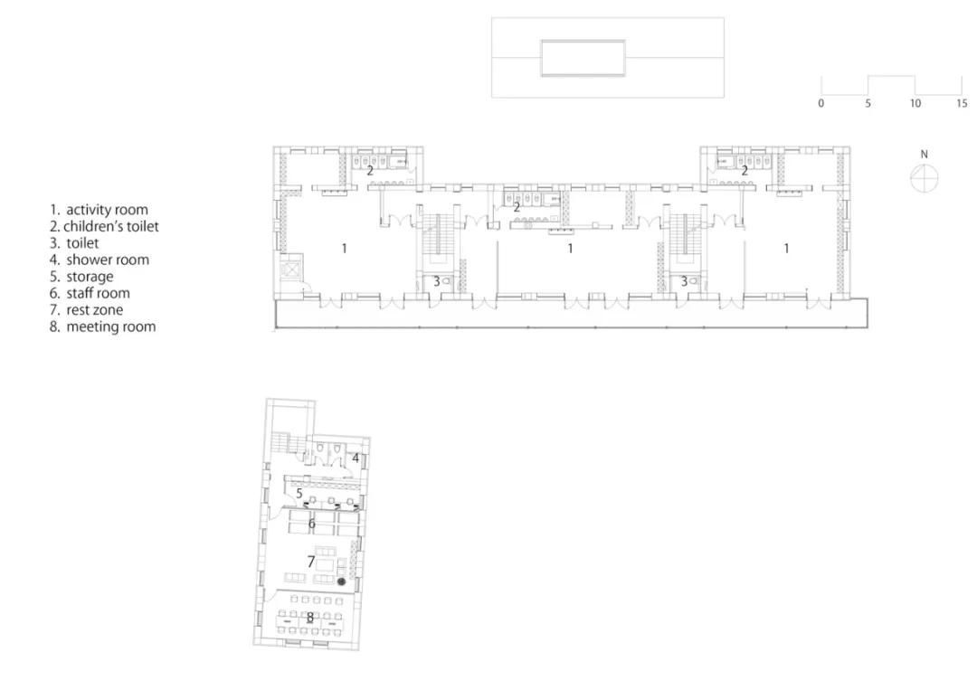
二层平面图

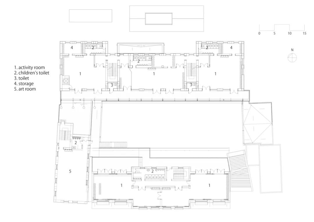
三层平面图
项目信息
建筑师:日比野设计,Kids Design Labo,Youji no Shiro
地址:北京,中国
项目年份:2019
摄影师:Taku Hibino
建筑面积:3000.0 m2
主创建筑师:HIBINOSEKKEI, Youji no Shiro, KIDS DESIGN LABO