现代风格深受年轻一族的追捧,小编手中有一个这种风格的装修案例,房子来自首创光和城小区,124平米,二居室,半包的装修方式,一共花了3万,我们看看实际的装修效果。
装修公司:天津阳光力天装饰旗舰店预算:3万风格:现代案例套数:29727更多
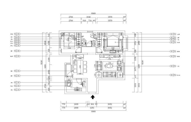
户型分析本案为天津津南首创城其中一户型,两室两厅一厨一卫标准户型,下面是对本案的一个简单的介绍。本户型一进门有一个简短的玄关,左手边为厨房、餐厅和一个小阳台;厨房、餐厅独立分布,开敞使用;厨房宽敞明亮,通风良好;独立餐厅,闲逸时会聚三两知己共饮,举杯碰杯时,彼此心情不约而用。狭长的过道将餐厅和客厅划分分明;右边是客厅,方正的客厅,空间充裕,当阳光洒落,尽揽窗外明媚风景;入户门的前方是卫生间,明卫有助于卫生间的通风换气,保持干燥;卫生间左右为卧室,这样的布局,即方便使用又能保证两个卧室的隐私。设计说明本案为天津津南首创城其中一户型,两室两厅一厨一卫标准户型,户型布局规整,功能分区大体合理,房间功能性强,故定位为现代简约风格。本户型一进门有一个简短的玄关,可以放置一个简单的鞋柜,使玄关面积不浪费;顺时针方向首先为厨房,厨房宽敞明亮,紧挨餐厅方便就餐,独立餐厅,能更好的用餐,餐厅狭长,故在桌子一边放置餐边柜;其次为卧室,地面用强化地板铺装,使得卧室休息环境更加温馨,两个卧室之间是卫生间,卫生间地面铺装300*300的防滑砖,保证安全;最后,方正的客厅,整洁明亮,与餐厅通铺800*800的大地砖,与餐厅为一整体,顶面用回字来划分区域,过道用3个回字,来丰富过道。整体设计简奢明亮,色彩丰富,带给人以身心愉悦的感受。
客厅是家居设计的核心区域,是我们长时间活动的区域,也是客人来访时的主打区域。客厅设计的好坏对于家居整体的颜值有很大的影响。

顶面用回字来划分区域,过道用3个回字,来丰富过道

本户型一进门有一个简短的玄关,可以放置一个简单的鞋柜,使玄关面积不浪费

客厅,整洁明亮,与餐厅通铺800*800的大地砖,与餐厅为一整体。
对于卧室来说,我们家家户户生活中最不能少了,卧室的功能主要是睡眠休息,属私人空间,不向客人开放,所以卧室的私密和温馨是我们装修时需要注意的。

地面用强化地板铺装,使得卧室休息环境更加温馨

整体设计简奢明亮,色彩丰富,带给人以身心愉悦的感受。
餐厅是一家人享受美妙用餐时光的重要场所,好的设计能让用餐氛围更加温馨,让享用美食也成为一种无上的乐趣,而每一种风格的餐厅,都显示出其主人的不同品味与性格。

独立的餐厅,能更好的用餐,餐厅狭长,故在桌子一边放置餐边柜
以下就是本套首创光和城小区95平米二居室房子的户型图。

本案为天津津南首创城两室两厅一厨一卫标准户型
以上首创光和城小区95平米二居室的现代风格设计案例,看完后你喜欢吗?通常情况下,95平米的二居室是比较通用的户型,现代的设计装修风格更加的随性,更能体现出主人包容和大气的个性。如果你喜欢这套案例的话,不妨在装修的时候借鉴起来。