一、江安县简介:
江安县隶属于四川省宜宾市,位于四川南缘,长江之滨,地处宜宾、泸州、自贡三市之交,38公里长江水道穿境而过,冠称“万里长江第一县”。因盛产夏橙和竹资源丰富而享有“橙竹之乡”美誉。众所周知,宜宾市是万里长江首城,金沙江与岷江水系在宜宾市城中心汇流成为长江,由于南溪县改制成为宜宾市的南溪区,因此江安县替代南溪成为了万里长江第一县。


江安县享有“中国橙海和竹海故都”之称,历史悠久,文化深厚。江安县拥有夕佳山古典庄园、国立剧专旧址、江安竹工艺、江安奇石四大文化品牌,同时是四川省历史文化名城、四川省文化先进县。
二、江安县基础设施建设:
江安县城有一江两河穿城而过,水系发达,其中长江流域经过江安县达到了38公里,县城中心有淯江河和天堂河水系穿城而过。
1、在建长江二桥
四川江安第二过江通道是《长江经济带综合立体交通走廊规划(2014—2020年)》中的四川长江干线主航道17座过江通道之一,也是四川省沿江综合交通运输体系中的重要组成部分。该通道是S214江安县迎安镇至兴文县古宋镇快速通道控制性工程,连接4条高速(厦蓉高速、成自泸高速、宜泸高速、宜叙高速)、3条国道(G353、G246、G547)、3条省道(S213、S310、S311)、8条县道,建成后将极大地促进国、省道路路网的完善和长江上游川南区域经济的发展。

江安长江二桥起于江安县长江北岸阳春工业园区阳春村,是拟建的江安S214线江安县迎安镇至兴文县古宋镇一级公路(迎红路)上的长江过江通道,大桥上跨工业大道东段、东延路、沿江路及长江,然后上跨G246,止于怡乐镇柏杨湾,南与宜泸渝高速公路相接,北与G353宜南阳路快速通道相连。

江安长江第二公路大桥全长约2280米,其中主桥全长1775米,桥型采用(2×45+75+2×400+75+2×45)米三塔混合式结合式梁公路斜拉桥。设计速度为60公里/小时,桥梁净宽29.5米、双向六车道一级公路标准,通航净高为18米,总估算投资约11.9亿元。

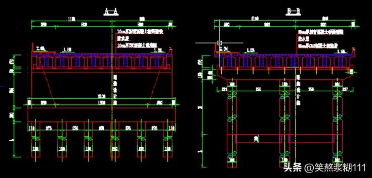
2、已建通车的淯江河高架桥:
2016年我有幸参与江安县沿江淯江河高架桥的施工,该桥于2017年12月正式通车,桥梁线形沿淯江河一直到长江河堤,线形非常壮观,极大的便利了整个江安县老百姓的日常出行。我们从下图就可以看出两个河流水系颜色不一样,淯江河是内陆支流,浑浊水是长江,淯江河高架桥就是沿着淯江河尾巴汇入长江而建。

县城围绕 “一江两河六岸”四面环水、背靠青山的资源禀赋,在城市建设中按照“有山有水有乡愁”城乡统筹发展理念做活山水文章。目前已建成淯江滨河公园、长江滨江景观——亲水滨江沙滩、游艇码头、天堂湖·天堂河等以水为主题的城市美化公共设施工程,初步形成“城水共生、人水和谐”的现代城市风貌。

高架桥桥梁全长771m,孔跨布置为4×25m+12×20m+25m+2×20m+14×25m。全桥分为8联,均采用桥面连续。其中第17孔桥跨结构为跨越规划堤坝而设。现在这个高架桥已经成为当地老百姓晚上散步的最好出处,远眺看长江,近看淯江。



桥梁横断面布置同道路总体布置。按双向四车道加单侧人行道(靠河侧)设计,标准横断面组成为:3.5m(人行道)+2×8m(车行道)+0.5m(防撞墙)=20m。

淯江河高架桥全桥共计132根桩基,我克服了长江涨水洪期影响仅用4个月就完成了全部桩基施工任务。

下部构造圆形墩柱共计96根。墩柱直径为1.6米。

上部构造为预制T梁,T梁长度分为25米和20米两种型号。


江安县淯江河高架桥于2016年1月开工,于2017年12月通车,两年工期完成,总造价8千万元(包含路基)。

三、江安县必去打卡景点长江竹岛:
江安县重点打造项目就是长江竹岛,长江竹岛是全国最大的江中岛生态博览园,是长江上游首个以竹生态、竹文化为主题的生态博览园,也是全国最大的江中岛生态博览园,全岛共栽植竹类植物400余种。


长江竹岛之前名叫河中村,因为形似牛角,江安本地人又叫它牛角坝。它西临长江,东临淯江,是长江和淯江的分流处,地势较高,为两江中间自然形成岛屿。

长江竹岛的设计邀请了英国剑桥大学建筑学院ALan院长领衔的设计团队,以及国内外顶级专家的亲临指导,从而无论是规划设计还是建设方面都达到了世界级水准。长江竹岛的整体设计是以一环、一带、两脉、四区、四动线、二十四节点构成,形成一条3.5公里的活力环线,一条4.5公里的亲水漫步带,同时以江安竹脉和长江水脉两条故事线通过区域景观功能设计,给市民提供观、感、识、玩四大体验。


四、江安县夜景:
夜幕下的江安县城道路流光溢彩,桥梁灿烂生辉,入夜的江安,在母亲河长江的孕育下闪耀着色彩斑斓的灯光,照耀着这座小城夜行人回家的路,也照亮了这个静谧城市的繁华。



也许节假日邀约三五小伙伴在江安来一次华灯初上的邂逅,自是再美好不过了。