什么是北欧风格:
北欧风格(Nordic style)是指欧洲北部国家挪威、丹麦、瑞典、芬兰及冰岛等国的艺术设计风格(主要指室内设计以及工业产品设计),具有简洁、自然、人性化的特点。
今天小艺和大家分享一套秀山郡117m²北欧风格设计案例。
设计师:

陶琳
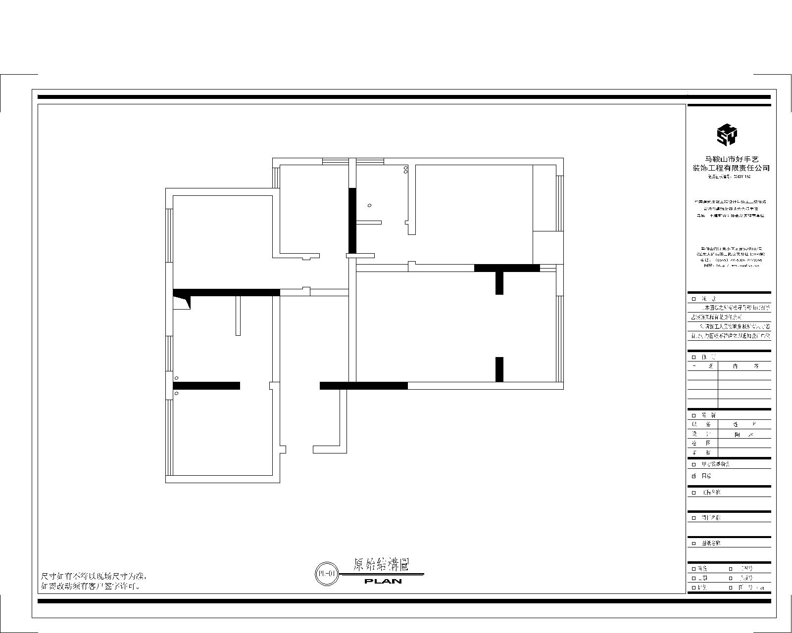
原始户型图:
面积:117m²
户型:四室两厅一卫
风格:北欧

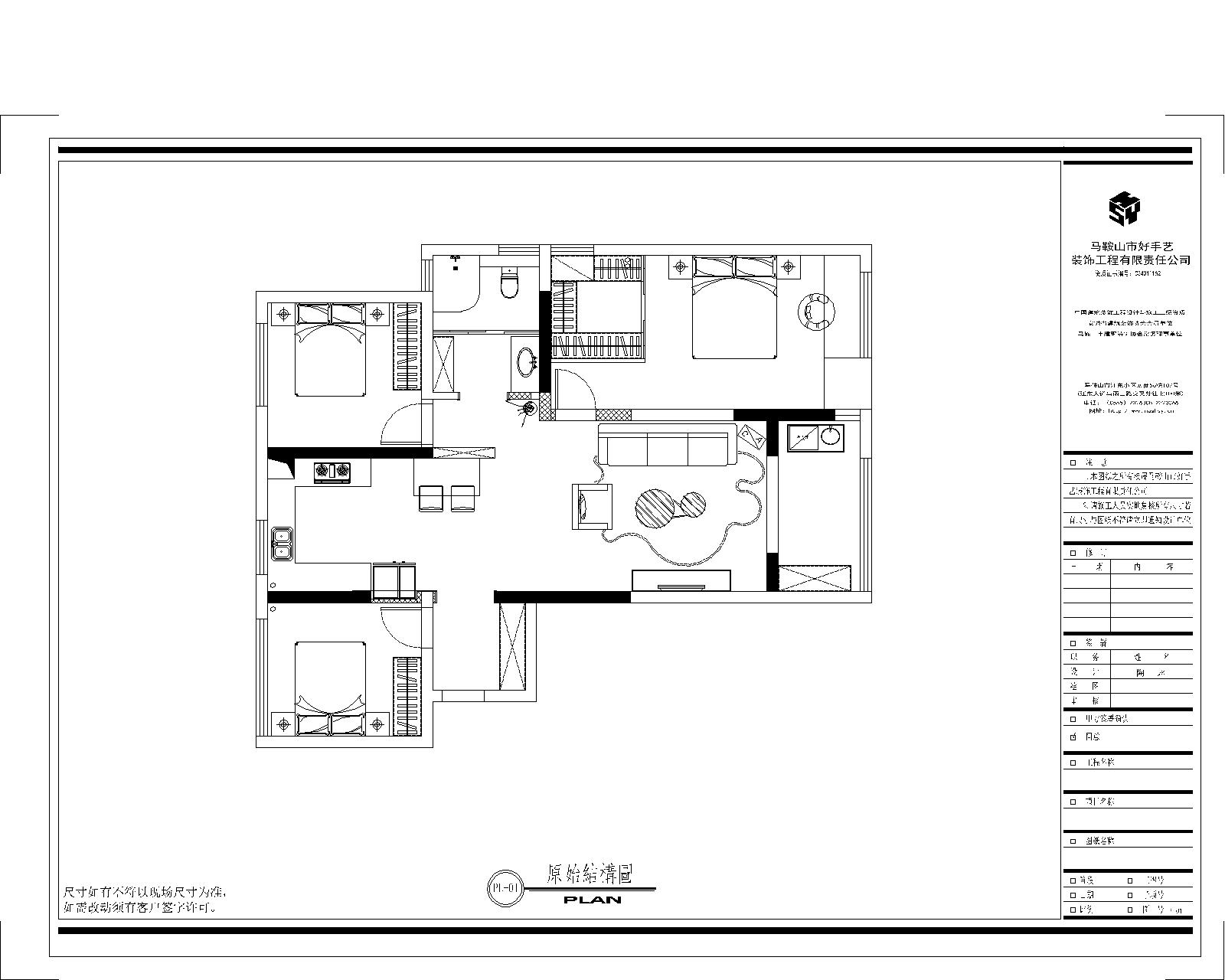
平面设计图:

户型改造分析:
①.对原厨房的单墙进行拆除,做成了一个开放式的厨房。
②.由于业主对餐厅的需求不大,考虑到用餐时间不多,设计师对厨房和餐厅做了连体处理,拆除了餐厅连接客厅和厨房的单墙,并做了一个酒柜,使空间利用的更合理,也显得客厅更大一些。
③.考虑到日后可能会有聚餐的情况,将原来的岛台改成了活动的餐桌,方便以后使用。
④.西北房间改了房门位置,增加厨房的面积。
⑤.入户门洞改为8公分的单墙砌,改变南房间房门位置,留下了双门冰箱的位置。使冰箱在厨房不显得笨重。
⑥.这个房型最大的改动是卫生间的移位:这是一个原本四室两厅一卫的房型,但是卫生间旁边的小房间只有六平方...由于业主想要一个衣帽间和一个大卫生间的需求,所以设计师做了一个大胆的设计:将两个位置互换.既满足了衣帽间的需求,也同时扩大了主卧,还有一个干湿分离的卫生间;很好的解决了业主的问题,也同时解决了房子上半部不规则的房型,变得规整,完美解决了尖角的位置。
⑦.主卧的飘窗的改动给业主增加了书桌和梳妆台的功能。
平面效果图:

绿植不仅可以净化空间,也是室内必不可少的装饰品,有人说北欧风格缺少绿植的点缀,就会豪无生机,可见其重要性!

简洁小巧的家具是北欧风格的特色,实用又精致!

客厅整体简洁清新,家具都是原木打造,清新自然,贴近生活。

干净简洁的北欧风格厨房,让下厨也为一种享受!
本套设计方案中大量使用原木色,赋予了空间大自然朴实的气息,舒适、干净、素雅、温和,每次回到家都是一次心灵的放松。家就应该这样,虽然承载着疲惫,更重要的是也开启了幸福!
以上就是小编分享的马鞍山秀山郡117m²四室两厅一厨一卫户型设计方案,喜欢的话就关注我们把,小编会不定时更新更多精彩户型案例哦~