结庐在和山,拂林连晓雾。
烹茶读闲书,回眼望修竹。

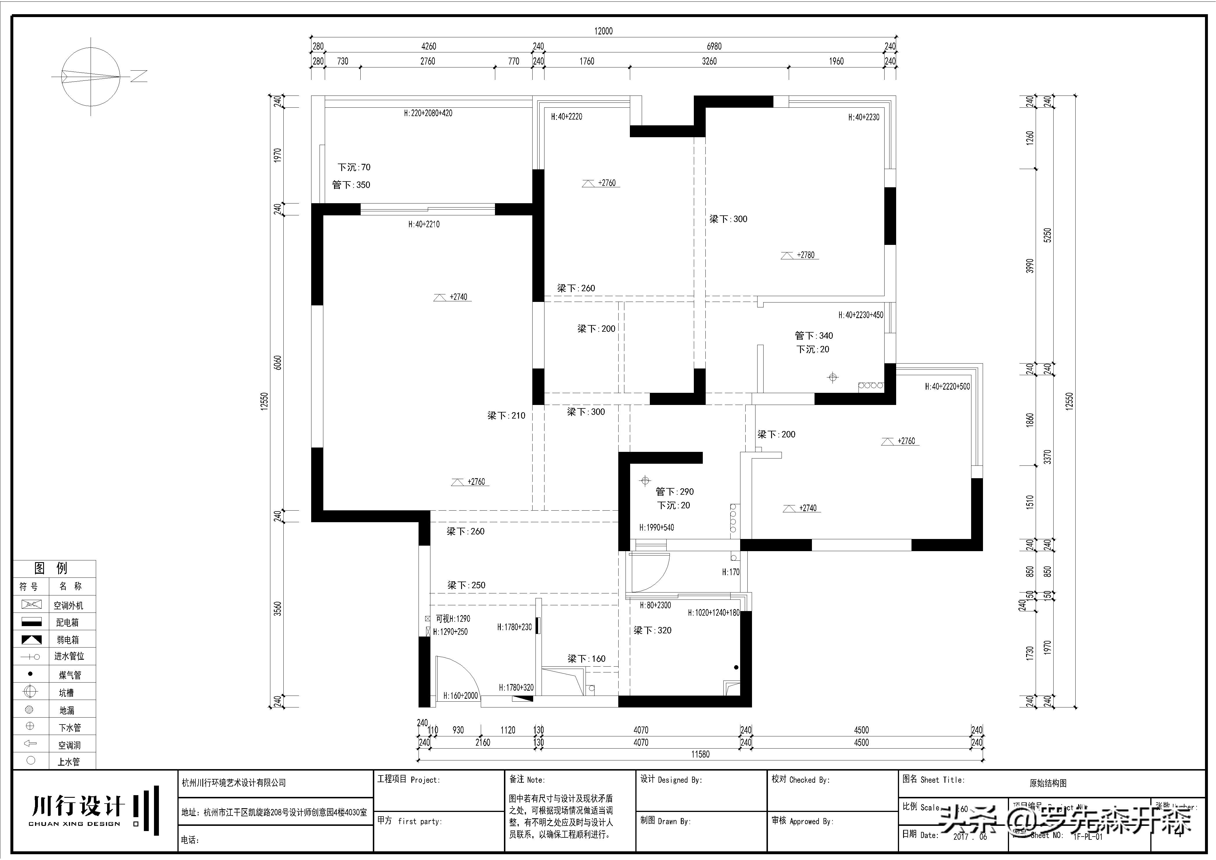
平面图

项目小区:浪漫和山
户型:三室二卫两厅一厨一阳台
建筑面积:138
设计单位:川行设计
风格:新中式混搭
设计材质:墙纸、乳胶漆、KD板、烤漆门板等
业主自述:
家是生活的起点又是终点。无数次设想过自己未来的家是何般模样,绝对不单单是一个能睡觉,能吃饭的住所。 家里的一本书、一封信、一帧照片都可能是我对家的不同设想,也可能是每天下班后,能让人无限放松的就是我最想要的家的模样。对中式一直有一种情有独钟的喜爱,但与此同时却又不想失掉现代感,所以既冲突又融合才是我想要的家的基调。

















