
小米,是一家快速崛起的现象级科技企业,短短十年,从一家初创公司成长为营收超2000亿人民币、历史上最年轻的500强公司。10月12日,胡润百富发布《2020胡润中国10强消费电子企业》,小米以4340亿价值排名第二,仅次于华为。
伴随着企业体量增长,小米以北京为总部,在多地布局科技园及区域总部建筑。其中,华东总部落户南京。

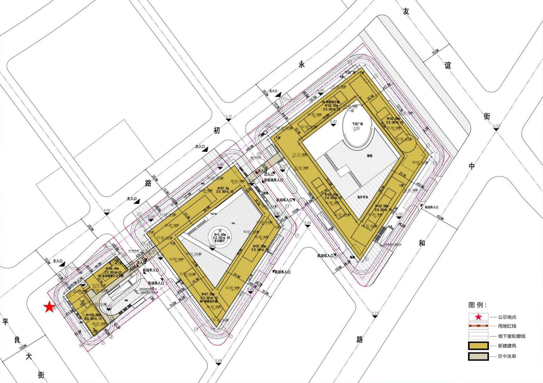
小米集团华东总部项目位于南京市建邺区,西至平良大街、东至友谊街、北至永初路、南至中和路,总用地面积约为59550平方米,由三栋几何形建筑组成。
项目规划的一大亮点在于“园中园”,其结合了江南历史文化特色与当地的人文习惯,用现代手法演绎传统空间,重塑在园区中的人际关系与产业网络。

在整体结构上,建筑师着重强调内在空间的功能体验,在有限的空间内实现功能的无限延伸,营造绿色生态的办公环境,“体验型”、“人文型”、“循环型”三型合一,“适应性”、“生长性”、“复合性”机动灵活,打造具24小时活力的综合体。

三栋建筑相互间由连廊贯穿,跨越两条街道的隔离。这一设计,模糊了街道对项目整体产生的分离作用,使得各办公空间、交流空间、休憩空间相互渗透,融合办公、休闲、社交、生活等多种功能。

创始人雷军曾说,小米在北京创业五年,几乎一年搬一次,五年内数次搬办公室,跟北漂一族频繁搬家如出一辙,为的是在繁华城市寻得自己落脚处。十年后的今天,小米建有南京小米华东总部、广州小米华南总部、重庆小米华西总部、深圳小米国际总部、上海小米生态链产业园、武汉人工智能总部,以及北京的小米移动互联网产业园、小米电子产业园、小米智慧产业园。
在一系列的“米楼”中,小米迈入下一个十年。