2017年7月29日
时光印象营销展示中心暨景观示范区开放
现场吸引了众多购房者及媒体到场
1时光印象营销展示中心暨景观示范区开放
2017年7月29日,时光印象营销展示中心暨景观示范区开放,现场吸引了众多购房者及媒体到场。





2017年1月17日下午,新城以单价1027.48万/亩竞得滨湖区BH2016-15号地块;5月5日项目定名为“时光印象”。

6月4日,纯新盘时光印象正式启动10万元的初级验资,作为房企合作开发的项目,且位于金融板块,一直以来项目的一举一动颇受关注,验资首日即有上百组购房者到场。

目前,项目规划也已经出来。

从规划中我们可以看出,时光印象位于滨湖新区贵阳路与四川路交口西南角。主打高低配产品,小区内主要是以高层为主,一共20栋高层平层住宅,洋房层高都在8层左右,共10栋。
项目具体信息
【总用地面积】:115491.52㎡
【总建筑面积】:330881.08㎡,地上建筑面积254081.34㎡
【规划住宅】:20 栋高层平层住宅(层数 18 层、24 层及28 层)和10栋洋房,2260户
【主要建设内容】:住宅、配套商业等
【容积率】:2.2
【建筑密度】:22%
【绿化率】:40%
【停车位】:机动车停车位2516个

拟新建滨湖新区BH2016-15地块规划总平面图

拟新建滨湖新区BH2016-15地块规划鸟瞰图
22260套房源,打造人文综合住区
时光印象
据了解,项目由万科、新城、保利三家联合开发,新城物业。项目规划为装修高层和洋房,共计2260套房源,建筑面积95㎡、105㎡、120㎡、138㎡,其中138㎡位毛坯洋房,其他三个户型分别为装修高层和小高层,预计8月首开。
项目卖点
1
二轴三园景观体系:规划樱花大道和梧桐大道,小区景观自成特色。
2
围合式社区布局:小区分为3个组团,组团之间相互交流,分散公共交通压力,形成开放的交流社区;组团内部相对封闭,保证住户的相对隐私。
3
内部配套完善:项目内部规划幼儿园、小学、初中;养老中心、社区营地和便利超市。
4
新城物业:专业从事物业管理与服务,具有国家一级资质,为中国物业服务协会常务理事单位。
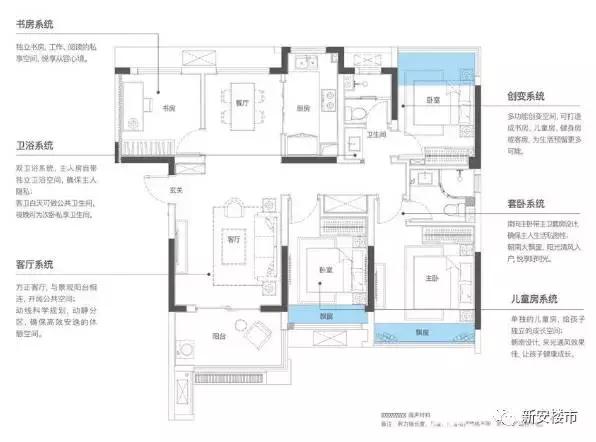
户型赏析
99㎡的A1户型3室2厅

99㎡的3室2厅户型方正,动静分区明显,入户处设有玄关,进入室内具有很好的缓冲空间;双厅相连,公共活动空间集中;双卧相连,南向设计,通风采光都很好。
118㎡的C1户型4室2厅
118㎡的4室2厅方正客厅,动线科学规划,动静分区;套卧系统,生活私密性强;多功能创变空间,满足不同需求。
141㎡的Y1户型4室2厅
141㎡的4室2厅,有大面宽阳台,视野宽阔; 豪华主卧,生活更从容;入户玄关,更有儿童房系统,整体动静分区,生活怡然。
周边配套
1周边环境
项目周边五园一湖,北涝圩湿地公园、金斗公园、塘西河公园、滨湖湿地公园、岸上草原、临巢潜水城、五大公园,自然资源丰富,形成天然的氧吧,满足人们日常休闲娱乐生活。
2交通优势
项目周边三条地铁线,分别为:地铁1号线、5号线、7号线,其中该项目距离地铁5号线贵阳站不足五百米;公交方面:42路、61路、63路、T15路、531路。地铁站均衡设置,公交站纵横分布,高铁与地铁直接转接,交通方便快捷。
3教育资源
滨湖虽属新区,但是教育资源丰富,众多学校遍布,拥有一站式教育资源。小区出门合肥师范附小第三小学,仅一路之隔还有阳光中学。合肥师范附小贵阳路校区,占地63亩,规划72班。

合肥阳光中学四川路校区,占地75亩,规划60班。目前中小学均已通过消防验收,预计2017年秋季投入使用。另外,周边还将新建1所国际学校,占地约200亩,采取K15(“K15”模式,即3(幼儿园)+6(小学)+3(初中)+3(高中)的一站式精英人才培养计划)计划2018年建成招生。
3三大信号告诉你金融板块要火!
滨湖金融后台基地板块,这些年,已经有20多家金融机构总部入驻,总投资超250亿元,提供20万的产业人口,早已奠定了板块潜在的发展。时光印象项目正处于该板块中,加之由万科操盘,品质有口皆碑,现验资已超千组,首开又将是一场抢房大战。
1 金融后台基地板块
今年2月,安徽省人民政府办公厅印发《安徽省“十三五”服务业发展规划》,提出支持合肥依托滨湖新区国际金融后台服务基地,打造国家级金融服务中心 。近日,《合肥市“十三五”金融业发展规划》发布,并指出滨湖区将成为重点升级的金融核心区。

2 品牌房企抢驻
随着万科、新城、保利、正荣等品牌开发商的入驻,购房者对金融板块又有了更多的期待,一方面品牌开发商的投资进入无疑是认可了板块的成长性,另一方面品牌房企的影响力又将会推动金融板块的壮大。
32017滨湖67%优质地块集中在金融板块
在今年公布的优质地块中,滨湖供地477亩,其中298.63亩在金融板块,包括最大的220亩商住用地和滨湖今年唯一的45亩纯住宅用地。这无形中在暗示,无论是商业还是住宅,今后金融板块将成为滨湖的重点区域。

随着滨湖一批批相对“低价”楼盘被内部团购或者暗开完以后,购房者要想入驻滨湖的话除了入手二手房就必须面对以上这些2w以上的纯新盘了。

从荒芜之地到高楼耸立,从房价3000元/㎡涨至2万/㎡以上,最高3—4万/㎡。发展10多个年头的滨湖新区不仅体现了合肥新区建设的速度,同时也是合肥楼市的风向标,它的一举一动备受瞩目。
2008年微涨至3800元/㎡,2014年正式破八千,到了2015年7月滨湖新区住宅均价突破9字头,涨至9407元/㎡,到了2016年,合肥楼市上最为关键的一年,也是各区的房价急剧上涨的一年,其中以滨湖新区为最。2016年,全国房价涨幅最大的是合肥,全国房价涨幅最大板块是滨湖新区。
2017年滨湖新区5月份的新房均价为16683元/㎡,最贵的楼盘未来入市价格都已经到了3.5万/㎡以上了。
从3000元/㎡到如今的最高预计入市的3—4万/㎡,滨湖房价在2006年到2017年之间,房价上翻了10倍以上,准入门槛也不是一般的刚需能够迈得进的了。
滨湖部分二手房楼盘价格一览
| 项目 | 5月价格 (元/平) | 6月价格 (元/平) | 环比 变化 |
| 滨湖欣园 | 12785 | 12865 | 0.62% |
| 滨湖瑞园 | 11866 | 11936 | 0.59% |
| 万达城未来领地 | 11768 | 11951 | 1.53% |
| 滨湖假日翰林院 | 19162 | 19293 | 0.68% |
| 滨湖世纪城琼林苑 | 12634 | 12697 | 0.50% |
| 滨湖高速时代广场 | 14900 | 14972 | 0.48% |
| 滨湖假日枫丹园 | 20135 | 20232 | 0.48% |
| 万科蓝山 | 21254 | 21354 | 0.47% |
| 万达文旅城 | 17018 | 17050 | 0.19% |
| 滨湖世纪城春融苑 | 17309 | 17354 | 0.26% |
| 滨湖世纪城徽贵苑 | 16171 | 16199 | 0.17% |
| 蓝鼎观湖苑 | 17626 | 17652 | 0.15% |
| 滨湖家园 | 18093 | 18115 | 0.12% |
| 淮矿东方蓝海 | 16931 | 16945 | 0.08% |
| 滨湖世纪城徽杰苑 | 16695 | 16707 | 0.07% |
| 滨湖世纪城徽昌苑 | 17895 | 17906 | 0.06% |
| 碧桂园滨湖城 | 10759 | 10763 | 0.04% |
| 滨湖假日清华园 | 18394 | 18400 | 0.03% |
| 滨湖品阁 | 22097 | 22097 | 0.00% |
| 蓝鼎滨湖假日 | 20225 | 20225 | 0.00% |
| 书香门第 | 22631 | 22631 | 0.00% |
| 滨湖世纪城树荫苑 | 16865 | 16865 | 0.00% |
| 滨湖慧园 | 16098 | 16098 | 0.00% |
| 绿地滨湖印象 | 13603 | 13603 | 0.00% |
| 滨湖万科城 | 19103 | 19101 | -0.01% |
| 滨湖世纪城振徽苑 | 16079 | 16076 | -0.02% |
| 旭辉御府 | 18633 | 18629 | -0.02% |
| 万达文旅城揽湖苑 | 17694 | 17680 | -0.08% |
| 滨湖世纪城临滨苑 | 16981 | 16966 | -0.09% |
| 保利拉菲公馆 | 18090 | 18072 | -0.10% |
| 滨湖和园 | 15852 | 15835 | -0.11% |
| 中海滨湖公馆 | 19253 | 19232 | -0.11% |
| 宝能城 | 16141 | 16122 | -0.12% |
| 高速时代城 | 18025 | 18002 | -0.13% |
| 滨湖世纪城 | 16378 | 16345 | -0.20% |
| 利港银河广场 | 14700 | 14663 | -0.25% |
| 中铁滨湖名邸 | 17364 | 17317 | -0.27% |
| 佳源巴黎都市 | 17354 | 17307 | -0.27% |
| 滨湖万达揽湖苑 | 19070 | 18994 | -0.40% |
| 滨湖假日金榈园 | 21691 | 21419 | -2.27% |
5月份滨湖区的二手房市场出现了环比0.2%的下跌,目前均价为17835元/㎡ 。通过以上小区房价涨跌情况可以看出,目前滨湖房价上涨的小区主要集中在环湖CBD板块,涨幅在0.5%左右。滨湖个别二手房价格有所下跌,但整体仍然呈上升趋势。
滨湖未来规划
国家级滨湖新区将启动编制工作
前段时间召开的城市管理提升年动员大会上,合肥市市长凌云也透露了今年“大建设”的工作安排。其中就提到了“目前正在申报中的合肥国家级滨湖新区,将在今年启动编制工作。”
滨湖新区文化旅游产业集聚区实施方案获批
近期,《合肥市滨湖新区文化旅游产业集聚区实施方案》(以下简称《方案》)获省发改委批复并通过,滨湖新区将打造“一带、两翼、三区”和七大活力区域。

滨湖新区管委会相关人士表示,按照规划,滨湖新区文化旅游产业集聚区将打造国际水准的多元化滨湖岸线、独一无二的巢湖文化传播中心,成为全省文化集中展示区和新的世界级旅游目的地。
滨湖将建生态科技文化新城
从安徽合肥公共资源交易中心获悉,合肥规划在滨湖建设11.6平方公里的生态科技文化新城,目前正在招募一期建筑的“设计师”。
据悉,整个新城将南依巢湖,东邻都市乡村旅游区(东大圩)和滨湖国家森林公园,将是全省第一个创意文化发展集聚的崭新基地。率先开建的将是启动区,总面积约140亩。
新增九所学校提高教育质量
2017年,滨湖区将新增九所学校,分别是:南宁路小学/中学、万慈小学、金斗路小学、师范附小第三小学贵阳路校区、望湖小学洞庭湖路校区、滨湖国际双语学校、新四中、嘉陵江路中学。
改善出行条件
正所谓“无地铁,不城市”,一个城市有无轨道交通将影响整个城市的发展。而合肥首条轨道交通已正式进入开通运营倒计时阶段。其中,轨道交通1号线也经过滨湖区,相信未来肯定会带动滨湖区的人流和经济发展。
改善生活设施
安徽省科技馆

该项目建设内容包括展览教育用房、公共服务用房、业务研究用房、管理保障用房、地下车库、人防、设备用房以及室外科普、活动场地等,概算约4.83亿元。目前该馆的主体结构已完成,正在进行屋面钢结构安装。
安徽省美术馆
主要建设内容为省美术馆,省书画院,省考古所,省美协、书协业务用房、肖龙士艺术馆、设备、人防、地下车库等附属配套用房。该项目有望明年启用。