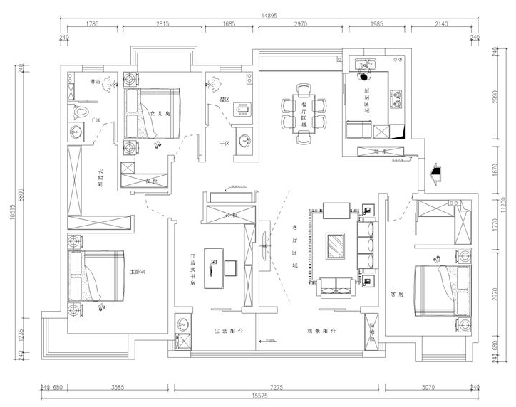
现代大气的装修布局风格,这让个大户型的装修布局更有特色,在墙体的收纳方面非常充分,玄关采用了整面墙的收纳柜,更方便实用,而走廊的收纳,让展示也起到了更好的效果,绿地中央广场装修设计效果图分享给大家。
案例小区:襄阳绿地三期
装修风格:现代简约
房子户型:4室2厅1厨3卫
参考造价:半包9万

襄阳绿地广场三期,170平现代四居室半包9万

襄阳绿地广场三期,170平现代四居室半包9万

襄阳绿地广场三期,170平现代四居室半包9万

襄阳绿地广场三期,170平现代四居室半包9万

襄阳绿地广场三期,170平现代四居室半包9万

襄阳绿地广场三期,170平现代四居室半包9万

ps:你,房子要装修?
免费算自己家全包、半包,装修报价水电、材料报价!
戳下方图片【10秒获得装修报价】免费获得哦↓↓↓