当前市场下,买房逻辑已发生巨大变化。
从需求催生市场,到转向产品驱动消费,只不过短短一年。
没有人愿意为重复的生活场景买单, 开发商唯有不断提升产品力,为消费者持续迭代空间场景,创建新的生活方式与生活梦想,以更新更好的产品,方能驱动购房者产生换房需求。
产品主义者,将迎来更多市场机遇。
7月22日晚, 黄龙溪谷塔希提 产品发布会 在原生千亩湖山见证之下盛大举行。 约232亩组团,容积率约1.176,仅774户,多种产品形态,均带来令人震撼的尺度提升。不少行业大佬表示,引领人居下一个十年的产品力创新佳作,已然到来。

01#
7月22日,塔希提终于揭秘
7月8日,一座以“塔希提”为名的巨型浮岛空降熙来攘往的春熙路,市民、各界名流争相打卡,引发媒体报道,关于“塔希提”的话题在成都人的社交网络圈刷足存在感。

塔希提春熙路活动现场
7月15日晚,随着“十二载黄龙溪谷全新想象力作品;都会山谷岛屿钜作7月22日全球启幕”的巨型光影空降城南地标建筑双子塔与塔希提金融城展厅的同时点亮,“塔希提”生活方式向2000万人发出邀约。

塔希提双子塔活动现场
这场名为“塔希提”的短暂城市展出,将人们对精神领地的向往唤醒,而展览结束后,我们又能驶向何方?7月22日晚,真正的「塔希提」才正要揭开神秘的面纱。
一次来自大自然的召唤,一次与湖山的亲密互动,唤醒了人们对“塔希提”式生活的渴望。“一席珍藏 每时每刻”黄龙溪谷塔希提产品发布会在百尺飞瀑下全球首映,向往的生活正式登陆成都。
灯光摇曳美轮美奂,来自『沙滩上的塔希提女人』在旷野间优雅起舞,树影婆娑,神游间引导着我们来到世界上最接近天堂的地方——塔希提。在纯净的阿卡贝拉协奏下,我们跟随着画家“高更”的步履不歇,潜入寂静叠嶂的山谷间,温柔地走入『伊甸园之夏』。

塔希提“印象溪谷”发布会现场
在这一处自然隐奢之地,聆听着『天空之声』与自由心灵的弦乐交响,找回久违的平静的“高更”陷入丰盈的自然中。世人所寻觅的如梦如幻的诗意境界不断浮现眼前,伴着曼妙的身姿舒展开来,“高更”与众人共舞,我们也一同感受着四季风光与塔希提的自由和鸣。
此次发布会盛宴上西南首演的全新艺术舞蹈剧《印象溪谷》,特邀成都顶尖编导团队打造,通过全新表演形式及声光电的现代科技完美唤起大家的五感,一起涌动、沉浸,畅享一场自然中的极致视听舞台。
仿佛时光穿梭般,我们于黄龙溪谷中寻觅到这一处自然隐奢之地——塔希提。

塔希提“印象溪谷”发布会现场
到底什么是黄龙溪谷塔希提?“塔希提”式生活是怎样的?发布会上,优品道置地成都区域公司总裁及总经理胡强先生为来宾们分享了“塔希提”背后的故事。在一次与老友同时也是谷主蒋总喝茶闲聊时,胡总问道,即使在城市最好的繁华地段和湖边稀缺资源处拥有了居所,为什么还要在黄龙溪谷买套别墅?思索片刻,蒋总给出了自己心里最诚恳而真切的答案,
“城里的房子是给别人看的,我自己更喜欢黄龙溪谷,这才是买给自己的房子。”

塔希提“印象溪谷”发布会现场
“塔希提”代表着现代人在自然的宁静中去获得力量、去找寻自我、满足自己内心的精神奢求,而今它正式登陆黄龙溪谷。而“塔希提”式生活的魅力,正在于它能让我们从都市里找回人生真正值得珍爱的东西——创作的灵感、健康的身体、亲情、爱情以及对生活的热情。
02#
以想象超越想象
产品革新中隐匿着更高级的生活方式
产品的革新扩展出无限生活场景,迭代的其实是生活方式。它追求健康、自然、自由,正被越来越多的精英人群所向往。 他们更在意身心健康,居住成为纯粹的为生活场景买单的享受型消费行为,购买逻辑类似奢侈品。
而塔希提组团,则以产品的创新,迭代出生活方式的奢侈品。
就像是后印象派代表人物高更厌倦了巴黎上流社会的伪善、焦虑与无奈,放弃六便士而去寻找心灵自由,“塔希提”代表着现代人在自然的宁静中去获得力量、去找寻自我、满足自己内心的精神奢求,而今它正式登陆黄龙溪谷。

塔希提“印象溪谷”发布会现场
现在,它也成为了黄龙溪谷 “塔希提”组团的精神内核: 充满想象力,隐于城市的隐奢岛居生活。
以岛为灵感,黄龙溪谷布局了塔希提组团的产品生态、建筑形态,现代原生感建筑有机生长在千亩桃源与湖水谧境间,消隐红线边界,人如同住在自然,可行,可望,可游,可居。
从指标可以看出,塔希提组团的稀缺。
户均约0.3亩,稀缺低密
塔希提占地约232亩,容积率约1.176,仅规划约774户,这是目前整个成都稀缺的超低容积率组团,在未来更是难得。 如果以户均占比来看,则达到了惊人的户均约0.3亩,堪称稀缺中的稀缺。

黄龙溪谷塔希提效果意境图
建筑隐于林,视野天地宽
从位置来看,则占据着黄龙溪谷的优势资源,在五羊湖、雁归湖的环拥下,以台地自然的高差,形成了不被干扰的独立岛居奢感。湖水与楼宇互相包裹,正如自然与人造握手言和。

黄龙溪谷塔希提布局效果意境图
但山林是否会遮挡低密物业的视野,从而陷入视野窄,格局小的痛点?在黄龙溪谷,自然与建筑不会是互相冲突的彼此,而是相互成就的伙伴。
黄龙溪谷用巧妙地组团排布,完成产品的迭代。北侧布局9F花园平墅组团“森林之帆”;中间则是类独栋、两叠组团“湖山之境” 、三叠组团“陆地之舟”,立于整岛的高点,凭借自然台地高差,畅享湖景视野;而高层先锋艺术大平层“天空之翼”,则在岛屿南侧,近观湖景,远眺山势,将原生溪谷、湿地、山林,尽收眼底。在低密度的建筑规划中,将自然的风景引入到每户人家的视野之中。举步直抵自然山海之间,不用飞越万里,将塔希提的梦想照进现实。

黄龙溪谷塔希提布局效果意境图
塔希提建筑群依山而建,层层退台,力求景观、视野更大化,又让建筑隐于自然,“见山依然还是山”,构建起流畅的建筑天际线。
借力化景,场景多元
对高端住宅而言,视野正成为正向加分项。如何才能更大化利用黄龙溪谷的千亩原山视野?
借外部景观,造内部景观,通过登高、峡谷、望远、林游、花间五大艺术画作主题,打造林间书吧、树梢乐园、森林泳池、滴水洞茶室、崖边发呆亭、疗愈花园、漂浮花园、电梯观景台、悬空泳池、湖畔健身十大景点,以“建筑融入景观、景观融入山水、山水融入生活、生活融入艺术”为理念,借由艺术精神表达属于「塔希提」的谷上森居。

黄龙溪谷塔希提布局效果意境图

黄龙溪谷塔希提布局效果意境图
03#
先锋艺术建筑,为未来居住提案
在发布会之前,已有不少业界人士提前探知了塔希提组团的创新产品力,纷纷前往观摩和踩盘 。
一位业界资深人士感叹:“它打破了市场传统产品的设计桎梏,利用森林坡地地貌,以超大采光面、超大阳台等超越现有低密尺度的建筑设计,向很多国外知名建筑设计师的代表作致敬和挑战。它以设计超越了资源,超越了城市。”

黄龙溪谷塔希提效果意境图
这样的产品出现在黄龙溪谷,毫无意外。
12载匠心造诣,黄龙溪谷作为坚定的“产品主义者”,从铂朗峰到沁云湾,让每个作品皆成时代标杆,而“塔希提”承载了黄龙溪谷在十余年来对城市向往的自然之境所独有的超前探索。

黄龙溪谷实景图

黄龙溪谷实景图
作为领航级产品,在建筑设计上,塔希提致敬世界级建筑大师—— 柯布西耶,以建筑的超大开窗比,带来与自然的*界无**对话。
建筑设计— GAD 建筑设计公司 ,景观设计—— 山水比德 ,均为一线大咖, 为塔希提组团定制出——现代原生质感建筑风格。
这种风格超越了当下流行的公建化立面,旨在营造神秘、自然与松弛感。立面大量采用原生材料并不惜重金,如采用比普通材料质感更优的GRC材质、木纹铝板,再用干挂石材进行无缝拼接,辅以金属构件的点缀,多种材质的对撞,烘托出更高级的审美与质感。

黄龙溪谷塔希提效果意境图
而通体流线型的设计,造型别致,打造出更具国际化地标感的艺术级建筑藏品。
公共区域的打造,也将隐奢级墅感传递到细节: 仅以入户为例,便设计了3大入户,带来场景更丰富的类五星级酒店公区。 以中大堂为例,别致的建筑造型带来艺术博物馆的质感;空中观景电梯,则直达亲水平台,畅享无边视野……

黄龙溪谷塔希提效果意境图
空间尺度,也超越当下想象:
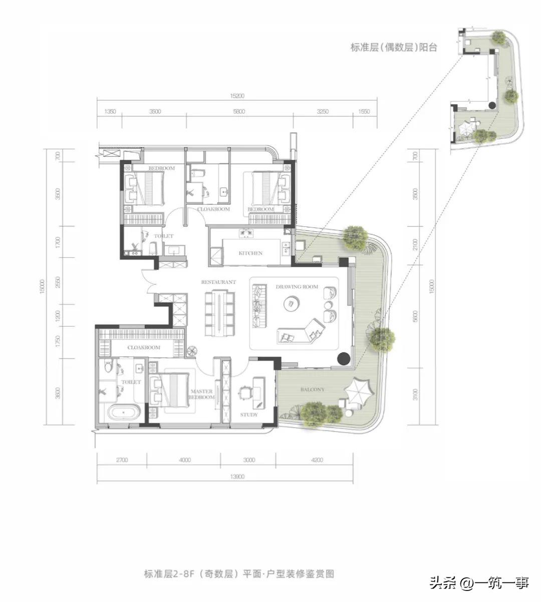
以首开的9F平墅为例,约190㎡户型,在端厅外配置了270度环幕阳台,最大宽度约3.1米。 粗看数据可能无感,但和市面上大部分阳台1.8-2.4米的尺度对比,感受会更加直观,3.1米几乎是目前成都楼市已知的新宽度;

黄龙溪谷塔希提建面约190㎡户型图

黄龙溪谷塔希提建面约190㎡样板间实拍图
艺术大平层则配置悬挑空中私家泳池,它所带来的居住奢享感被业界认为是塔尖配置。 此前誉峰的泳池楼王,便让市场铭记了十年,即使在今天,带泳池的大平层产品也屈指可数,动则千万。

黄龙溪谷塔希提效果意境图
而在叠墅组团,已很少有下叠能做到,坐在庭院中悠然见湖山,而塔希提的临湖大庭院、无边际泳池,则带来一线亲水体验……

黄龙溪谷塔希提效果意境图

黄龙溪谷塔希提效果意境图
塔希提森林之帆美学示范区已同步开放,*界无**视野下的理想生活方式,270°环幕高定样板间盛放,更多产品敬请期待。
在更好的产品主义时代,这样非标准化、难以复制的产品力,才能无惧楼市周期,以建筑藏品的质感,带来审美升级与场景迭代,打开更大的生活想象空间。
引领下一个十年的创新产品,将如何为成都高端生活场景代言?时间会给出答案。