天恒乐墅位于房山区六环沿线,京港澳高速阎村出口向西1500米。紧邻CSD休闲购物区与良乡大学城,周边城市氛围浓厚。 天恒乐墅由双拼和叠拼组成,法式建筑与新古典主义相结合,以清新、亮丽、现代为基调,打破了混凝土方盒带来的凝重和沉闷,“陌上花庭”指引归家的道路。天恒坐享房山CSD繁华配套,购物、医疗、教育、金融等全方位生活。
魏拥军:轻舟装饰VIP设计师,从业17年,对于设计一直要求严格,以客户为本,了解客户需求,满足客户居住品位, 运用光感,色感,质感,塑造灵动空间。而且在个人方面 认为艺术来源于生活,人们不断追求完美,体现生活品质!
下面是魏工设计的作品《天恒乐墅》中式风格:
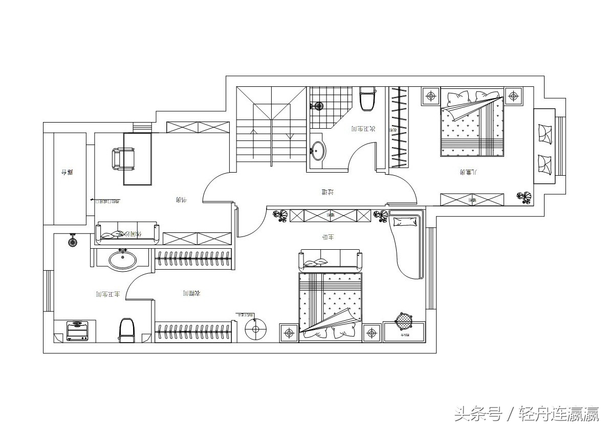
此设计案例面积:180平米(使用面积)
男业主是50左右的中年人,是建筑企业部门负责人,女业主是电子商务人士,业主对中国现代中式红木家具情有独钟,对现代中式风格非常喜欢。












根据客户男业主和女业主的要求综合设计方案,将首层的厨房和餐厅墙体打通,餐厅和厨房融为一体,扩大了厨房、餐厅的通风性、采光性。将原户型楼梯位置进行拆除改造,增加了客厅的功能区。二层南露台进行全方位钢结构改造,扩大储物空间和休闲空间,将二层原房间结构进行全部拆除,从新格局,分配功能区,增加所需空间,将二层全部划分为孩子独立空间,二层合理分配居室,休闲区,工作学习区,打造具有时代感的新中式风格居室。
如果想与这位设计师沟通,可以随时给我留言哟!:)
