背景:
近日,位于平原新区项目的某项目品宣海报在朋友圈刷屏,用感性的视觉一时间抓住了人们的眼球,会让人短暂忘了去理性思考,恍惚间觉得买平原新区的房子好像也不错?

论创意,这个项目的策划赢。
但购房者你要醒一醒啊,先忽略这几个红绿灯,深究起来,你真的会放弃绿博的房子不买,去买平原新区凤湖的房子么?笔者劝你三思而后行,且听笔者给你说道说道。

看规划
1.绿博片区
2007年9月27日,省十届人大常委会第33次会议通过了《郑汴产业带总体规划》,标志着郑汴一体化发展获得法律地位。
2009年,省委、省政府作出建设郑汴新区的战略举措,全面铺开郑州新区和汴西新区两大板块,并于2009年10月将郑州市郑汴产业带更名为郑州市中牟产业园区,重点建设郑州新区规划的白沙组团、绿博组团及官渡工业园区。
2011年9月,国务院出台的《国务院关于支持河南省加快建设中原经济区的指导意见》中明确提出推进郑(郑州)汴(开封)一体化发展,支持郑汴新区加快建设。
绿博组团规划范围北至连霍高速公路、西至万三公路(新G107)、南至贾鲁河,东至官渡组团西边界,总面积约132平方公里。

绿博组团定位是引领国际新商都的文化产业先导区,具有国家级职能的文化创意产业园区,辐射中原经济区的文化旅游目的地,面向郑州都市区的田园城市示范区。其产业布局以高新技术产业、文化旅游服务业为主,布局商务服务、科技研发,文体娱乐,房地产业等。

华强·郑州中华复兴之路、华特·迪士尼郑州、极地海洋公园、雁鸣湖野生动物园、郑州规划设计园、韩国文化创意产业园、奥林匹克公园、周星驰影视世界已进驻郑州国际文化创意产业园。
经过11年发展,雅居乐(春森湖畔)、万科(兰乔圣菲)、融创(观澜壹号)、碧桂园(郑东碧桂园、海洋世界)、绿地(香颂)、康桥(香溪郡)、建业(J18、电影小镇)、亚新(美好香颂、美好意境)、永威(上和郡)、名门(紫园)、信和(普罗理想国)、星联(安郡)、路劲(国际城、九郡)、金科(天籁城、中书博翠书院)、融信(城市之窗)、亚太新宇(亚太绿博花园)等房企均已布局该区域。
2.平原新区
2003年,平原新区谋划建设,河南省委书记在规划中原城市群建设时提出在黄河北岸建设新区,以实现郑州“东扩北移,跨河发展”的战略构想。
2010年2月22日,新乡平原新区建设总体方案获省政府通过。
2014年初,平原城乡一体化示范区(188平方公里)列入国家级重点开发区域。
2017年,投资130亿元的中原金融小镇、投资80亿元的加多宝中原生产灌装基地及昆仑山矿泉水全国智慧物流中心基地、投资6亿美元的新乡智慧装备制造产业园等20个重大项目先后在平原示范区落地。
2018年,政协委员提议‘将温县、武陟、原阳、平原新区划入郑州管理,发挥郑州中心城市功能’。至于这个提案,官方回应“首先就是谁来提、谁来推动”。这确实是个问题。
国务院批复的《河南省建设中原城市群实施方案》明确提出,巩义市、新郑市、荥阳市、长葛市、平原城乡一体化示范区等,按照中等城市标准进行基础设施建设和公共服务配置,形成活力新城。

经过15年发展,截至目前,恒大(恒大御景湾、金碧天下)、建业(比华利庄园)、碧桂园(凤凰湾)、正弘(悦云庄)、绿城(凤湖*瑰园玫**)、绿地(泰晤士新城)、中昂(中昂朗悦)、华润(平原府)、天泓置业(恒升1号庄园)、蓝城(桃园春晓)、蓝光(凤湖长岛国际社区)等10余家房企入驻平原新区。
看环境
平原新区的每个项目说自己的优势都会提到1830亩凤湖生态环境好、环凤湖而居的美好生活。那再看看绿博的环境,没在怕的,仅仅3000亩的绿博园就不说了,世界之最的郑汴中央公园,27平方公里,38700亩,就位于郑汴新区绿博组团弯月路(广惠街东侧)以东、郑开大道以南、官渡组团以西、中牟县城以北,总面积近4万亩,建成后,将成为世界最大的城市湿地公园。

目前,郑汴中央公园起步区建设面积约4200亩,主要建设内容为牟山和人工湖。以贾鲁河为基础打造的超大公园,这个公园建成后,将会是一个相当牛,相当高、大、上的公园,没有哪个区域能与其媲美的。

看房价升值

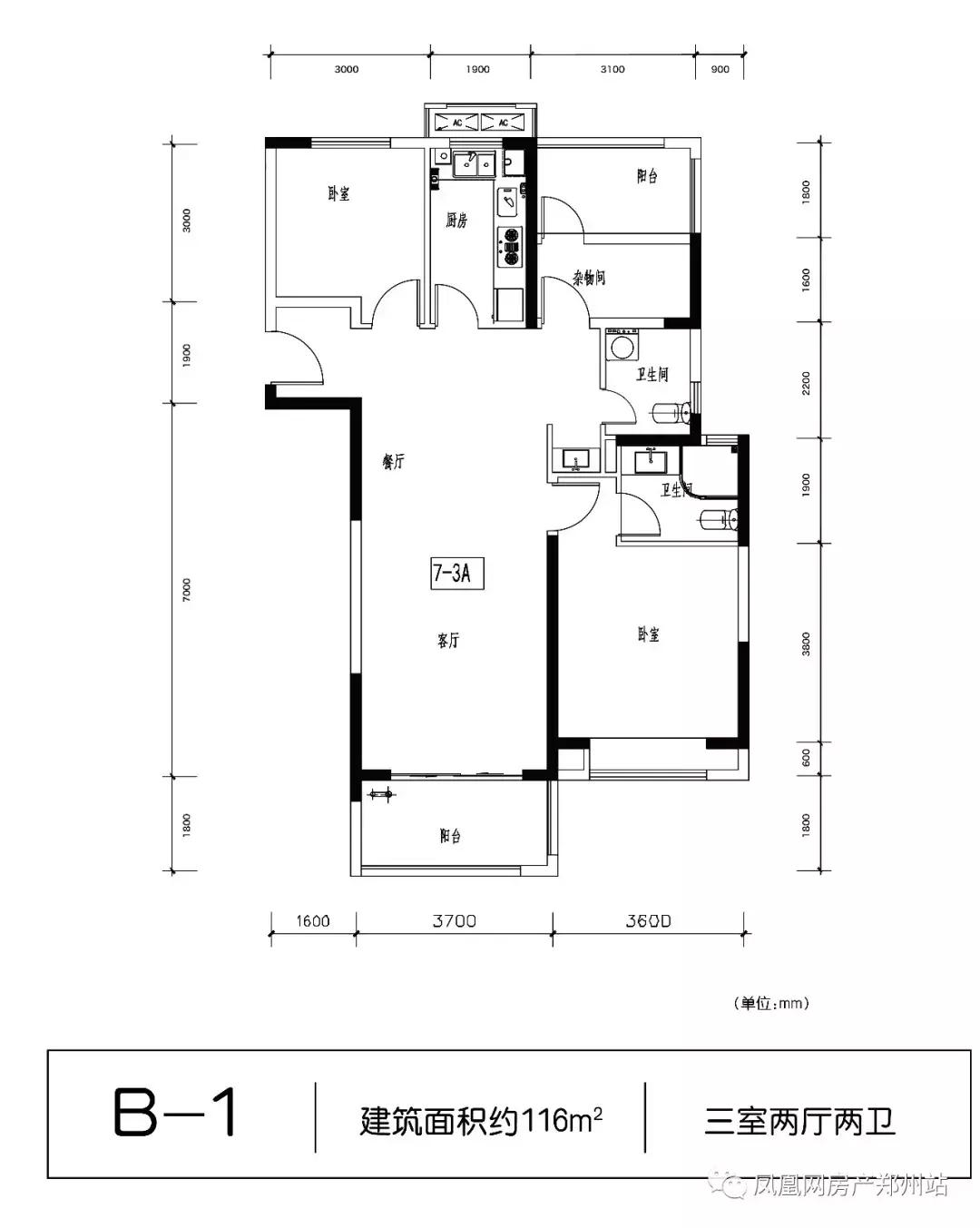
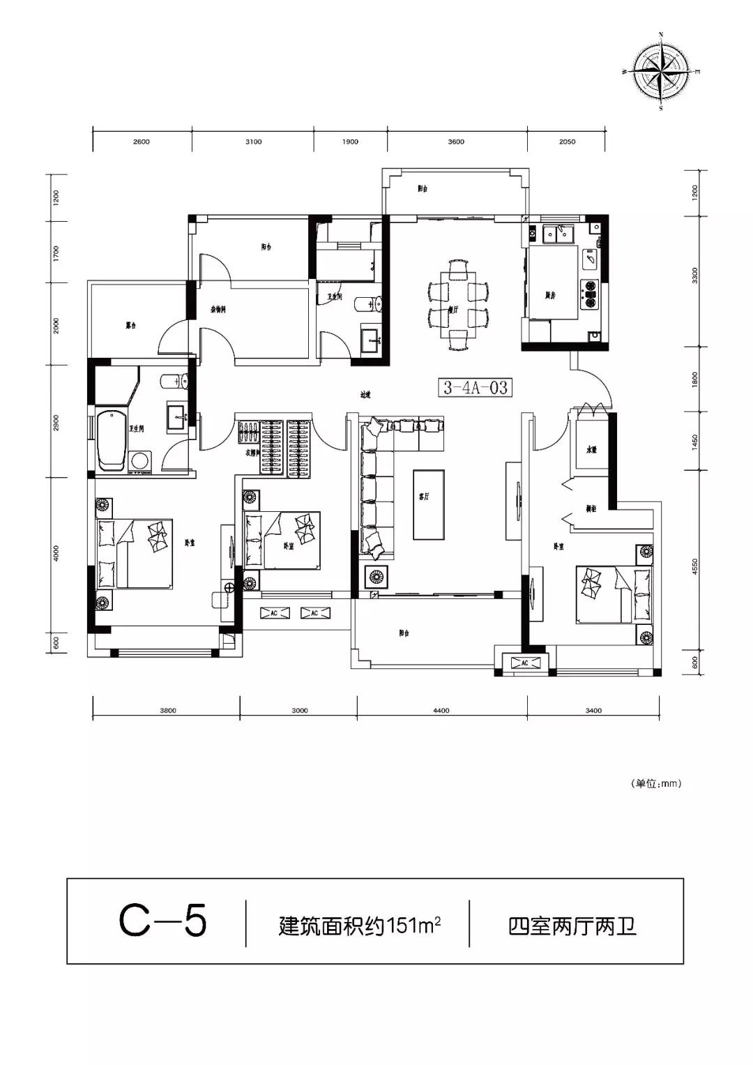
笔者列举绿博与平原新区较早的项目,名门紫园3年时间上涨81.3%,金碧天下5年时间涨77.1%。雅居乐春森湖畔2017年9月首次开盘高层均价9000元/㎡,项目目前在售高层东园7#楼Wang建面约98-131㎡房源,整体均价约12000元/㎡,一年时间涨3000元/㎡。除高层房源,目前雅居乐建面约138-151㎡“1+2”庭院洋房, 赠送地下室及庭院。区域利好带动房价升值,雅居乐春森湖畔了解下?




总得来说,涨是大势趋,但绿博比平原新区涨得更快更高些。要说原因:一是绿博本身起点比平原新区高,一个是嫡系,一个是旁系,平原新区归属至今还不明朗,有黄河及其滩区之“天堑”,这种天然的“割裂感”给中原城市群建设和郑州大都市区建设增加不少困难。二是亲生的必然万千宠爱于一身,从规划上不难看出,二者定位不同,政府重视程度,招商引资力度,配套完善性等是没有可比性的。三是郑州发展方向一直都是向东,再向东,郑州城市发展开拓,一直沿着一条清晰的脉络向东前行,如今的东区早已成为郑州的名片,白沙都已划到郑州,绿博还会远吗?
所以,买平原新区还是绿博组团的项目,你想清楚了么?