这次小编为大家带来的是一套50平米精品小公寓的设计效果图,这样的一种北欧混搭风设计,很好的营造出一种悠然自得的生活氛围
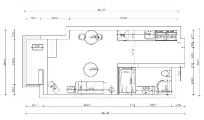
我们先来看看平面图



无脚落地沙发减少了因层高矮而带给人的压抑感

茶几选用透明简易款

地面水磨石的地砖混搭出一丝复古气息

精致的小餐桌加盘子画更显异域风情

厨房采用嵌入式放置冰箱洗衣机,节约空间

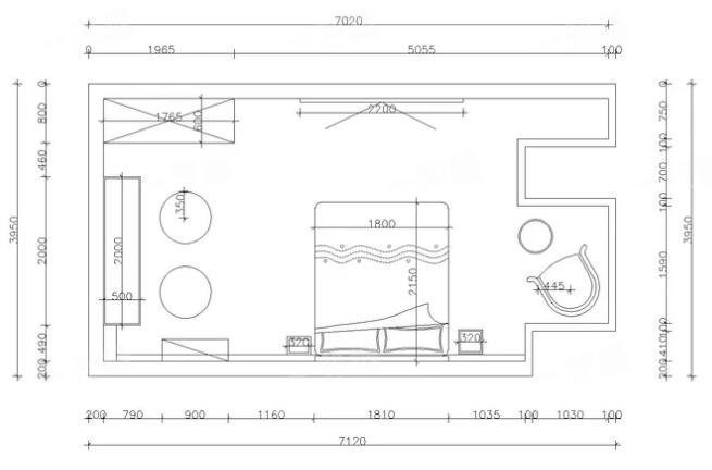
二楼卧室兼具休息、工作、收纳、娱乐等功能


洗手间放置一个小鱼缸,疲惫一天回家可以泡个澡
【 本文素材来源于网络,仅供学习分享,如侵权,请联系删除】
点击下方了解更多
这次小编为大家带来的是一套50平米精品小公寓的设计效果图,这样的一种北欧混搭风设计,很好的营造出一种悠然自得的生活氛围
我们先来看看平面图



无脚落地沙发减少了因层高矮而带给人的压抑感

茶几选用透明简易款

地面水磨石的地砖混搭出一丝复古气息

精致的小餐桌加盘子画更显异域风情

厨房采用嵌入式放置冰箱洗衣机,节约空间

二楼卧室兼具休息、工作、收纳、娱乐等功能


洗手间放置一个小鱼缸,疲惫一天回家可以泡个澡
【 本文素材来源于网络,仅供学习分享,如侵权,请联系删除】
点击下方了解更多