君荟天地
(江汉区-后湖)
目前在售3号楼
建面约133-137平尾盘房源
毛坯备案均价18690元/平
另带3000元/平装修
整体均价21690元/平
项目为准现房
最早有望在今年3月交付
销售情况分析:
1、君荟天地在2018年12月15日开盘,推出1、2号楼,建面约105-140平带装修房源。

2019年5月,君荟天地又推出最后一栋楼3号楼,带装修整体均价21690元/平,建面约98-137平带装修房源,目前仅剩部分大户型在售。
2、由于该项目开盘时间距离现在较久,当时开盘时的大部分信息都已找不到,在“武汉阿松”的购房群中也鲜有购房者讨论这个项目,似乎都快被遗忘了。
3、该项目并没有大规模上过分销,即使在中介朋友圈也只是偶尔看到一两个关于该项目的信息。

项目前期备案情况:
君荟天地共有700套房源可售,目前已备案596套,还有104套未备案。不过3号楼1单元3号房和2单元3号房(共50套左右)不对外销售,因此实际可售房源可能就50套左右。



1号楼所有房源已备案:

2号楼部分楼层整层未备案,看起来像是故意预留的:


3号楼1单元3号房预计是不对外销售,1单元3号房备案价才4800元/平,因此没有备案。1号房和4号房还剩余零星房源。



君荟天地在2020年一共仅备案了48套,排在江汉区第13名,说明该项目大部分房源都在2019年就已卖出备案,之后就一直处于平销期。

价格分析:
1、君荟天地上一次开盘还是在2019年5月,当时带装修价格达到了21690元/平,较项目首开时上涨了800多元/平,在当时的江汉区都不算低了。相比周边当时在卖的福星惠誉福星华府峯境贵上了大几千元/平。

2、君荟天地比距离1公里左右的星悦城六期玺越贵了近2000元/平左右。因为君荟天地属于江汉区,而星悦城六期玺越属于江岸区,一字之差就差了近2000元/平,真是一字值千金。
3、2019年5月推出的3号楼,其中1单元3号房备案价仅4800元/平,预计是不对外销售。
1单元中的97平小户型要比边户价格低上500-800元/平,2单元中的中间户108平要比边户低上800-1000元/平左右,价差还是比较大的。

3号房备案价显示为4800元/平:


已售罄的1号楼,中间户要比边户低上300-1000元/平左右。

还有少量房源在售的2号楼,均价要比1号楼低上一点,户型差价上3号房价格最低,而2号房在1单元中要高于4号房,在2单元中基本与4号房持平,1号房最贵。

3、目前江汉区核心在售楼盘,大多都以大户型高端楼盘为主,价格多在3万/平以上,君荟天地实际上属于后湖片区,带装修21690元/平的价格是江汉区低价TOP2,仅比卖毛坯的顶琇国际城高一些,不过该项目目前在售都是130平以上的大户型,因此总价和首付门槛都比较高,因此性价比比较一般。

江汉区核心房价地图:
(来源于江城房价)

但一路之隔的江岸区后湖在售楼盘,价格大多保持在2万/平左右,因此相比江岸区后湖来说,君荟天地的性价比就只能说一般了。

江汉区核心房价地图:
(来源于江城房价)

4、君荟天地附的二手房小区,福星华府誉境,目前二手房挂牌均价在1.75万/平左右,近期二手房成交均价也基本保持在1.75万/平左右。

近期成交价:

与君荟天地一路之隔,位于江岸区的美联时光里,目前二手房挂牌均价接近2.3万/平,近期二手房成交价在2.1-2.4万/平左右。


5、君荟天地相比江汉区的楼盘在单价上有一定优势,而相比一街之隔的江岸区后湖,就没有什么优势,而且由于君荟天地目前在售户型偏大,总价也比较高,因此,都快成现房了都还没卖完。
房源详情:
君荟天地占地面积约1.8万方,总建面约11.7万方,计容建面约8.5万方,容积率约4.8,绿地率约30%,规划总户数700户,停车位840个,车位配比约1:1.2,该项目由3栋住宅及部分社区商业组成。据说这3栋楼属于项目一期地块,后期可能还有二期地块未开发。

项目经济技术指标:

项目沙盘图:

从规划图上可以看到,该项目地块整体呈南偏东15°,3号楼位于地块北侧,靠近秋桂路,可能会有一定噪音影响。

该项目1号楼为29层1个单元2梯4户结构,1层为社区商业、2层为物业用房户型建面约102-140㎡。
1号楼1单元楼栋平层图:

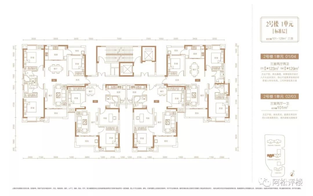
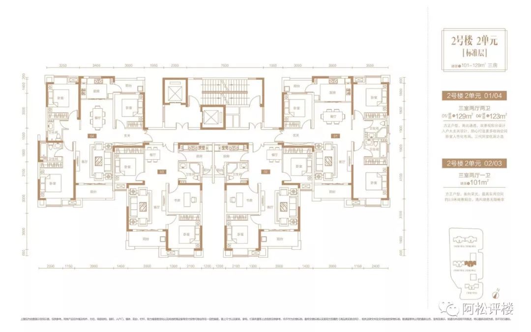
2号楼32层2个单元2梯4户结构,1层为社区商业和架空层,户型建面约101-129㎡。
2号楼楼栋平层图:


3号楼46层2个单元3梯4户结构,户型建面约98-137㎡,1层为社区商业、架空层,14层和30层为避难层。
3号楼楼栋平层图:


该项目户型设计方面实际上有4种结构,分别是98-108㎡的中间户、123-129㎡的三房边户、133-137㎡四房边户,140㎡的四房边户。
98-108㎡的中间户:
该户型2.5开间朝南,厨房也有南向小阳台,没有采用连廊结构,因此这个中间户纯南向不通透的,整体采光和通透性略差,比较压抑。

123-129㎡的边户:
该户型为南北通透三房设计,2开间朝南,结构一般。

133-137㎡的边户:
该户型为南北通透四房设计,2开间朝南,该项目左上角的小房间可用作保姆房或储物间,整个户型全明无暗房,不过该户型有走道,存在一定浪费面积,而且只有一间卧室朝南,整体结构不好。

140㎡的边户:
该户型为南北通透大四房设计,户型方正,三开间朝南,南北双阳台,南向超大阳台,不过该户型走道较长,还是有一定浪费面积。

项目售楼部实景图:

项目样板间实景图:






项目附近后湖大道与姑嫂树路交汇处实景图:

项目3号楼高楼层视野实拍图:

开发商背景:
君荟天地的开发企业是武汉富士新地产有限公司,该公司是深圳富士集团控股公司。

深圳市富士投资(集团)有限公司于一九八三年在深圳市成立。经过36年的发展,集团现已成长为一家以实业投资为主,集房地产开发,物业管理服务、高科技制造业等为一体的多元化企业集团。

附
君荟天地评测如下:
一、区位
君荟天地位于江汉区姑嫂树路20号(地铁石桥地铁站E口西侧)。该项目在大区位上属于江汉区,距离汉口二环线约1.4公里,虽然处于江汉区,但其实距离后湖较近,享受的也是后湖配套。

微观区位
南侧为后湖大道、中石油加气站和武汉市中心医院(后湖院区);
项目北侧为秋桂街、江汉区政府汉兴街办事处、规划公共设施用地;
项目西侧规划住宅用地和姑嫂树路;
项目东侧为地铁6号线和12号线换乘站石桥站E出口、绿柳路和汉口花园1期。

区位点评:
1、君荟天地行政区上属于江汉区,位于汉口二环和三环之间,环线位置不错,不过按照片区来讲,实际上属于后湖。
2、项目所处的江汉区后湖,目前发展的比较成熟,周边无论是社区底商还是其他配套都比较成熟。
3、项目处于江岸区和江汉区交界处,东侧便是江岸区后湖,城市界面较新,西侧就是江汉区,目前老旧小区较多,城市界面一般。
二、交通
君荟天地周边主要交通出行配套汇总示意总图如下:

地铁:君荟天地是地铁口项目,出小区就能进入地铁石桥站,石桥站是地铁6号线和12号线换乘站。

君荟天地与石桥地铁站位置实景图:

地铁6号线已开通,可以到达武汉核心的香港路、江汉路、汉正街一带,过江可以到达汉阳、经开。

地铁12号线是武汉第四轮地铁规划中的重要线路,也是武汉首条地铁环线,目前已局部开工。
自驾: 从君荟天地出发向南行驶约1.6公里左右就可以驶入二环线(君荟天地-后湖大道-姑嫂树路-机场二高速-二环线),可沿路到达CBD、循礼门、江汉路、武汉天地等汉口超核心的地带。此外从君荟天地出发向北行驶约1.5公里也可以驶入三环线。

项目附近兴业路实景图:

发展大道实景图:

项目附近上机场二高速匝道处实景图:

项目附近和谐大道实景图:

公交:距离君荟天地约300米处有公交站姑嫂树路杨汊湖站,经停的车次众多,辐射范围很广。

项目附近公交站实景图
交通点评:
君荟天地是双地铁口项目,自驾周边有主干道,同时还可以快速上二环线、三环线,附近的公交站点也有很多车次,总体而言该项目交通出行条件还比较方便。
三、配套
君荟天地周边配套汇总示意总图如下:

商业:君荟天地附近步行可达中百仓储(距离约300多米)、商场南国北都(距离约500米左右),2公里范围内有后湖永旺、菱角湖万达广场、新唐万科广场等大型商业综合体,该项目还自带一部分社区商业,周边已建成社区也有社区商业。
项目附近中百仓储实景图:

项目附近南国北都实景图:

菱角湖万达广场实景图:

后湖永旺实景图:

菱角湖万达广场:

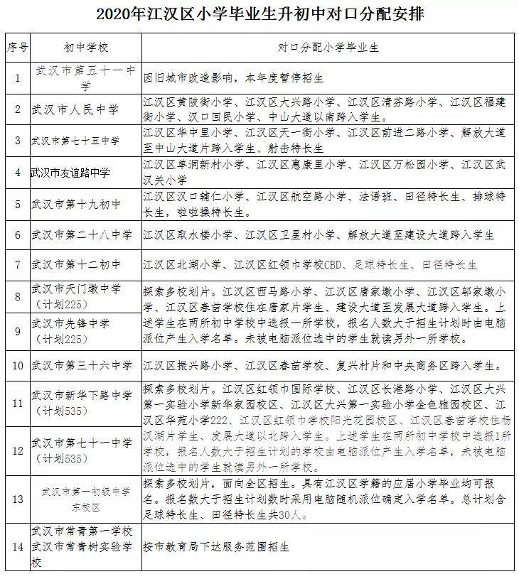
教育:君荟天地附近有红领巾小学(阳光校区)、大兴第一实验小学(新华家园校区)、长港路小学、武汉市第一中学、新华下路中学等多所学校,其中不乏名校。具体对口学校以交房后教育部门最终划片为准。
不过,位于该项目北面一街之隔的江花苑,根据2020年的对口信息,目前是对口长港路小学,而长港路小学则有可能对口新华下路中学或武汉七十一中学。


医疗:该项目南侧100多米就是三甲医院武汉市中心医院后湖院区。
武汉市中心医院后湖院区实景图:


配套点评:
君荟天地周边配套还是比较成熟的,步行距离内有三甲医院,附近学校也比较多。但距离大型商业配套还有一定距离,需乘坐公共交通前往。
四、品质
1、君荟天地建筑商为中建三局,建筑质量还比较有保证。
2、该项目外立面采用的是局部干挂石材和真石漆。

3、该项目容积率达到了4.8,再加之地块面积较小,因此可能会显得比较压抑,内部园林景观的面积可能也会受到一些影响。
4、该项目车位配比达1:1.2。
5、该项目规划有精装入户大堂和精装地下车库大堂。
6、该项目仅有3栋楼,体量较小,难以形成大社区居住氛围。
“武汉阿松”综合点评:
项目优势:
1、君荟天地行政区上属于江汉区,位于二环和三环之间,距离二环仅约1.4公里,环线位置较好。不过该项目由于更加靠近后湖,因此享受的基本上是后湖的配套。
2、该项目位于石桥站正地铁口,未来出行方便。
3、项目周边生活氛围浓厚,发展的比较成熟,基本配套都有。
项目劣势:
1、君荟天地带装修均价21690元/平,虽然在江汉区不算高,但由于目前在售的都是130平以上的大户型,因此总价和首付门槛都比较高。
2、项目体量较小,仅有3栋楼,且容积率较高,难以形成大的社区居住氛围。
3、项目距离姑嫂树高架较近,可能会有噪音影响。