小编下面从15个方面全方位剖析此楼盘( 包括产品本身规划、区位、配套、产品细节、户型、周边房价、竞品分析、效果输出研判、交付产品力、总结等 ),分析观点维持客观,中立,第三方。
1、缘起



该宗地有效面积66252.52㎡,容积率B1B2≤4.0、R2≤2.9,建筑密度B1B2≤35%、R2≤22%,绿地率B1B2≥25%、R2≥35%。成交总价289600万元,成交楼面价14157元/㎡。
由长沙驰景房地产开发有限公司最终竞得,从公司信息来看由华中绿城和交银国际信托共同持股,操盘方为绿城。
小结:交付靠谱度--4颗星。
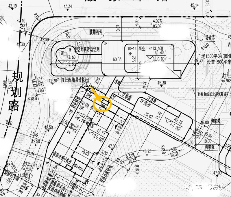
2、总图规划

先上规划总图

(图中楼栋间距标注均取整)
总图排布特点分析:
1、地块形态比较规整,用地红线中包含部分山体打造,部分楼栋为了景观资源呈东西朝向,楼栋分散在地块四周,中央形成集中园林区,布置合理;
2、楼栋朝向上主要为偏西南;
3、由于楼栋呈环形布置,同时部分错位,所以楼栋间的尺度感较好。
小结:地块硬性条件--3.5颗星。
3、指标分析

(来源:自规局官网)
小区分布2栋高层,7栋超高层,综合经济技术指标可得出:
1、住宅地块容积率为2.9,绿地率40.13%,建筑密度12.83%,整体较低密;
2、商住比为0.2%,商业主要设置在地块北侧;
3、设置人防地下室,可了解下具体楼栋,其入户大堂可能会存在高差与人防门;
4、住宅地库车位配比为1:1.07,相比地块定位,车位较为紧缺;
5、户型面积均大于150㎡,瞄准改善人群;
6、各栋均设置首层架空,结合大堂设置,入户仪式感佳。
小结:小区指标--3.5颗星。
4、区位分析


(示意图)
片区及地块本身素质:此地块位于天心中心片区,位于二环内,地理位置较好。

(示意图)
地块周边主要节点:
1、直线650m左右:湖南革命陵园;
2、直线2.1km左右:保利国际广场,再往北,则到长沙五一核心地带,商场写字楼林立;
综上所述: 此地块基本为一线临江,周边火车头文化公园和南郊公园围绕,景观资源极佳,生活配套上只需一路往北,应有尽有。
小结:小区生活便利性--4颗星。
5、交通分析

高速路网 :周边无高速路网;
城市路网 :距离二环线很近(1.3km左右),为长沙东西主动脉,南北向临近湘江中路与天心大道,为河东主骨架路网,去哪都方便。
小结:交通便利性--3.5颗星。
6、小区流线

人行、车行出入口: 各开口详见上图示意,下面主要讨论其合理性;

西侧地上人行入园流线与地下车行流线错开设置,比较合理,但人行如需南北穿行,还是会存在一定交集。

可了解下商业地块与住宅地块,地上围墙与地下车位是否分隔设置,如两者完全物理分开,则品质更佳。
小结:小区流线--4颗星。
7、教育配套

(示意图)
学校配套方面:周边有仰天湖金峰小学、天心区新开铺小学、雅礼外国语学校、雅礼中学、长沙理工大学等,具体教育配套以楼盘公示为准。
8、地块细节分析

(示意图)
垃圾站:位于4#(距14m左右)北侧,垃圾清运从北侧车行口出去,对住宅影响相对较小。

(示意图)
公厕:位于商业地块,对住宅无影响。

(示意图)
高差:主入口存在5.5m高差,设置了无障碍电梯,可咨询下是否设置扶梯,运行效率更高效。

(示意图)
消防扑救场地(需采用硬质铺装):8#、9#的消防扑救场地位于其南北两侧,中间为入园大堂,故而入户前坪基本为铺装,软景相对较少。

(示意图)
5G机房:位于8#楼顶。
9、小区典型户型分析

255户型亮点:
1、独立电梯厅入户,归家体验较好;
2、有独立的玄关收纳空间,但总体不大也不够独立;
3、客厅空间较为规整且横置布局,空间感较好,起居体验友好;
4、主卧套间较为舒适,但总体空间相比户型大小,显得不够充裕,且房门位于客厅,主人房隐私性一般。
户型遗憾:
1、入户开门则正对窗户外,如要做照壁,位置也不太好摆放;
2、北侧阳台如封闭处理,厨房的油烟可能蔓延到阳台内部,不太好散;
3、餐厅空间不够独立,四周都是交通空间,非常别扭;
4、北侧两间卧室,门对门,相互之间有些干扰。
户型可改造性 :户型框架基本固定,自理空间很小。

245户型亮点:
1、玄关处设置独立的衣帽空间,较为实用;
2、玄关处设置老人房,配备独立的卫生间,起居非常方便;
3、客厅横向布置,空间优势明显;
4、主人房分区较为合理,但总体尺度也不大,空间达不到轻奢起居需求,房门也是正对客厅,对其隐私性有一定影响;
5、设置独立的洗衣房空间,较为实用,但是晾晒空间较为欠缺(可以选择直接烘干)。
户型遗憾:
1、厨房外空间过小,只能做个吧台,吃饭还得去客厅东侧,距离较远,且空间不够独立,对客厅有些干扰;
2、厨房横向布置,长边开窗影响吊柜安装。

(框选为去墙后、空间连通示意)
户型可改造性:
客厅、次卧与南侧阳台之间可推出,扩大室内空间,且中间无承重墙垛,无自理限制。

220户型亮点:
1、独立电梯厅入户;
2、卧室均布置于南侧,居住体验较好;
3、主卧尺度较大,景观面佳。
户型遗憾:
1、客厅位于户型中央,体验差;
2、厨房离餐厅距离较远,使用不便;
3、客厅正对卫生间,体验差(对着卫生间看电视);
4、南侧三间房,房门距离较近,干扰较大;
5、阳台很小,晾晒空间匮乏(考虑烘干)。

(框选为去墙后、空间连通示意)
户型可改造性: 客厅与西侧阳台可连通,扩大起居空间。

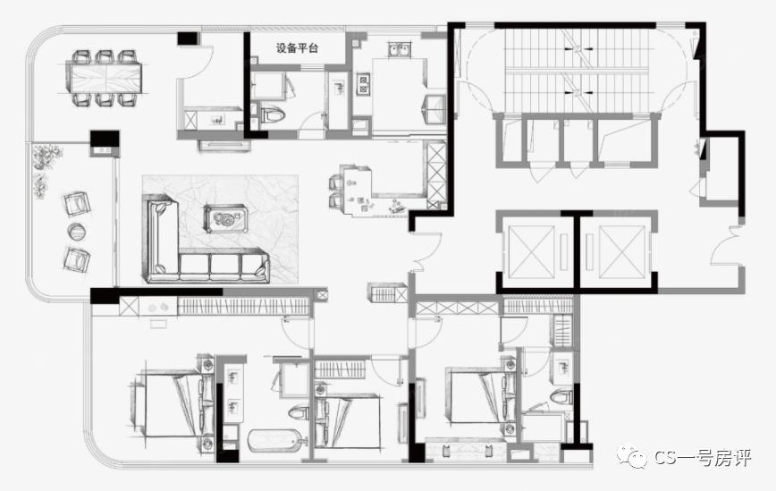
285户型亮点:
1、独立电梯厅入户,归家体验较好;
2、客餐厨一体,不仅规整,而且空间较大,起居体验感好;
3、主卧空间较大,分区合理,居住体验感佳;
4、套房较多,家庭各成员起居方便;
5、设置独立的洗衣房,比较实用,但离晾晒空间较远(采用烘干更佳,不影响阳台实用功能,遮挡景观视野);
6、公卫北侧即为阳台,隐私性较差,如阳台封窗,这厨房和公卫两处的气味外溢,均不好处理。
户型遗憾:
1、入户走道较长,有两个缺点,其一是不好设置照壁,其二前段空间较为压抑;
2、厨房设置内岛台,看似好用,实际厨房空间并不大,可能设置后,反而碍事;
3、卧室房门相距都较近,相互之间干扰较大。

(框选为去墙后、空间连通示意)
户型可改造性: 客厅、次卧与南侧阳台之间可以打通,扩大户内空间,但中间有承重墙垛,自理受到一定程度限制;
两间次卧可联合做成套间。

315户型亮点:
1、独立电梯厅入户,归家仪式感佳;
2、客餐厨挂角一条线设置,由于空间尺度较大,各区都较为实用;
3、中西厨与外侧餐厅,三者空间既相连又相对独立,使用体验佳;
4、主卧套间各区分布合理且功能齐全;
5、户内均为套房,居住体验较好;
6、厨房烟道设置于设备平台,不占用户内空间。
户型遗憾:
1、北侧卧室距离厨房较近,可能有一定的噪音和气味干扰。
户型可改造性 :户型框架基本固定,自理空间很小。
小结:户型过于追求江景,但朝向受限--3颗星。
10、周边在售竞品情况

周边主要竞争对手是中海阅湘台,前面也写过,其实前后距离不远,从地块的形态来说,绿城比较方正,景观打造难度要小很多,地块位置也离市中心较近,主要区别在于绿城凤起麓鸣在区位上离陵园更近。
11、周边二手房参考

周边二手房价格没有太大参考价值,但是从沿江区位来说,还是较为稀缺资源。
小结:投资属性3.5颗星。
12、周边城市界面



江景方面主要是湘江水面,江对面并无高低起伏的天际线及沿江亮化,在选择的时候尽量去现场实地看下,对各楼层的江景情况有个直观的认识。
小结:周边城市界面3.5颗星。
13、效果输出研判




首先要说明的是,效果图是网上收集,材质方面如无公示支持,只是个人推测,不确保有实际指导意义,具体建议咨询开发商。
从目前的能找到的效果图来看,主要集中在塔楼,综合部分实体照及效果图来看,可能是铝板和大面玻璃的组合,这也是江景房常见的配置,要了解的是玻璃的详细规格,铝板的大致位置,公建化的立面做出来还是效果不错的。

地库来说也是老生常谈,要了解吊顶的材质(如有),墙面是硬包还是刷漆,地坪材质等等,在高品质交付兑现中,不能只靠简单的“食材”。

大堂来说,色彩搭配其实不是特别和谐,地面灰和墙面黄过渡很奇怪,其次墙面大面的硬包和瓷砖贴面,搭配并不高级。
小结:效果图呈现--3颗星。
14、已有项目交付产品力




绿城目前在售的青竹园和高尔夫小镇都是别墅区,尤其青竹园是长沙传统的别墅后花园,但是对比的产品类型出入较大,于是拿07年就已经建成的绿城桂花城来看下实景交付,原则上也没啥参考性,毕竟年份已久。
从绿化的量来看,其实比较良心,可能是年份长,树木已经生长了较长时间,但07年的楼盘能做到这样已经是不错的了。
从苗木的选型来看,当时还是不太讲究,树并不粗壮而且弯弯曲曲的很多,有的也比较异形。
小结:长沙以往项目交付力--3.5颗星。
15、总结
地块综合 :此地块位于天心中心区,主打地理位置与景观资源,地块本身不大但总体较为规整,硬性指标不错。
适合人群 :要啥自行车,买的就是稀缺。
如何选房 :最好的肯定是1#、7#与8#、9#(西边户更佳,真正的全方位江景资源)。

其次上图几栋的边户,应该能插空看到一些江景资源,其余的可能就是“能,但是不多”。
文章不做任何引导性购买建议,纯粹从客户角度分析项目。
文中户型改造部分均为示意,如需采纳实行,应找具有资质的装修单位做详细施工方案。
纯干货软文编写不易,欢迎点赞、关注、转发。