原户型利用率不高,希望设计师在空间上做设计优化,另外,对于装修效果,业主希望是轻奢的欧式装修风格,简洁、明亮、大气。
简欧风格的家居环境相信大家都不陌生,但是怎样将奢华与简欧结合在一起呢?今天就为大家推荐一款重庆和黄御峰220㎡轻奢式简欧风格别墅装修设计案例,在这套家居环境中,整体的装修设计完全是按照业主对于家居的想法来进行设计的,充满个人特色,下面我们就具体来看一下吧。
案例楼盘:和黄御峰
案例户型:别墅
案例面积:220平米
装修风格:简欧风格
设计灵魂:新房装修效果打造贵气,轻奢之余,也包含居家实用性的特点,让室内充满强烈的动感效果。
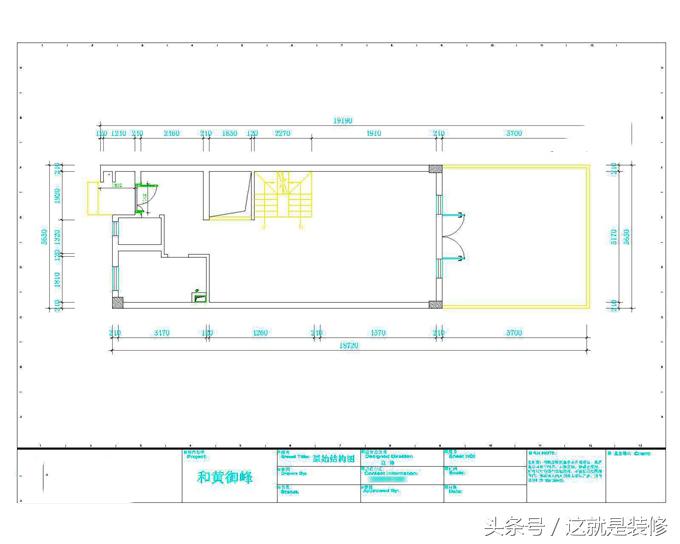
一楼户型规划图

客厅装修:
客厅的面积很大,但是装修的却很是简约,碎花墙布,深色软皮沙发与斜拼地砖,3者间的相互作用,强烈地向居者传达欧式传统的历史痕迹与浑厚的文化底蕴。

楼梯装修:
在这套轻奢简欧风格装修案例中,客厅给人的感觉很是简单大方,优美的线条是欧式简约的重要设计元素,细节的精雕细琢往往给人注重细节的印象。

电视墙装修:
深棕色的电视柜上装饰了许多精美的家居摆件,蓝色和白色的摆件给客厅整体风格带来了更多个性,背景墙则采用了镜面菱形的设计让客厅看起来更加的开阔,左右对称的金色贴花壁纸就点缀的恰到好处了。

其它局部装修:
大大的落地窗保证了室内的采光性,皮质的沙发与整体家居色调一致,阳光从窗户中照进室内,保证了客厅的通透洁净,温馨且舒适,铁艺装饰是简欧风格里常见装饰,给空间增添欧式风情,缔造出一个浪漫,优雅的私享空间。

在现在的生活中,其实打造一套合适自己的家居环境并不是太难,主要是要巧用心思,以上就是今天为大家介绍的重庆和黄御峰220㎡轻奢式简欧风格别墅装修设计案例赏析了,希望大家喜欢!