
项目基本信息
项目名称:南京鼓楼医院仙林医院
项目地点:南京市仙林大学城
设计单位:东南大学建筑设计研究院有限公司
建设规模:14.8万㎡
设计时间:2007年
竣工时间:2013年

整体设计理念——三座绿岛依山傍水

东侧鸟瞰图

总平面图
一、规模定位
南京鼓楼医院仙林国际医院位于南京城东仙林大学城,系仙林大学城管委会与鼓楼医院合作建设的国际医院,其由仙林大学城出资建设,鼓楼医院进行运营管理。项目定位:以先进的医疗建筑 规划设计理念和管理经验来打造一流的国际医院,希望创建出生态化、可持续的园林化、花园式医院,充分体现现代医院的高效、便捷及人文关怀。
医院在功能上分为三大部分:满足大学城医疗配套的基本医疗部分,为解决外籍及特殊人群的髙标准医疗部分和医师培训交流中心。在规模上,通过前期的精准定位分析,并没有一味求大,而选择了适宜的建设规模。基本医疗部分450床,满足日门诊量2000人次,在450床的住院床位中除综合床位外,引进鼓楼医院品牌专科。
同时突出体检中心和生殖中心的建设。高标准医疗部分为150床位,配置相应医技和康复功能,大型医技设备与基本医疗部分共享,后期引进法国知名养老机构欧葆庭集团,调整为老年病护理和康复中心。
医师交流培训中心配套100间客房及相应的会议、培训、餐饮、活动功能。这样的定位在保证基本综合医疗功能的同时,侧重关注专科、体检、康复及培训,与鼓楼医院本部在功能上错位互补,使仙林国际医院形成了自身的专科特色。在新老院区的关系上,仙林国际医院充分发挥院区本部的人力资源、医疗设备、科研实力优势,通过远程诊疗实现院际医疗资源的共享,减少重复建设造成的浪费。

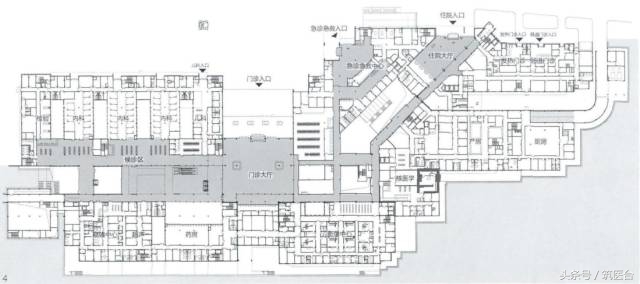
一层平面

剖面图
二、外部环境营造
医院外部环境的营造对改善患者的心理和精神状态作用巨大。一个使用方便、环境优美的户外环境能使患者在就医、治疗的过程中保持平和温馨的心境,利于其身心康复。现有大型综合医院限于用地条件,普遍仅满足于合理解决内部基本使用功能和流线组织,对外部环境的关注不够。仙林国际医院项目基地位于大学城南部,北临灵山北路,南依生态廊道——灵山,西侧为蓄洪水库,依山傍水,环境十分优越。

沿灵山北路西北侧外观
规划限高18m的要求及外部良好的山水环境为医院实现回归自然、回归地面创造了前提条件。规划将基本医疗区、医师培训中心,以及高标准医疗、康复区依据不同的功能分区形成三个环岛,岛和岛之间以景相隔,以路相连。三个区域通过高标准医疗、康复区(地下车库和战时医院)实现物流和人流联系。基本医疗区建筑规模最大,置于基地的东侧,沿灵山北路线性展开,方便到达,是整个医院的主体。

东侧人视图
医师培训中心居于用地的西侧,规模最小,四周环水,景观视野开阔。高标准医疗、康复区居于用地南侧,最为安静、私密,形成相对内向的景观特征,符合康复岛世外桃源的设计构想。
三个区域以环水绿岛的形式分离出来,相对独立,在景观上注重与山脉、水体的结合,形成园林式的布局,有利于提升山水医院的公共形象。在道路系统设计中结合绿岛的设计理念,采用路桥相连的模式,路即是桥,桥即是路,路边有水,桥上是景。道路沿主要水面布置,与建筑的内向医疗空间分开,在提供交通流线的同时也成为公共的观景流线。

急诊入口
独特的道路空间景观可以让行人感受到人与自然的交融。在整体布局中,一条主要的景观廊道从学子路、灵山北路交叉口通向灵山,将城市空间与灵山山脉结合起来,同时变化和流动的水面环绕绿岛形成动态的景观,建筑物仿佛从灵山脚下落下,在水中升起,开放的医院空间契合了上位城市设计的规划理念。
三、空间架构模式
根据规模选择合适的空间架构,是合理组织内部医疗功能流线的基础。仙林国际医院基本医疗区有450张床位,曰门诊量2000人次,宜采用医疗街的模式。设计根据传统村镇、城市空间的意向引入集镇广场(大厅)、街道、曰常都市功能和观景行为,建立医疗主街,形成使用者的主要识别空间,以清晰的主街架构实现空间的便捷引导。
医疗主街有效联系病房、医技、门急诊等不同功能区域,集散各种流线,将水平、垂直交通串联成一个方便的内部交通网络。设计组同时在内街及两侧植入非医疗的公共功能,诸如为患者、家属提供服务的休闲座椅、餐饮店、图书室、网吧、健康讲堂等设施,甚至希望在中庭中放置钢琴,这些创意改变了传统医院的冷漠氛围,增添了人性化的温暖。
主街的两侧穿插了一系列大小不一的景观庭院,在解决公共空间采光、通风的同时形成室内外的景观交流,保证患者在公共空间视线可见范围内都有宜人的景观,这样可极大地缓解患者及家属的焦躁和不安。水平集约的10万㎡的建筑体量通过医疗街、广场大厅、内院得以适当分解,化整为零,穿插其中的景观使建筑与自然环境得以很好的融合。
四、人性化就诊空间
在仙林国际医院的设计中,设计师希望回归带院子的医院建筑形象,通过精心设计的景观医疗主街和众多的景观庭院,实现了除少量较大平面的医技空间外的所用公共空间和候诊空间、病室空间都有良好的外部景观,所有的公共空间、交通空间(楼电梯厅)均可自然采光通风。对于患者、家属、医护而言,自然就在身边其实就是最好的人性关怀。
门诊空间采用二次候诊、医患分流的模式,病人经一次候诊在电子屏的指示下由护士导引进入二次候诊,诊室采用单人诊室,保证医患一对一的诊疗过程。一次候诊空间位于医疗主街两侧,明亮且拥有良好的庭院景观。医师则由内部通道经更衣区、办公区、医护休息区进入诊室,医护区亦拥有良好的采光通风环境。

门诊大厅

医疗街
在病房护理单元的设计中也采用医患分区模式,利用局部复廊的布局使医患活动区域相对分开,减少干扰。在护理单元内部就近单元出入口和护士站附近设计了两个小型景观庭院,避免传统复廊的封闭及缺少自然光。现代护理单元要求能营造出吸引病人走下病床的“家庭”环境,每个护理单元就是一个小型社区,护理单元内设景观活动室(兼作病员教育中心),配套网络、图书、电视等功能,满足病员的日常活动需求。
病员服务中心设置超市、花店、书店、自助售卖机、ATM机 、 咖啡厅 、美容美发等综合服务设施。三栋病房楼依据基地形状在平面上相互错开,使每个病室都能观赏南侧灵山的秀丽景色。病室采用落地锯齿窗,结合设置室内绿化种植池,使患者在病床上亦可以观赏外部自然景观。
医疗街中通过放大公共交通空间和设置专门的休闲区域,给病患和家属提供半私密的交谈和休息空间。室内设计主要采用清新淡雅的浅色调,辅以局部的暖色,通过部分艺术品和鼓楼医院百年名院历史照片的展陈,增加医院的历史积淀感和患者的心理认同。此外,精细的无障碍设计、清晰的标识设计,以及对患者、家属、医护的私密性考虑,也是一个人性化医院设计必不可少的部分。

住院部大厅

门诊候诊空间

病房走廊
五、可持续发展的绿*医色**院
在全社会日益重视减少建筑能源消耗,强调绿色建筑设计的今天,建筑师在实践中必须考虑以下三个要素:设计的高适应性、功能的高效性、被动技术优先的生态性。
绿*医色**院应采用被动技术优先的生态节能技术,从规划设计、建设、运营各方面关注医院全生命周期的可持续发展,而不仅仅是各种技术的堆砌。基地所处的山水环境、绿化植被营造了医院外部良好的气候环境,并为患者提供了利于康复的独特室外空间。
建筑结合场地地形高差,尽可能减少土方的开挖,通过院和采光井的设置有效降低了地下空间的运营成本。

庭院
多层园林医院的模式,相比高层医院而言,平面利用系数更高,对电梯和空调的依赖程度更低 ,更有利于患者的康复并降低运营成本。
通过医疗街和庭院的设计,使除少量医技空间外其他空间均能自然采光通风,降低过渡季节的空调运营费用。
良好的朝向和保温节能举措,使建筑具有较好的热工基础。建筑采用绿化种植屋面,既可以有效阻滞雨水,降低医院制冷、供热的费用,又可将雨水收集系统汇集的雨水灌溉植被。此外,项目还使用部分清洁能源,采用了太阳能光热系统和地源热泵系统。这一系列适宜技术的运用使建筑真正在践行“绿色”理念。
医院建筑是设计程序最复杂、设计难度最高的建筑类型之一,除须合理设置医疗功能和各种流线外,还须营造绿色人文氛围,拉近患者与自然的距离。设计师只有不断探索、创新、反思和总结,才能设计出符合患者、家属、医护人员心理需求,并得到他们认同的医疗建筑。
来源:新建筑,有改动 作者:曹伟