多种色彩与住宅进行巧妙的融合,尽显和谐,但又不失个性,打造了一所妙趣横生的小天地
【建筑概要】
项目名称:中铁万国城
设计风格:美式轻奢
全案费用:25.68W
套内面积:104㎡
规模:洋房
鹏友百年 设计团队出品
历史的呼唤
一梦千秋
我
是秘色
![鹏友的•宅[拾壹]全案25.68W,104㎡轻奢美式—中铁.万国城](https://cdn.resistlatasha.workers.dev/origin/pgc-image/b2f54b84e4ca4500a0fc84fda67f35e9.jpg)
具有明显玉质感
是颜色介乎
艾色(苍白)与青绿色之间的
稀有釉色
幽幽的绿光泛起
我的眼前一亮
该是回到了久违的故乡
朱砂色、玻璃色、苍白色、青色、秘色,本案设计师将多种色彩与住宅进行巧妙的融合,尽显和谐,但又不失个性,打造了一所妙趣横生的小天地。
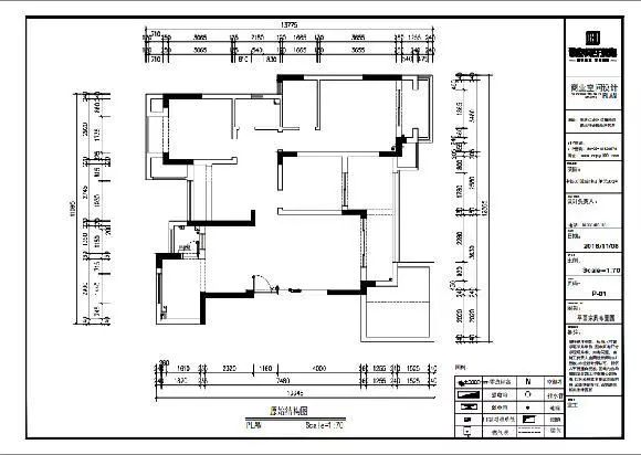
原始结构图
![鹏友的•宅[拾壹]全案25.68W,104㎡轻奢美式—中铁.万国城](https://cdn.hamiltonhmartha157.workers.dev/origin/pgc-image/e58f1cf9e8cf4d9e86de4884fd8cc3a5.jpg)
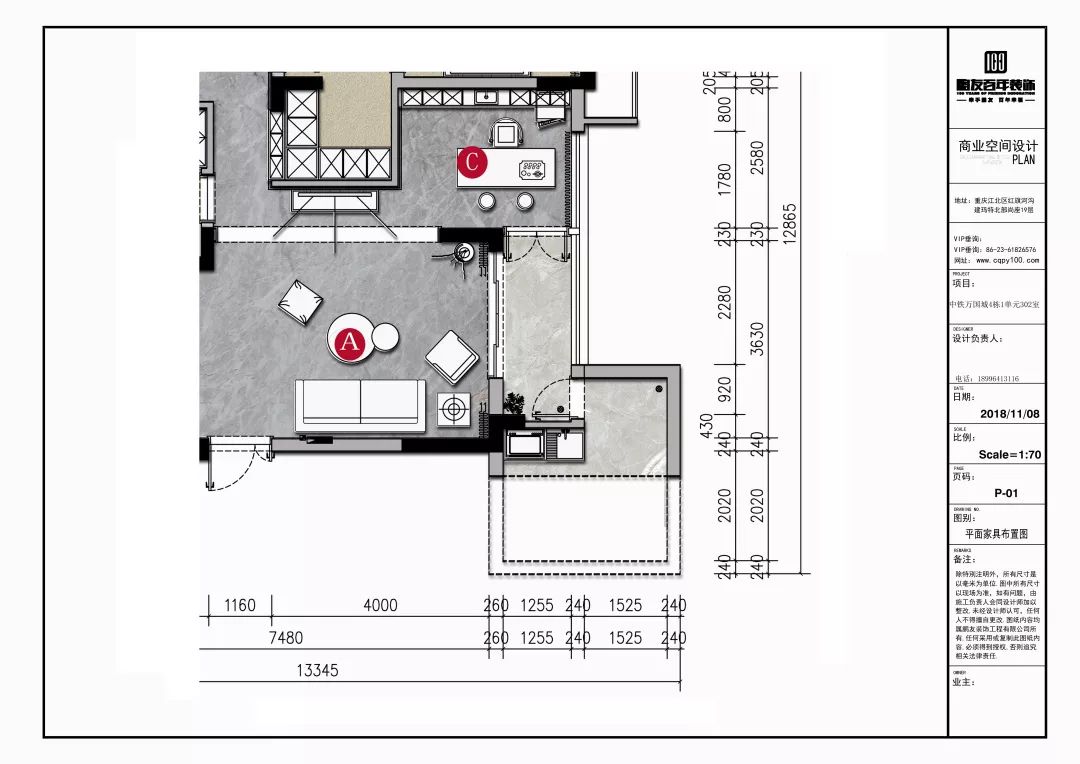
平面布置图
![鹏友的•宅[拾壹]全案25.68W,104㎡轻奢美式—中铁.万国城](https://cdn.mendezhlauren156.workers.dev/origin/pgc-image/1dfe3a1d2ae841fe97a13ebc982dc37b.jpg)
A【客厅】;B【餐厅】;C【书房】;D【客房】;E【主卧】;F【次卧】
结构改造亮点
![鹏友的•宅[拾壹]全案25.68W,104㎡轻奢美式—中铁.万国城](https://cdn.khatunraisa900.workers.dev/origin/pgc-image/20ad38134aa84c62be2b20063231bc2e.jpg)
A【客厅】;C【书房】
![鹏友的•宅[拾壹]全案25.68W,104㎡轻奢美式—中铁.万国城](https://cdn.jeanburnsy34.workers.dev/origin/pgc-image/f7c5e9dfb2e14c40b1726aa719908934.jpg)
C【书房】;E【主卧】
泪翠融青
月染春水
薄冰盛绿云
嫩荷涵露
1.客餐厅
![鹏友的•宅[拾壹]全案25.68W,104㎡轻奢美式—中铁.万国城](https://cdn.hacbsshhac.workers.dev/origin/pgc-image/3a83c73f3ae147c285ec271137c8e833.jpg)
![鹏友的•宅[拾壹]全案25.68W,104㎡轻奢美式—中铁.万国城](https://cdn.hafbsskggab.workers.dev/origin/pgc-image/c115feb3e12b4a9aaafcfc5356e6839e.jpg)
![鹏友的•宅[拾壹]全案25.68W,104㎡轻奢美式—中铁.万国城](https://cdn.hamiltonhmartha157.workers.dev/origin/pgc-image/e30b8fb361cb4523a788803c4da3d6fb.jpg)
![鹏友的•宅[拾壹]全案25.68W,104㎡轻奢美式—中铁.万国城](https://cdn.estradaganna599.workers.dev/origin/pgc-image/fbb076c0865b459394671b25d78c353d.jpg)
![鹏友的•宅[拾壹]全案25.68W,104㎡轻奢美式—中铁.万国城](https://cdn.hadbssjbava.workers.dev/origin/pgc-image/5a30b87d13854105a014df898d91a9b6.jpg)
![鹏友的•宅[拾壹]全案25.68W,104㎡轻奢美式—中铁.万国城](https://cdn.zdzzes.workers.dev/origin/pgc-image/2d299cad038a4e09ba5ae47fedff2a91.jpg)
![鹏友的•宅[拾壹]全案25.68W,104㎡轻奢美式—中铁.万国城](https://cdn.mendezhlauren156.workers.dev/origin/pgc-image/d8e122a4d5f949f7910c048b9cd13d48.jpg)
![鹏友的•宅[拾壹]全案25.68W,104㎡轻奢美式—中铁.万国城](https://cdn.mendezhlauren156.workers.dev/origin/pgc-image/4903b5663bd24b4891bc32ac3db2768b.jpg)
活力的色彩搭配
纵使客厅和餐厅相连,但又有本身的韵味
在客厅休憩时,有一种悠然自得的心境
餐桌摆放的装饰品,增添了些许胃觉上的冲击
由不得放慢速度,细细品味佳肴
2.书房
![鹏友的•宅[拾壹]全案25.68W,104㎡轻奢美式—中铁.万国城](https://cdn.hamiltonhmartha157.workers.dev/origin/pgc-image/e42920fc41624644bb90a3785df34cb9.jpg)
书房采用的色彩偏稳重,干练,但又不失生气
主人公在进行长时间阅读后
品一杯小茶,解除一身困倦
在接待客人时
座椅相对的摆放,让距离感更亲近
3.主卧
![鹏友的•宅[拾壹]全案25.68W,104㎡轻奢美式—中铁.万国城](https://cdn.jeanburnsy34.workers.dev/origin/pgc-image/14eb031851114480b4096966b4b3a440.jpg)
![鹏友的•宅[拾壹]全案25.68W,104㎡轻奢美式—中铁.万国城](https://cdn.andersonyamy719.workers.dev/origin/pgc-image/9408498ae8fd4d99bbfe539e73085b70.jpg)
![鹏友的•宅[拾壹]全案25.68W,104㎡轻奢美式—中铁.万国城](https://cdn.estradaganna599.workers.dev/origin/pgc-image/b44b31307f044da4be9d842dff0ed0b0.jpg)
主卧采用冷色系的色调
给人清新隽永
一股清风夹带着花香
沁人心脾,睡意朦胧
4.次卧
![鹏友的•宅[拾壹]全案25.68W,104㎡轻奢美式—中铁.万国城](https://cdn.hadnvahdfnab.workers.dev/origin/pgc-image/cc72be28069542ada5bb800bd053ef1a.jpg)
![鹏友的•宅[拾壹]全案25.68W,104㎡轻奢美式—中铁.万国城](https://cdn.gaylordvicky.workers.dev/origin/pgc-image/796aef6d31284c5f864e6bc454b401bc.jpg)
书桌朝门窗摆放,和自然绿植亲近时,又恰到好处地利用光线的益处,让视力得到一定的呵护。
桌椅采用自然木质,简约而不失格调
5.客房
![鹏友的•宅[拾壹]全案25.68W,104㎡轻奢美式—中铁.万国城](https://cdn.hadhvssabah.workers.dev/origin/pgc-image/a4e0e78bd43541589ef8d7cd072edb2f.jpg)
![鹏友的•宅[拾壹]全案25.68W,104㎡轻奢美式—中铁.万国城](https://cdn.hadhvssabah.workers.dev/origin/pgc-image/2628cd7d0b0349cd9976ff91a7d6444a.jpg)
在进行客房色彩搭配时,选择了绿粉色系列的色彩,装饰的花束,和整间屋子的色彩浑然一体。
色彩繁而不杂,美哉也
6.现场施工图
![鹏友的•宅[拾壹]全案25.68W,104㎡轻奢美式—中铁.万国城](https://cdn.khatunraisa900.workers.dev/origin/pgc-image/f4977f46f5634f8ab93e61d7a6c5c550.jpg)
![鹏友的•宅[拾壹]全案25.68W,104㎡轻奢美式—中铁.万国城](https://cdn.hacbsshhac.workers.dev/origin/pgc-image/7adf4261617d43bd891696a4f9e08d6c.jpg)
![鹏友的•宅[拾壹]全案25.68W,104㎡轻奢美式—中铁.万国城](https://cdn.andersonyamy719.workers.dev/origin/pgc-image/e9e3a5a563374ee9ac838c5872a8af47.jpg)
![鹏友的•宅[拾壹]全案25.68W,104㎡轻奢美式—中铁.万国城](https://cdn.perryykatherine68.workers.dev/origin/pgc-image/2433362435fb45e0b761d9a6429be5e1.jpg)
![鹏友的•宅[拾壹]全案25.68W,104㎡轻奢美式—中铁.万国城](https://cdn.hallgjennifer723.workers.dev/origin/pgc-image/8fceb1f6fd3d4693b6926ad7074d5a82.jpg)
![鹏友的•宅[拾壹]全案25.68W,104㎡轻奢美式—中铁.万国城](https://cdn.jeanburnsy34.workers.dev/origin/pgc-image/f09c60e14be14e20813a05240d5c53a9.jpg)
![鹏友的•宅[拾壹]全案25.68W,104㎡轻奢美式—中铁.万国城](https://cdn.estradaganna599.workers.dev/origin/pgc-image/e76bf7df853640f8901a6da2957974ce.jpg)
![鹏友的•宅[拾壹]全案25.68W,104㎡轻奢美式—中铁.万国城](https://cdn.gaylordvicky.workers.dev/origin/pgc-image/177e8d8f49ae4c2486b17e8214eaaf78.jpg)
![鹏友的•宅[拾壹]全案25.68W,104㎡轻奢美式—中铁.万国城](https://cdn.afieakhtn.workers.dev/origin/pgc-image/7f877d8c40be4e00aa71f26deea2e5c5.jpg)
![鹏友的•宅[拾壹]全案25.68W,104㎡轻奢美式—中铁.万国城](https://cdn.jeanburnsy34.workers.dev/origin/pgc-image/c1b5545f0cdc4bad950c6cf1da894538.jpg)
![鹏友的•宅[拾壹]全案25.68W,104㎡轻奢美式—中铁.万国城](https://cdn.hadbssjbava.workers.dev/origin/pgc-image/97250ca92e1d4070b306df2a84b7d37d.jpg)
/软装清单/
![鹏友的•宅[拾壹]全案25.68W,104㎡轻奢美式—中铁.万国城](https://cdn.hadhvssabah.workers.dev/origin/pgc-image/5b5e795c27094c9d92829acf7e496ca9.jpg)
![鹏友的•宅[拾壹]全案25.68W,104㎡轻奢美式—中铁.万国城](https://cdn.beverlytuckerg139.workers.dev/origin/pgc-image/e27f63d8cf414d7da175021ddeb16cc2.jpg)
![鹏友的•宅[拾壹]全案25.68W,104㎡轻奢美式—中铁.万国城](https://cdn.hadbssjbava.workers.dev/origin/pgc-image/789fe52a687240fc9a791e7c6b173380.jpg)
![鹏友的•宅[拾壹]全案25.68W,104㎡轻奢美式—中铁.万国城](https://cdn.estradaganna599.workers.dev/origin/pgc-image/612bb57540c24abe8a62f9f5e89ae6ee.jpg)
![鹏友的•宅[拾壹]全案25.68W,104㎡轻奢美式—中铁.万国城](https://cdn.gaylordvicky.workers.dev/origin/pgc-image/30928ccbc57c439c912a44f067fe9b39.jpg)
![鹏友的•宅[拾壹]全案25.68W,104㎡轻奢美式—中铁.万国城](https://cdn.mendezhlauren156.workers.dev/origin/pgc-image/ef00b19e21d04c0d8b1f41e5da611cfd.jpg)
![鹏友的•宅[拾壹]全案25.68W,104㎡轻奢美式—中铁.万国城](https://cdn.hadnvahdfnab.workers.dev/origin/pgc-image/800a0320788d422693c142b735bfb8c3.jpg)
![鹏友的•宅[拾壹]全案25.68W,104㎡轻奢美式—中铁.万国城](https://cdn.khatunraisa900.workers.dev/origin/pgc-image/b8280a2e507e4c21a13e7ab6207f8f82.jpg)
![鹏友的•宅[拾壹]全案25.68W,104㎡轻奢美式—中铁.万国城](https://cdn.gaylordvicky.workers.dev/origin/pgc-image/db31200d15f742fb84d21df0837ed822.jpg)
![鹏友的•宅[拾壹]全案25.68W,104㎡轻奢美式—中铁.万国城](https://cdn.estradaganna599.workers.dev/origin/pgc-image/68fa7f689f05418da6e42d7d46b138dd.jpg)
![鹏友的•宅[拾壹]全案25.68W,104㎡轻奢美式—中铁.万国城](https://cdn.resistlatasha.workers.dev/origin/pgc-image/dbfef9f9abb74f2aac57f391ddd1a13e.jpg)
施工经理:杨赞友
从业年限:14年
工作理念:用心服务每一位客户
·END·
-版权申明-
素材图片来自品牌官方和网络,版权归品牌商和原作者所有。
如有侵权,请联系后台,我们会第一时间删除。