
身处繁华都市太久,便渴望一丝静谧的身心归处,阳光,茶香,听风,听雨,你应该享有这种姿态,为生活的诗意而满足,睁开双眼,看到的便是美好……
项目地址:东湖尚郡
项目面积:220平米复式
风格定义:现代简约风格
设计说明
业主职业为医生。在与设计师沟通的过程中明确告知设计师自己的要求。需要四间卧室、一间独立书房,要求区域功能分区明确,因业主工作在医院,压力较大,为此设计师将主卧室设计了一个带有连贯性的衣帽间,在衣帽间的基础上摆上了一个休闲椅,让业主在家有放松身心的感受。
本案整个户型简单、大方,区域规划清晰、完整,表达了业主可以在日趋繁忙的生活中,在家中得到一种能彻底放松的生活空间。
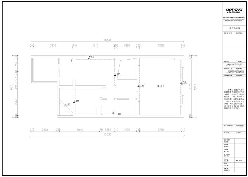
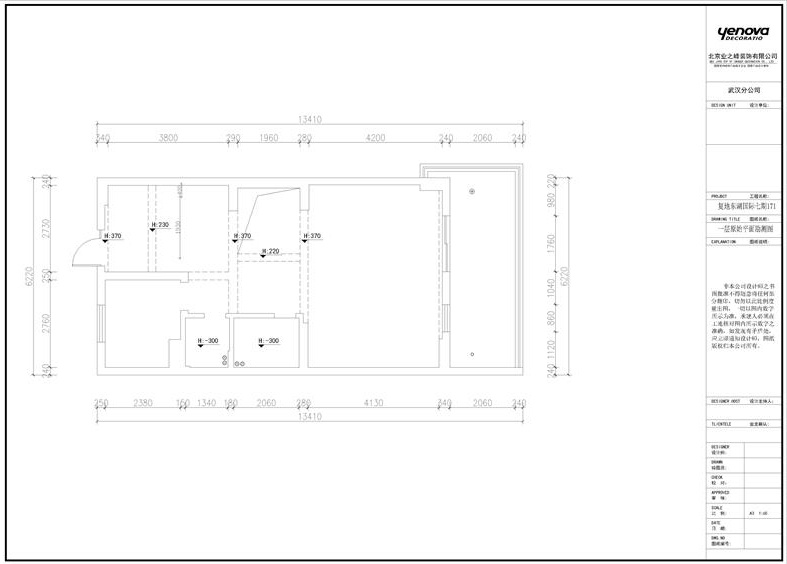
原始户型图


平面设计图


客厅

富有变化的色彩软装陈设,点缀着的黄色调让家变得富有活力,拥有厚实而温暖的触感,刹那间,回归到最舒适的状态。清晨,在家里私享一道阳光,是我们最渴望,亦是最享受的。
餐厅

原木,本身在空间呈现出的大多安静、柔和。光线透过木质的栅栏隔断,若隐若现,黄色的软包餐厅背景点缀,使整体空间亲近自然,休闲随意,空间色彩温馨淡雅。
主卧室

被日常工作繁忙禁锢的心灵,需要一份自由来放飞。舒适的大床,柔和的灯光,远离城市的喧嚣,寻找一份静谧。迎着清风,伴着花香,一本闲书,一杯清茶,一份心情。
次卧室

温馨淡雅的设计,集情感、自然于一身,充满了艺术气息的缩影,当这一切浸润着美好,设计便正真的融入了生活。主卧设计相对淡雅,没有喧嚣与繁冗,一派宁静悠远。

春季装修好处多多,如果您目前有装修打算或者正在了解装修、如果您也在考察装修设计、了解装修造价、斟酌设计风格、参观施工工地,或者对设计、材料、环保有什么疑问的话那就随时联系我吧。
微信号:18627978382 (仅限武汉地区哦)
如果觉得文章对您有帮助,就关注我,转载哦