
前言
山东华睿电气有限公司与英国剑桥大学、中国矿业大学合作成立的高新科技企业,是济宁市兖州高新区智能电气研发平台,物联网与智能制造实验基地,注册资本2300万元。
公司以推动中国煤矿安全数字化的发展为己任,紧紧围绕国家对煤矿行业提出的数字化建设要求,研发设计高、精、尖数字化矿山设备与系统,涵盖煤矿使用的无线通讯、监测监控、工业物联网、工业环网、煤矿无人值守系统等多个领域。
NO.1
井下粉尘综合治理的迫切需求
1
煤尘起火事故:
2019年5月24日11时40许,河北龙成煤综合利用有限公司发生火灾。截止下午5时,河北龙成煤综合利用有限公司火情已完全扑灭。经初步调查核实,火灾系该公司809号传送带处煤粉自燃引发。
2019年5月24日11时40许,河北龙成煤综合利用有限公司发生火灾。截止下午5时,河北龙成煤综合利用有限公司火情已完全扑灭。经初步调查核实,火灾系该公司809号传送带处煤粉自燃引发。
曹妃甸区全力组织救治伤员,做好善后工作,保障火灾现场安全、避免次生灾害发生。对此次火灾,主管部门将继续深入调查事故原因,依法依规追究相关人员责任。同时,将在全区迅速开展安全隐患排查,防止此类事故再度发生。
2
肺吸尘预防:
消除粉尘危害的主要途径,工艺改革、革新生产设备;
湿式作业,采用井下运输喷雾洒水、湿式碾磨石英、耐火材料,矿山湿式凿岩;
密闭、抽风、除尘,对不能采取湿式作业的场所,应采用密闭抽风除尘办法,防止粉尘飞扬;
个人防护,佩戴防尘护具,如防尘安全帽、送风头盔、送风口罩等;
接尘工人健康检查,就业前和定期健康检查,脱离粉尘作业时还应做脱尘作业检查。
3
政策重视程度:
推进煤矿职业健康基础建设,督促煤矿企业落实主体责任,加强煤矿职业病危害防治责任体系、规章制度、现场管理、工程防护、个体防护、教育培训、健康监护等方面基础建设;
强化重点职业病危害治理,推动淘汰煤矿职业病危害防治落后工艺、材料和设备,组织研发典型职业病危害作业预防控制关键技术与装备。以采掘工作面为防治重点,大力推进清洁生产技术,降低工作环境粉尘浓度。推进煤矿噪声、高温等职业病危害治理,不断改善作业环境。加强对井下作业人员个体防护监督检查;
生态文明建设上升为国家战略,*党**中央、国务院把生态文明建设摆在更加重要的战略位置,纳入“五位一体”总体布局,作出一系列重大决策部署,出台《生态文明体制改革总体方案》,实施大气、水、土壤污染防治行动计划;
生态环境法治建设不断完善,环境保护法、大气污染防治法、放射性废物安全管理条例、环境空气质量标准等完成制修订,生态环境损害责任追究办法等文件陆续出台,生态保护补偿机制进一步健全。
NO.2
行业降尘方式
01
传统方式:
手动喷雾降尘;
液压阀控制传统支架喷雾;
127V有线喷雾降尘;
电控箱有线传感器无线喷雾降尘
02
新型方式:
全无线一体化自动喷雾降尘系统
NO.3
传统产品应用缺陷
传感器无线,主机有线
全无线充电:一个月送井上充电一次很麻烦
水量大影响生产
纯机械:靠自觉不靠谱
综采液控阀:串液漏液
线缆问题:失爆
工作效率:规范化操作带来的工作量大
液控阀控制传统架间喷雾
液控阀控制系统存在窜液、漏液、管路复杂、寿命短、维修量大等问题,还容易引起支架泄压自降,有较大安全隐患,矿工因其雾化效果不好会打湿衣服不会主动开启等等使用上的局限性等种种因素基本已经煤矿所摒弃。
127V全有线喷雾降尘
传统电控箱的喷雾使用127V电源供电,主机电动球阀使用控制电缆,虽然达到了自动化的目的,但经常因电缆拉断、产生失爆、液压支架线缆混乱、同时也增加了维护人员的维护量和安全隐患,增加了维护与安全达标的难度,因此该使用方式逐渐被淘汰。
电控箱有线传感器和球阀无线喷雾降尘
该技术是由全无线到全无线降尘应用发展的中间过度产品,也是大部分企业现在的应用方式,因其电控箱为127V有线供电球阀分体式设计导致在综采工作面综掘工作面等工作面特殊场所因工作面会随着采掘进度不断变化该应用方式产品还是需要接线和布置电动球阀导致增加工作难度和工作量。不适用于综采工作面、掘进工作面等应用场合。
NO.4
华睿聚力创新
产品设计理念:三易以及优势
易安装,易操作,易维护
全无线连接方式,技术领先,安装方便快捷
无电源线的连接,无控制线的连接,无传感线的连接,只需放好位置,连接好水路,即可完成主机的安装。
传感器只需根据具体地点的要求,放置或吊挂固定即可。然后根据使用地点的要求遥控智能设置参数。
灵活性
可以根据客户的实际需求和井下现场情况,使用无线编程遥控器直接对主机与传感器进行无线编程与设定,如下风向拦截水幕与采煤机的距离,水幕数量,移架放顶煤时喷洒时间等。
全自动
系统按照事先设定的程序进行全自动运行,自动选择喷洒点,自动执行喷洒时间,最终在无人干预的情况下,将煤尘降低到要求范围内。
智能性
本系统所有设备都遵循统一的通讯协议,每台设备都具有自己独立和唯一的ID,可以方便灵活的进行自主组网,使设备最大程度的协调工作,为灵活多变的工作方式提供基础和保障。
易维护
每年设备维护只需三分钟
本套设备中主机、操纵阀传感器内置电源最大使用时间可达十二个月,无需维护。当电池耗尽时,自动提示,只需关断电源,将耗尽电池取出,更换新电池。每套设备的维护时间不超过三分钟。
全无线一体化单双阀门电控箱采用先进的微型处理器,可内置电池或外接电源及传感器,可现场或远程控制阀门开关,也可设置自动关闭。电控箱具有5G通讯功能,可实现相关功能模块与地面监控主机和其他单元联网通讯
NO.5
三易如何实现配合5G无线万物互联通讯与智能传感器?
5G是什么?
指第五代移动电话行动通信标准,也称第五代移动通信技术,是4G之后的延伸,其峰值理论传输速度可达每秒数十Gb,这比4G网络的传输速度快数百倍,整部超高画质电影可在1秒之内*载下**完成
4G与5G的差别
传输速度将达到4G的100倍(1Gbps),和Google Fiber相同,峰值速率达到20Gbps。意味着用户*载下**8GB的HD
电影只需要6秒,而3G网络下需要70分钟,4G网络需要7分钟。
5G万物无线互联:井下洒水降尘应用的革新
传输速度更快的5G:
我们的降尘系统通过5G万物无线互联技术,使井下传感器的传感点更多,传输速度更快,极大的提高了传输信号源的稳定性。
功率低更安全:
我们的降尘系统通过5G万物无线互联技术,实现了设备的低功耗需求,极大的提高了产品运行的安全系数。
NO.6
5G技术特点






NO.7
矿井全无线智能喷雾降尘系统

大巷自动洒水喷雾降尘系统
采用单阀一体化设计,内置电池、定时系统,可智能设定喷雾时间,内置5G无线物联系统,可与内置5G无线物联系统的无线发射器相互通信,预留实现地面有线或无线数据上传功能,并可通过地面计算机控制设备的开关和对设备参数的远程更改,全面实现在线实时监测,无线物位传感器内置电池、红外热释电传感探头、也同时具备5G无线物联系统。
设备安装简单、方便、快捷,直接吊挂固定电控箱连接供水管及喷雾管路,无线物位传感器两套,分别吊挂喷雾的上下风口处即可。降尘过程中,当在有人员经过时,红外热释电探头感应到人体信号,并通过无线的方式将控制信号传递给电控箱,执行喷雾的关闭操作,当人员经过后延时一段时间(可调)再自动开启喷雾进行降尘。

皮带转载点自动洒水喷雾降尘系统
皮带转载点自动洒水降尘电控箱采用单阀一体化设计,内置电池无需外接电源,内置5G无线物联系统,可与其他该标准系统的传感器进行数据通讯,并预留地面控制接口。无线触控传感器内置电池无需外接电源电缆,内置触控,同时具备标准5G无线物联通讯系统。
该设备安装简单、方便、快捷,可直接吊挂固定电控箱连接供水管及喷雾管路,无线触控传感器直接吊挂到皮带上方即可。皮带机开启,有物料经过时,触碰杆震动,无物料时,触碰杆静止,无线物联发射器检测到震动或静止信息后发射相应无线指令,控制阀门开关,实现有煤喷洒,无煤停止全智能化生产。

矿用综采一体化无线控制降尘系统
本系统由无线采煤机传感器、无线压力(位移)传感器、KXH12矿用本安型无线自动洒水降尘双阀门电控箱三个主要设备组成。当电控箱接收到无线采煤机传感器的无线指令时,打开前喷雾阀门,并发射无线信号给其它支架上的电控箱,关闭已开喷雾阀门。当移动支架和放顶煤时,无线压力(位移)传感器发出无线指令,同组的主机打开相应的前、后喷雾阀门。
以第一组为例,当放顶煤操作时,放顶煤操纵阀手柄下拉,无线压力传感器1A检测到液压管路内压增大,发出无线指令给降尘主机1,(或无线位移传感器检测到操纵手柄下拉动作,发出无线指令给降尘主机1),打开后喷A阀,后喷雾喷头开始喷雾降尘。
当移架时,移架操纵阀手柄下拉,同理,无线压力(位移)传感器1B发出无线指令给降尘主机1,打开前喷B阀,前喷雾喷头开始喷雾降尘。
当阀门打开后,对应的指示灯闪烁,并且延迟一段时间关闭(时间可以自行设置)。当接受到无线采煤机传感器信号后,打开前喷B阀,对应的指示灯闪烁,同时关闭无线采煤机传感器打开的其它主机前喷B阀。若三分钟后未收到关闭信号,阀门将自动关闭

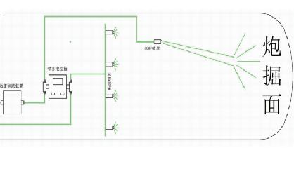
掘进放炮喷雾系统
该系统的配置相对简单,只需一台KXH12矿用隔爆型自动洒水降尘电控箱。电控箱一体化设计,隔爆型壳体、内置电动球阀、执行机构、声控振动传感器及控制电路。该设备内置电池可正常使用一年无需外接电源及控制线缆,安装方便,直接连接供水管和喷雾管路。当放炮时产生的冲击波,被电控箱内的声控、振动传感器同时接收到,电控箱会自动进行喷雾降尘,到达指定延时后电控箱自动关闭喷雾管路,并自动进入下一次放炮喷雾监测状态。内置的振动和声控两种传感器同时作用,杜绝了误动作喷雾的发生。
全无线风水联动降尘系统安装示意图
1、一体化电控箱内置:外接电源或内置电池,电池可持续工作10-12个月,内置ARM9嵌入式处理器和时钟模块,可自由设定喷雾时间,也可实现不同地点的喷雾开启和关闭。矿用球阀两套,一路控制水,一路控制压缩空气。
2、无线发射器:可根据实际喷雾地点配置不同的传感探头或模块,实现无线遥控及传输功能,该传感器可内置电池或外接电控箱电源。
3、风水联动喷雾水幕:长度2-3米,内含4-6个不锈钢风水联动喷头及配件。

全无线风水联动降尘系统原理图
二流体空气雾化喷嘴产生的雾粒非常细微,可以达到5-100微米。具备极佳的雾化效果,也可通过增加气体压力或液体压力得到更细微的雾化效果。二流体喷嘴可以根据实际需要进行调节喷雾雾粒大小及流量,以获得最佳喷雾效果

矿用自动洒水降尘系统全无线集控
1、本系统根据喷雾用途的不同,可以分为大巷喷雾、皮带转载点喷雾及综采面支架喷雾界面。
2、显示系统支持数据查询,对喷雾主控箱进行工作控制,满足煤矿日常控制需要,系统集中分散式控制,在井上服务器不加干预的情况下,井下喷雾主控箱可以独立完成各种喷雾要求,包括各种特殊时间段的喷雾和循环模式喷雾。

皮带巷降温防隔火系统
1)能在线连续远程检测与监控,具有井下粉尘自动净化水喷雾、水喷雾防隔火、远程监控功能。
2)设备具有一键开停功能,可一键开启喷雾点及停止喷雾点,避免水源的浪费及喷雾临界点的频繁开闭。
3)主机智能判别行人状态功能,实现人过停喷,避免多人通过时被淋水现象。
4)系统具有多种喷雾方式供甲方自行选择设定:全自动喷雾方式、定时喷雾方式。
5)降尘电控箱具有用提示功能,可通过指示灯实时显示降尘电控箱设备状态。
6)降尘电控箱信号接入井下 PLC 控制柜,PLC 控制柜通过光缆与环网交换机连接,利用综合自动化平台环网线路,并将降尘电控箱状态及各种数据信息上传至监控系统,并实现对风流净化水幕降尘电控箱的自动控制。
7)降尘电控箱可对接矿方风流净化水幕的电控闸阀、水喷雾防隔火阀门,使用我司降尘电控箱实现对电动闸阀、水喷雾防隔火阀门的自动化控制,利用矿方已安装的供水管路、风流净化水幕,水喷雾防隔火水幕。
NO.8
山东华睿电气有限公司期待与您合作!