设计 / 品质 / 生活
Temperature of Love

平凡的世界中
一个顺理成章的生活

◆项目地址:澜调国际
◆项目面积:90㎡
◆设计公司:晓安设计
◆设计主创:陈秋成
◆设计参与:李强
◆摄影单位:晟苏建筑摄影

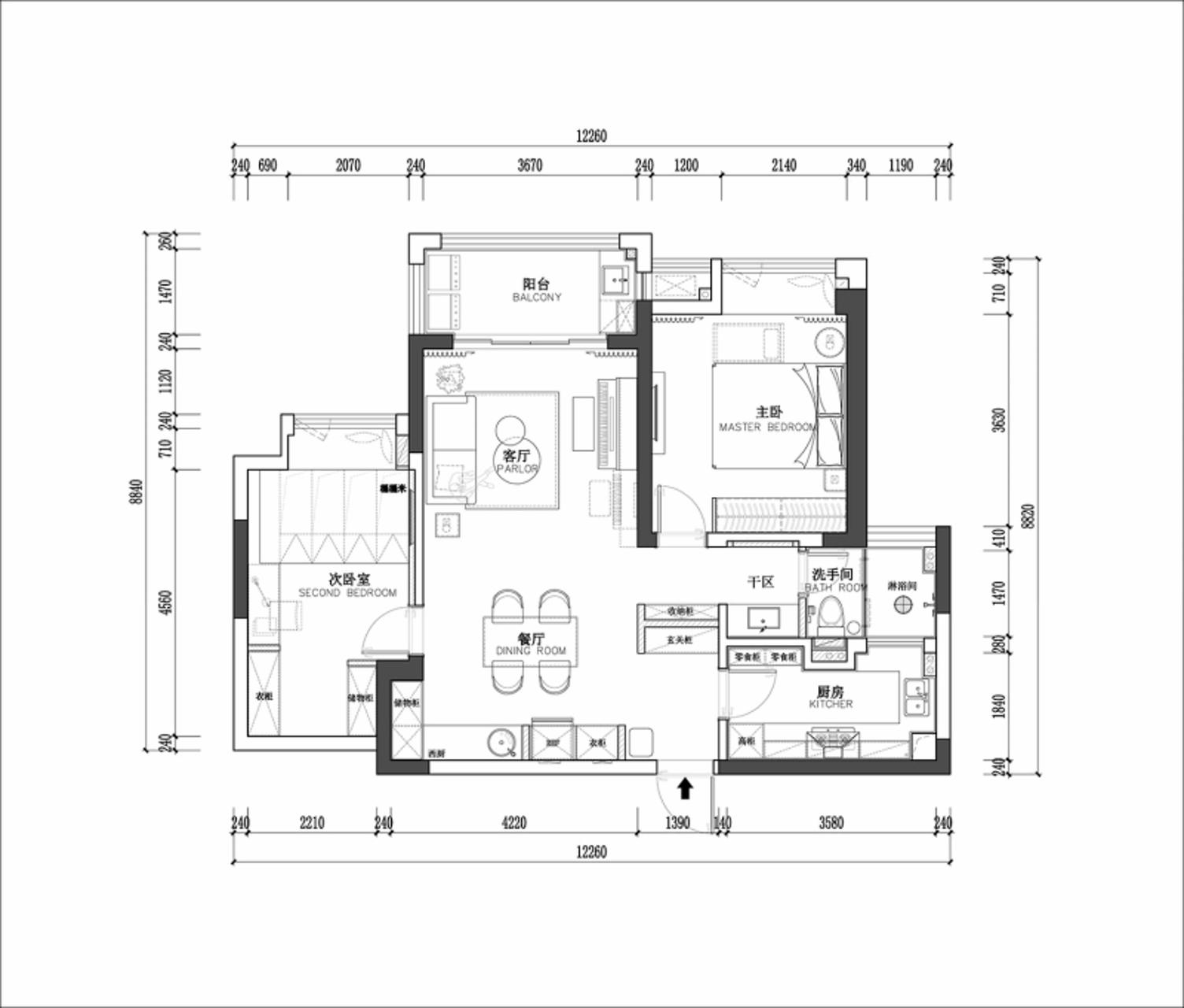
Floor plan

设计说明
初次见面,1米98的IT男阿雪和开朗的钢琴老师杜老师给我留下了深深的印象。
对于新家,他们不需要复杂的元素,也不要千篇一律的装饰,他们想要的是一个充满阳光凸显生活品质的家。在未来的人生里彼此相伴,演绎着音乐诗人的梦境。
相恋十年,新家就是送给彼此最好的礼物。
玄关PORCH

玄关可以放鞋,
可以收纳。
小小的铁艺框架,
放置钥匙一些小物,
很好的解决台面容易杂乱的烦恼。
客厅LIVING ROOM
从玄关看向客餐厅,映入眼帘的是一个个色块就像一个个跳动着的音符,给一身疲惫归家的你愉悦舒畅的心情。墙上世界地图的像素画,记录着每一段旅行的回忆。

餐厅DINING ROOM
西厨
西厨区域的增加大大增加厨房的收纳空间。

卧室BEDROOM
杜老师偏爱的绿色里,挂着阿雪和杜老师相识的坐标。

厨房KITCHEN

卫生间TOILET

书房STUDY

衣帽间CLOAKROOM

2018/01/08
客户说:
人生三十而立。迈入人生第三个十年,我和太太也购置了自己的新家,准备携手开始一段新的生活。
我是一名工程师,关注实用和细节;太太是钢琴教师,讲究艺术感和格调。在新家的装修上,我们也有很多自己的想法。前后沟通了几家设计公司和工作室,最终选定了晓安。打动我们的,是晓安处处为我们着想的贴心,和一切从我们的需求出发的细心。
装修不是件容易的事,处处讲求平衡,考验彼此间的默契。从第一天起,设计师就和我们一次又一次的认真讨论,用心设计新家每个角落的布局,仔细打磨每一处细节的设计。十二个月,经历了一个春夏秋冬的合作,我们的新家终于完美的呈现在眼前,北欧风格简洁素雅,宛如一件艺术品。然而一年之间的努力和付出历历在目,我深深的明白,这背后凝聚的,是整个团队情感和心血。
感谢晓安,陈陈,三月和团队中的每一位成员,感谢邹总和沈工,感谢卡美拉橱柜的小贝姐和小吴,感谢你们一年来的认真负责和真心付出,感谢你们用行动实践了晓君所需,安君所居这八个字。我相信一切都是最好的安排,愿大家事业生活圆满,满心期待未来的再次合作。
......
............
长按下方二维码看 周晓安设计 更多作品
还可以直接联系TA哦~
大家都爱看▼
