
精简舒适的居住体验,应该是当下很多人追求的,不需要华丽的设计,繁杂的装饰,让空间简单随性一些。
以这套小户型为例,建筑面积89㎡,将原有封闭空间打开,只保留了一个房间,略带慵懒气息的法式中古摩登风格,全屋简单随性,越住越舒适!
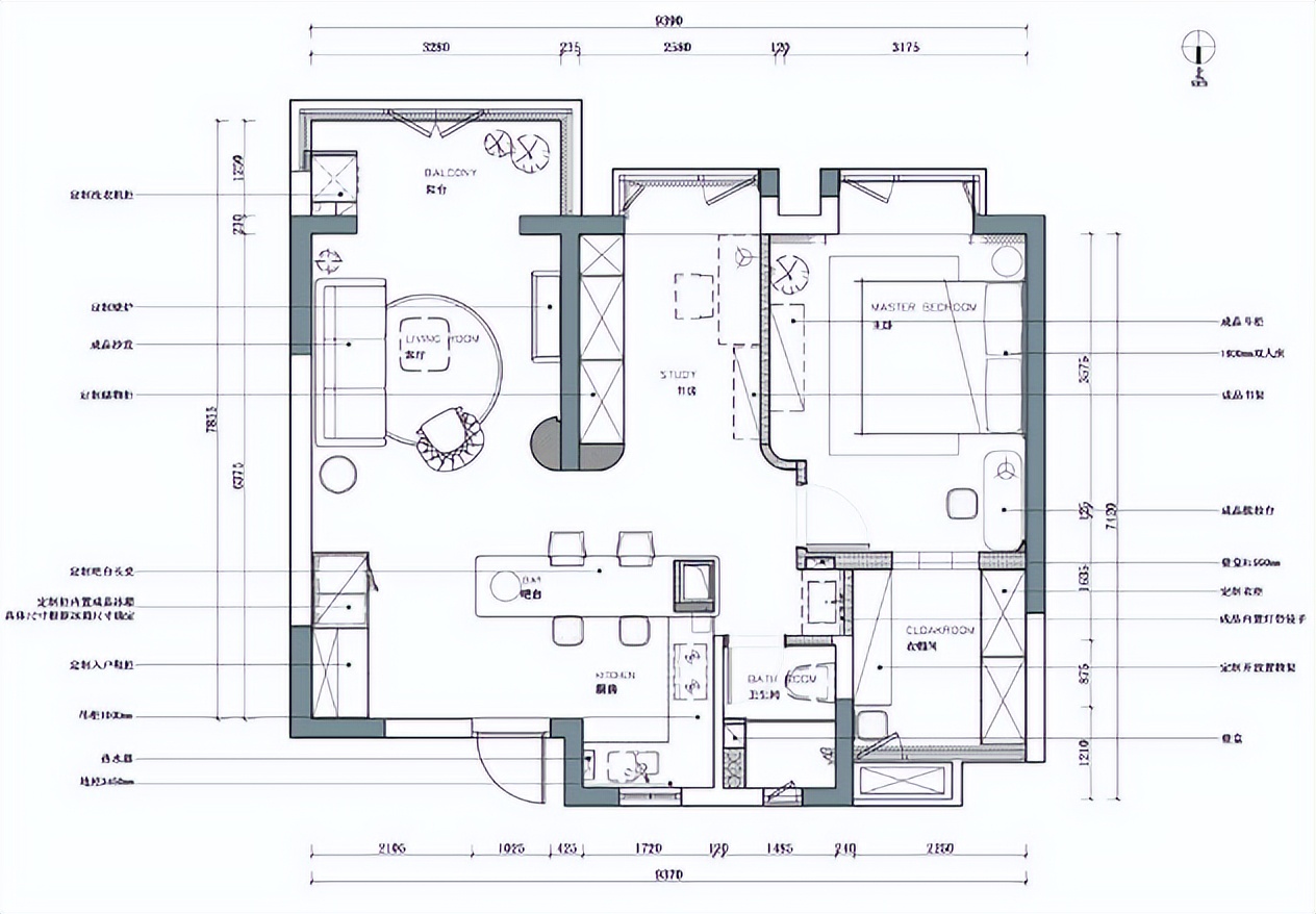
原始结构图

原户型是个小套三的格局,考虑到只有屋主两人居住,希望拥有一个较为开阔且舒适的空间,实现居家办公、游戏、健身、看书、喝茶等需求。
装修平面图

改造后的空间,拆除部分墙体,将原本封闭的空间打开,原本的三室仅保留了一室。开放式的布局,空间通透动线流畅。
客厅

慵懒舒适的客厅,坚持简装设计,不论是硬装还是软装,都没有特别繁杂的存在,米色和原木色搭配,营造柔和舒适的氛围感。

客厅与阳台不做推拉门设计,空间宽敞直接,动线更流畅。靠近沙发一侧,布置成简单的洗衣区,洗衣机+烘干机+开放式收纳,实用不浪费空间。窗户采用百叶帘设计,简约时尚,灵活实用。

简洁的设计让空间开阔不少,没有吊顶也没有踢脚线,圆弧衔接墙顶面空间结构,让空间不再刻意拘谨,自然而然地流动起来,相互之间产生联接和互动。

不要电视,也不做电视墙,以壁炉作为中心,打造一个没有电视,以交流活动为中心的内聚型客厅。
餐厅

餐厅设计也比较大胆,直接不买餐桌,穿插设计并延伸出吧台桌,既有设计感,又能满足日常用餐、聚会等需求,也很符合空间设计基调。

尽量缩减定制柜体的数量和体积感,公共区域只在入户定制了一组到顶组合柜,不仅很好解决收纳问题,还将笨重的双开门冰箱嵌入其中,非常的美观。
厨房

厨房,橱柜和集成灶完美结合,省去了吊柜的设计,视觉空间相对不压抑。开放式布局,空间开阔也缩短了餐厨间的动线,也便于交流互动。

餐厨和卫生间仅一墙之隔,拆除隔墙后,刚好将卫生间和厨房光线引入室内,空间更加敞亮。除了卫生间内部外,木地板铺展了整个房子。
卫生间

卫生间采用分离式设计,盥洗区外移至过道,日常使用更加的方便。悬挂式洗漱台+入墙式水龙头设计,美观好打理。卫生间水磨石墙砖,搭配黑色方格玻璃隔断,满满的质感。
卧室

仅保留的一间卧室,延续了简装基调,大量运用白色让空间更显宽敞。床头不做任何装饰,照明采用不对称设计,以壁灯+灯带的组合,产生联动。

小房间合并到卧室,打造成衣帽间,衣帽间门洞是经过精密计算的几何推演形态,经典几何创造的非常规造型和曲线来打造正统又独特的复古感。卧室和衣帽间都自带明窗,不管是通风还是采光都非常的好。
书房

原本的次卧变成了开放式书房,黑棕色的落地储物柜,强化了全屋的收纳。简单的桌椅和书架,满足居家办公所需,可以随时调整、随意更换。