一笼灵感第18期 , 推送优秀案例的平面、立面以及造型图纸,每期十个案例,做设计没有灵感的建筑er请关注~
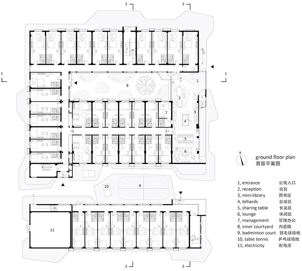
案例一
春晖路青年公寓 / MAT超级建筑事务所





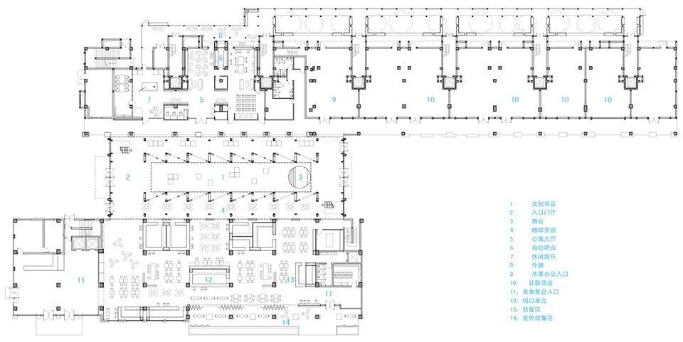
案例二
吉林新青年公社 / META-PROJECT




案例三
成都天府社区青年公寓 / MAT Office




案例四
Treehouse青年共享公寓 / Bo-da Architecture










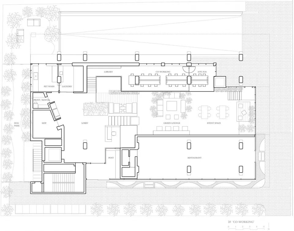
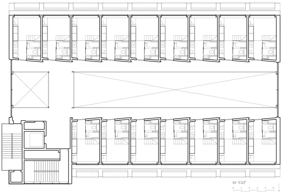
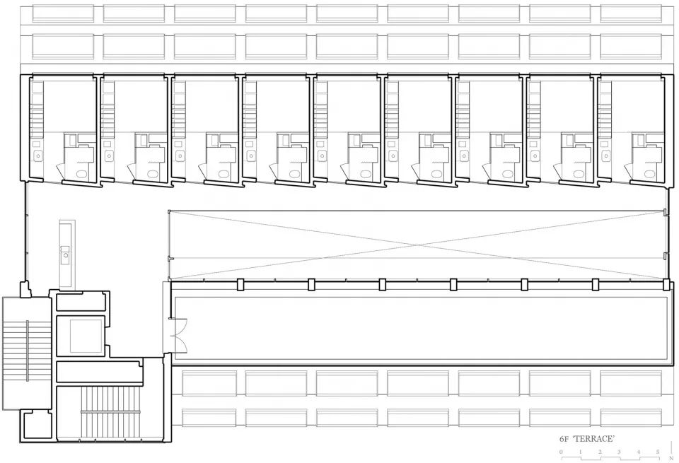
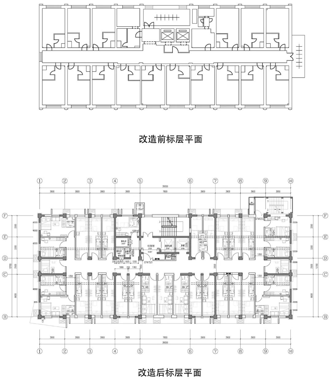
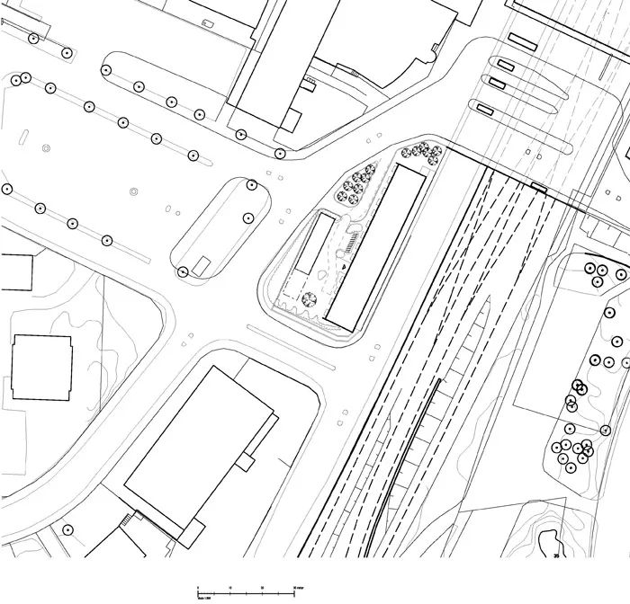
案例五
北京西直门泊寓 / 盛哲建筑设计



案例六
旋转外挂式胶囊公寓设计 / 屈泊静



案例七
天河创想公社 / 源计划建筑师事务所




案例八
高度预制化的青年公寓 / Scheiwiller SvenssonArkitektkontor



案例九
波尔图青年公寓 / OODA



案例十
神奈川“六行诗”公寓 / Hugo Kohno ArchitectAssociates


文章由一只豆豆原创整理
文中图片来源于网络
后台回复“平面005”获取案例全部资料*欢迎留言提议*