导语 :本期小编为您带来的是华邦繁华里现代简约效果图案例赏析.本案设计师是鸿龙装饰设计师叶然,该设计师曾服务过的小区有:华邦繁华里,太平洋森活广场,融科城,馥邦天下,禹州天境等 .... .
[案例名称]:华邦繁华里
[楼盘区域]:长江路与青阳路交口向东 100 米
[建筑面积]: 110 平方
[设计风格]:现代简约
[主设计师]:叶然
设计解析: 本案为华邦繁华里三室设计案例,风格是现代简约,整体暖色调为主,简单,大方,干净的环境一目了然,不一样的居家情调让我们在纷扰的现实生活中找份归属感,缔造出一个令人心驰神往的居家空间.

华邦繁华里客厅效果图
客厅效果图 :电视背景墙直接以石膏线条打底,贴上壁纸,造型简单却不失美观 ,达到业主需求的物美价廉.软装上的搭配总是朝着时尚,宜家的方向去考虑!暖色的墙面搭配上灰色为主的软装,使空间显得更有层次感.设计师结合业主的要求,做了上图整体搭配.整体比较简洁和大方,满足业主对生活的需求!

华邦繁华里餐厅效果图
餐厅效果图 :根据这个户型,设计师认为餐厅是一个独立空间,加上业主不需要那种摆放一张桌子的餐厅.所以在此处设计师靠近墙面设计一个卡座,两边
相连着展示柜和酒柜,之后餐桌可以横向放,这样既能节省餐厅空间,又能起到舒适居家的感觉.

华邦繁 华里 客餐厅效果图
华邦繁 华里原始测量图

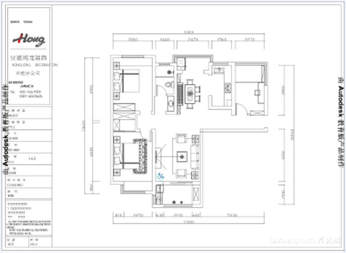
华邦繁 华里平面布置图

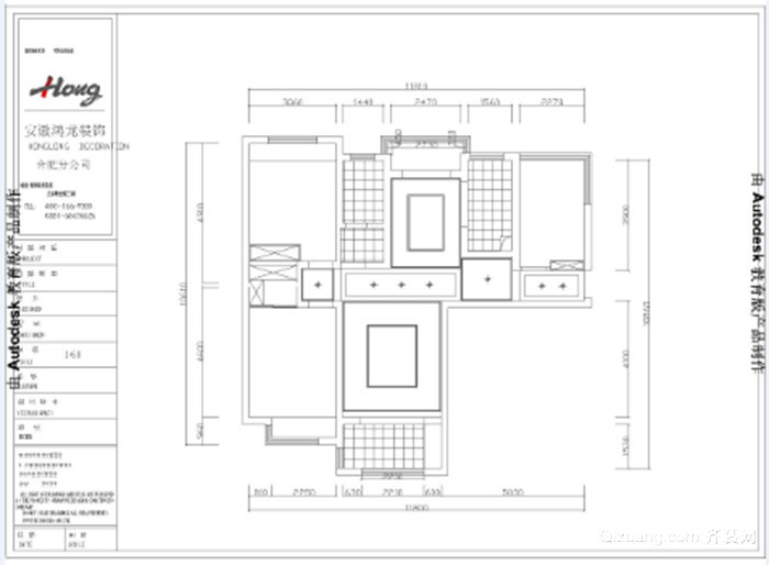
华邦繁 华里顶面布置图