水袖翩翩,
乾坤自得。
书香悠悠,
精妙内省。

项目地址:沈阳郡原小石城
风格:中式传奇
面积:140㎡带地下室
项目说明
中式之美,源自形而上的哲思飘逸。浓淡相宜中,情怀尽显。本项目便是将中式的沉稳与灵动巧妙结合的例子。
中规中矩的边框造型,古色古香的家具器物,与飘逸洒脱的写意符号巧妙融合,给家更多人文情怀。

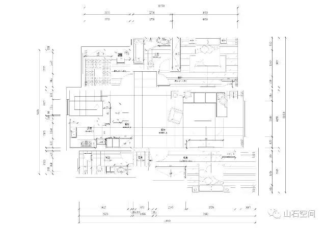
一层布局





极具中式特色的线条勾勒出空间的优美淡雅,古色器物给家更多沉稳质感,写意妆点让家更多灵动气韵。

中式元素融入现代生活,让日常更多情怀调性,让家更不同凡响。


主卧。大方淑仪,给起居更多舒适质感。

客卧。

榻榻米室。

负一层布局


影音室

休闲区
素雅中不失活泼灵动,让家更多品质内涵。
空间可以成为人更好生活的助燃剂,让生活不简单于柴米油盐的日常。
创美于家,大方怡心。