以下文章内容来自一兜糖家居APP屋主:liam妈妈
设计理念

话说我这套房子是我的第二套房子了,本来是买给父母住的,因此面积不大,建面105个平方。但是父母去看过房子后,不是很喜欢(比如周边设施不齐全,离高架不远,嫌吵),最后商量的结果是这套房子我们自住,把第一套房子给父母住。 因为是我们仨住,所以在空间上考虑了一些。比如,必须有个书房,给老公办公;要有个储藏室,堆放杂物;空间不大,要选购的家具尽可能带抽屉,这样整体就不会太乱;冰箱必须是双开门的,可以放很多零食。。。最后还有一个必须的条件,要做我内心深处一直向往的美式风格。。。。
气质灰作为整个房间的主体色搭配复古的白玫瑰壁纸,从入户开始就给予空间优雅宁静的初步印象,而清新的芥末绿加入则在宁静中又有了生机和活跃,主卧的灰绿是随着客厅的整体气质行走,灰紫的窗帘打破大面积灰绿最后的沉定归结于床尾深酒红的衍缝被,儿童房的颜色则相对比较大胆,带有航海家的主题性。整个空间氛围的表达还是围绕着充满生活气息的原则,带动着业主更好的去享受生活的美好,恬淡为上胜而不美,不仅是设计的表达更是生活的诠释!
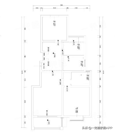
户型图

设计师为了满足我的储藏室心愿,把原先餐厅的位置让了出来,做成了储藏室;餐厅则摆在了进门口的右边(正好有一块3-4个平方的空间);厨房里得有个位置摆放双开门冰箱,又从小小的书房抠出了一角
先贴一下平面图

客厅

从这个角度能看到电视背景墙。其实什么装饰都没有,就是简单的贴了墙纸。
买了和木居的一个地柜和一个副柜。本来我觉得应该买两个副柜的,可是设计师说一个副柜就好了
摆好后,觉得也还可以,空档处放了一盆绿植。
言归正传,下面开始贴图
房子是自己住的,我装修房子的第一目的是要实用,第二才是美观。
客厅沙发一景。沙发是和木居的,因为有抽屉,所以可以塞很多很多的东西
其实设计师对这个沙发不是很满意,嫌大,但谁叫我喜欢有抽屉呢!实用第一!





用手机补拍了一下客厅纱帘的细节图。很漂亮的纱,我很喜欢的说

这里可以看到进门处,设计了挂衣架,还有鞋柜,可以放很多很多鞋
家里柜子设计的很多,实用第一啊。
餐厅的位置比较小,不过对于我们这样的三口之家吃饭也够了
和木居的餐桌设计的还行,可以拉开变成一张圆桌。方便家里有客人来
椅子其实有四张,为了拍摄效果,改成2张了,椅子有点大。
餐厅

餐厅位置的墙壁设计
设计师选择了贝壳马赛克镶边
画是拿着塞尚的一幅画找本地的画师临摹的
玄关

进门口的鞋柜,以及储藏室的外墙。
柜子都是木工打内体,门外定的。
柜门都是实木的,很坚实
储藏室的对面是书房和厨房,左侧是儿童房。
家里用了新风系统,顶上到处都要包。这个实在是没办法。
用了新风系统,平时窗都关的,也不闷。
一周下来,桌子上也看不到灰,真的很好。
电视背景墙这一面我都是贴了壁纸,这里照片缺了,等周末有空来补拍一下
很多朋友问壁纸的型号,我查了一下,是正品布鲁斯特 浪漫之都 Chatham House 112-48301

由于做了个储藏室,难免多出来一条走廊
而且还影响光线
设计师很人性化的将储藏室对面的厨房和书房的门全部设计成双开玻璃格子门
确保了有一定的通透感
储藏室的外墙做了护墙板,用了一些线条,有美式的赶脚了。
地板是小众的金鹰艾格9110三层实木复合,素素的,很原生态,特别耐脏
第一套房子用了深色实木地板,稍微有点灰家里就看的很清楚
这次选择这种浅色地板,感觉好多了,周末请钟点工打扫一次
平时我偶尔拿无纺布拖拖个一次,家里也看不出什么脏了。
还是那句话,实用第一
储藏室


厨房

用手机拍的厨房的对面。现在入住了,东西也凌乱了。。。
厨房一角。
没有选择美式小砖,一方面是害怕那么多的缝难以打理
另一方面,厨房光线不太好,美式小砖颜色都偏深
这次选用的墙和地都是一种砖,塞尚的
表面是那种很通透的光泽
图片没拍出来,看起来特别干净特别亮
迎合了我对厨房整洁光亮的要求

卫生间

卫生间的干区。
用了爵士白大理石条形砖,比较素雅
干区做了高柜,可以放很多很多的卫生用品和化妆品
超级实用
高柜、厨房和阳台的柜子是我乐橱柜做的
门板用的是德膜的复古橱门,据说以前这款只用在工装上
效果跟实木的很相像。。价格也是德膜里面最贵的。。。

小小的卫生间湿区,只有4个平方左右,就放了一个马桶和一个淋浴区
照片回头补拍一下
墙面贴了仿大理石的白色瓷砖
用了两种拼法,简单素雅
浅色砖同时也显得空间比较大

书房

晚上用手机补拍了一张书柜的照片。效果肯定不能跟单反比。先这么凑合着看。
书柜也是和木居的。
书桌可以简单到用一块整木板代替。。。
这块木板重达400多斤。物流拖到楼下
我们全家都不知道怎么拉进电梯
最后是5个大汉一起,用了两辆拖车,才好不容易拉到电梯口
当时真担心塞不进电梯,因为木板有2米多长
要是塞不进,我都有扔掉的念头了
最后很庆幸,勉强挤进去了。
木板的色泽跟我买的和木居的书柜和办公柜很一致
感觉浑然一体
很多朋友看了以后都跟我要木板的网址

书房的子母门,手机功能简单,拍的效果差些,大家随便看看吧

男孩房

红色的男孩房,一开始用这个颜色犹豫了很久,做好后获得很多人的好评。。。
中间用贝壳马赛克隔开,下面是复古藏蓝色地图,很美式,有没有?
设计师也很得意
儿童房家具是芙莱莎的松木系列,白色的水性漆
很环保,床的右侧是书桌,五斗柜和衣橱(照片有待补拍)
床品大鲨鱼绗缝被是在一家“金色的心”的网店买的,是孤品
现在没有了。
窗帘是实体做的,亚麻深蓝布,加了层遮阳布,还做了个幔头,红蓝拼接
本来打算在网店定窗帘的,后来担心效果出不来,最后还是选择了实体。。。
效果是很满意的


晚上把儿子凌乱的书桌用手机补拍了几张,墙上的软木贴上贴了最近小儿画的两幅几何画
让他也臭美一下


儿童房的五斗柜和衣柜。房间很小,东西也就紧凑地摆着。本来还想整些玩具柜
可是实在是没地方放了。小房子唉。。。

主卧

主卧打造紫色系,包括紫色的窗帘,床品。
家具还是和木居的,可能没有美克美家、HH的美式感强
话说我在家具上可能是为了省钱。。。
床是和木居美筑亚加拉床,没有链接,实体店购入
窗帘是在实体石头剪刀布做的,效果我非常的满意
床品延续我最爱的酒店风,白色,上面压了一床紫色平绒手工绗缝被
效果杠杠的。。。
床的右手边是一排整衣柜,可以放很多的衣物,有6个大抽屉
加上多功能柜的6个抽屉,我实在是太喜欢抽屉了。。。
主卧值得一提的是顶的设计。其实我家层高不高,又铺了地暖
最后净层高2米6都不到。但是在屋子里没有压抑的感觉
因为设计师在顶上四周用了一圈纵深线条,整体给人一种向上延伸的感觉
所以有时候,设计真的很重要,细节决定品位。。。



阳台

阳台一角,有些偏色,窗帘应该是黄绿色的
因为客厅在阳台里面,所以我在客厅只用了纱帘,没有窗帘布,省钱了,效果也不差。。
阳台窗帘是整间屋子最贵的,绿色窗帘上一绺一绺的白色叶子绣花
很雅致。。。。

先贴这么多。链接明天来慢慢弄,太花时间了。还有一些角度的图片要补拍了。回头拍好了再传。感谢大家的跟帖。我家儿童房的墙漆也是设计师第一次使用,很大胆的尝试。昨天晚上回家拿手机补拍了一些书房、厨房、儿童房的照片,补充在在1-2页了。大家对我这套房子的色彩都做了肯定,在此我非常感谢大家哦。我找了一下设计师对我家设计的整体定调,比较有文采的一段话: 气质灰作为整个房间的主体色,搭配复古的白玫瑰壁纸,从入户开始就给予空间优雅宁静的初步印象,而清新的芥末绿加入则在宁静中又有了生机和活跃,主卧的灰绿是随着客厅的整体气质行走,灰紫的窗帘打破大面积灰绿最后的沉定归结于床尾深酒红的衍缝被,儿童房的颜色则相对比较大胆,带有航海家的主题性。整个空间氛围的表达还是围绕着充满生活气息的原则,带动着业主更好的去享受生活的美好,恬淡为上胜而不美,不仅是设计的表达更是生活的诠释!我家的硬软装都是在设计师主导下逐步采购到位的。设计师开着一家独立工作室,还带着一个徒弟。整个装修过程我都跟他们保持了比较好的默契和配合,我觉得这个很重要。这次装修完之后我深刻感受到了设计的重要性。也许有一些装友想省点设计费,但其实在整个装修过程中不仅费心费力,花了很多钱在材料上但是效果未必好。我家空间比较小,但即便如此,在很多细节方面,木工做着做着就发现有些地方照着图纸没法做,需要设计师现场协调。所以即使有图纸,也是不够的。更不用说大房子了。。。 到了后期软装阶段,设计师更是很贴心的帮我做了效果ppt,上面附了她从淘宝上选择的软装图片和链接。我一一过目,在比较了价格后觉得合适才下手。效率非常的高。。。
这个洗脸台的宽度是多少?高柜的宽度和高度,是一直到吊顶处吗?? 高柜侧面是怎么和洗脸台连接的?高柜是单独立在地面带金属腿吗?高柜和洗脸台的柜子是连在一起的吗?谢谢!我也想做这样的干区洗脸台,正好看到楼主的帖子,真是太及时了!
回复:宽度正常是60cm,高柜的高度一直到顶(留一点距离给收边用,可能是10cm吧。这个要看橱柜公司的收边条的高度),上面用顶线收边,顶线从高柜的顶部绕着一直用到镜子的顶部(镜子那里也用收边是因为如果不用的话,柜子的侧边也有收边,与墙角就有一个弧度的厚度,使得镜子的边缘贴不到最顶部,会很难看)。高柜侧面我家是贴了大理石马赛克砖(玻璃胶贴就可以了),没有拍到图片,回头我补拍,给你看一下。洗脸台与高柜侧面的连接处就跟墙壁的连接处是一样的效果了。高柜是立在地面带金属脚,外部边缘有踢脚线。高柜和洗脸台的柜子橱柜公司做的时候是分两块的,然后用台面盖上去,四周有台面后档,与墙面的大理石砖连在一起,用玻璃胶一打,看起来就是整体了。
我家做的顺序是这样的,先贴好墙壁上的砖,然后做好柜体(罗马柱,顶线,门板都先不装好),安装柜体,接着在高柜的侧面贴砖,然后再装门板,处理边线,在处理高柜离侧面一面的罗马柱的时候,要注意外翻8cm,是因为砖有一定的厚度,罗马柱的宽度要覆盖住砖的厚度



补充更新

周末用手机补拍了几个角度的照片,现在已经入住,家里摆的有点乱了。加上现在对装修的热情度已严重下降,大家就将就着看吧。照片都是用手机随手拍的,效果肯定不能和之前的单反效果相比。聊胜于无吧。谢谢大家对我小家的赞美!在此鞠躬。
先补上卫生间。卫生间因为隔了一半出去做干区了,湿区的面积很小。
所以就很简单的做了个淋浴间,一个马桶,加一个洗衣篮,没啥花头精
紧凑型房子就是这样的缺陷。没有办法,以后等着有钱换大房子吧。。
马桶是toto的,强烈推荐,冲水快,而且省水,过几天用刷子刷刷就干净。
当时在科勒和toto之间徘徊了很久,最后还是倾向于toto。
不过科勒也很不错。。
卫洗丽用的toto的一个遥控款,遥控面板平时就丢在篮子的上层,
超级方便喜欢哦。
双层洗衣篮淘宝上买的,跟我家马桶旁边的空间紧密贴合
简直是量身定制的。。。洗衣篮非常实用省空间,强烈推荐
脸盆用淘宝上买的钩子固定在墙上,也极省空间。
一个钩子试过,可以套三个


应前面有个网友的要求,再上储藏室内部结构。
储藏室里堆的有点乱了。实在是很不好意思。不过这也才有生活气息嘛
其实家里还有好些东西都丢在老家,没拿过来,包括鞋子什么的。
储藏室里东西都随便乱摆了。
当初设计的时候,储藏室的空间设计师是帮我花时间想的,
挂衣区、摆鞋区、杂物区、大件区,都设计到了。非常实用。
一个家里,要是没有储藏间,我真的难以想象如何将很多杂物摆放在一个合适的位置
所以,对于现在准备装修的装友们,我有个过来人的强烈建议
家里,一定要准备一个空间作为储藏室,真的太太太重要了。
第一幅图,左手是挂衣区,其他几层是大件区,现在还比较空
不过不用着急,家里东西都是越放越多的,以后只会恨空间太少;
右手位置比较浅,是鞋子摆放区
(话说我鞋子都放在老家和门口的鞋柜了
所以摆鞋区现在堆了一些杂物。见笑了。)

下图二:中间一块区域,左手是鞋子摆放区,右边一块比较进深的,是杂物区。

下图三:
储藏室最右边的一头,是大件区,放了被子、箱子等等,平时不用的衣服叠放后
都放在这个区间。靠近门口还有一块小空间,放了吸尘器,移动凳,还有熨衣架等等
反正只要不适宜放在外面看得见的东西,全给我塞到储藏室了
最后门一关,什么都看不到啦。家里整洁了。
我家储藏室很小,也就3-4个平方左右,不能跟大户的大大衣帽间相比,
不过在我这个很小的房子里,能整出这么一个储藏间,我已经很满足了

最后补张客厅电视机那头的正面图。我家没有背景墙,就是用墙纸做了一下装饰,比较简单。
用手机拍的,可能是镜头功能有限,老是拍不到整体图,效果自然很一般了。
一个电视柜+一个副柜,旁边摆一盆绿植。
电视机是60寸的,把电视柜上的空间撑的满满的,
电视柜原先还有些软装饰品(主要是瓷器),后来怕被孩子打碎,全收起来了。


还有个网友要看一下我家卫生间干区那块高柜的结构。我现在也补拍了。
下图一:正面图

图二:高柜内部图,可以看见内部空间相当巨大

下图三:柜子进深很深,放一个10盘的卫生纸绰绰有余

下图四:水槽下部结构,因为有厨宝,把一块隔板取消了,
右侧那个黑乎乎的大洞,里面是地暖的分水器
买了三个可以抽拉的储藏盒,很实用方便

最近对床品比较着迷,睡个好觉是我现在最期盼的好事了。准备找一家淘宝店做法国亚麻的床品,要是效果好,拍图上来给大家瞧瞧。实木线条最后一张图上面的是梁。客厅里走了两圈石膏线。金鹰艾格,9110三层实木复合
以上就是一兜糖家居APP屋主:liam妈妈 的全部内容了
最后,一兜糖家居交流微信群持续开放中,感兴趣的小伙伴备注*今条头日**,添加“yidoutang222”即可~
关注一兜糖家居公号“yidoutang123”,第一时间get到新出炉的家居干货哦~
本文由一兜糖家居APP头条号整理发布,未经授权禁止以任何形式转载。