- 风格: 欧式
- 面积: 108㎡
- 户型: 3室
- 小区: 中天城苑
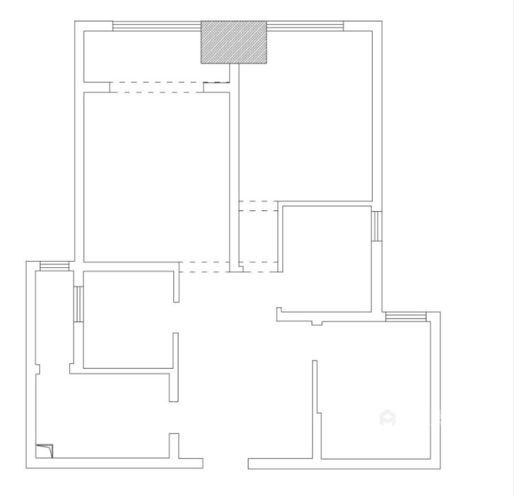
业主需求&原始结构图
本案为一对年轻夫妇还有他们可爱的儿子,业主平时较注重生活品质,所以自身对设计要求较严格,比较偏爱欧式风格,因设计师考虑到业主年轻时尚,所以推荐了简欧轻奢风格。

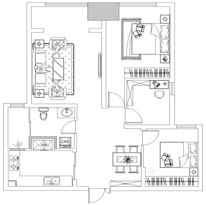
平面设计图及设计说明
业主是一对年轻夫妇,所以这套房子不管是户型改造方便还是后期的软装搭配,都是根据业主的性格、居住习惯等量身定制的!家里整体为欧式风格,客餐厅为浅蓝色墙纸,有三个房间,房间以浅色为主。

客厅效果图及设计说明
在本案设计中,设计师运用柔和灯光和其它色彩搭配,为整个家铺垫一层优雅的基调,又搭配金色减去白色带来的冷色感,使得氛围更为轻快,配以香槟色金属条,在木饰面、石材、金属材质的碰撞中,彰显出丰富的肌理效果,为业主提供舒适的感觉。电视背景墙以大理石为主,金色不锈钢做点缀,表现尊贵的同时添加了一份现代感



餐厅效果图及设计说明
餐厅将现代元素与传统文化的精华提炼作为设计的语言。餐厅家具选用了圆滑的桌椅,周围点缀着金色的摆件,最令人惊叹的一笔还在顶上的金箔色的提色,整个空间不仅亮了起来还有丝微的惊艳。

卧室效果图及设计说明
主卧空间是居家私密的空间,空间布置更具个人化标签。设计对空间背景做了整改,原本寡白的墙面,通过设计师换面延续着客厅的尊荣;设计回应和谐与自然的主题,家具选型上不拘一格,床头柜兼具强大功能的同时彰显现代
