
序
五年前我装修去了解过一次集成灶,高昂的价格与弱鸡的配套产品让我放弃了。最近在看了几篇集成灶的文章后,感觉这个行业似乎变化很大啊!于是又有了在新房子里装集成灶的想法。为了了解这个产品现在的技术情况,我在五一假期分别到亿田、奥田、美大、火星人、森歌、帅丰、凯度这七大品牌专卖店进行了了解(排名按探店先后顺序,下同),结果大受震撼。想了解万元价位的集成灶怎么选,就来看看吧!
为什么选集成灶
省空间

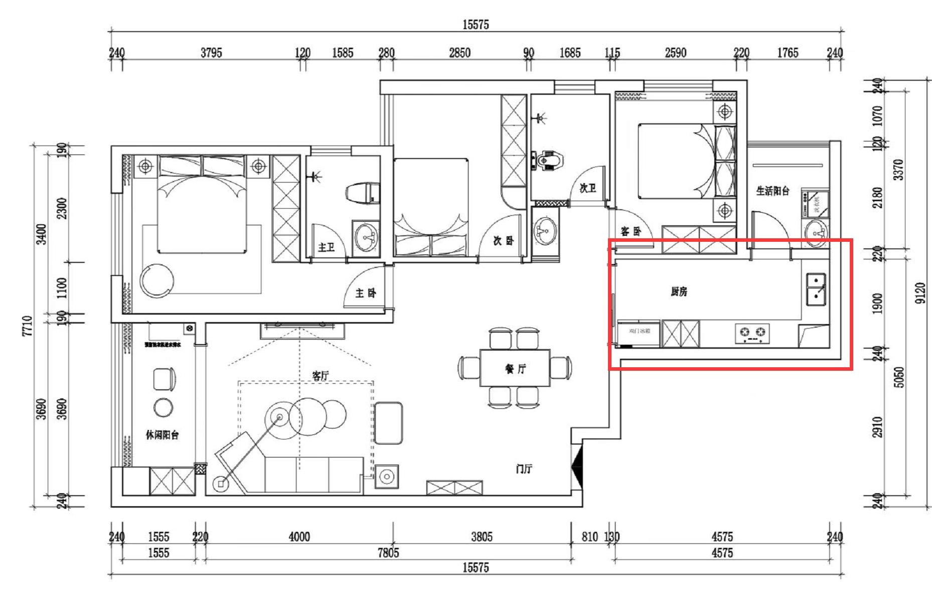
目前国内商品房基本80-120平米为主,为了满足大客厅的需求厨房空间一般都比较局促。一个集成灶能节省蒸烤箱+抽油烟机的位置,多出的位置可以放洗碗机以及多一组吊柜,还是非常香的。这是大多数人愿意为集成灶买单的原因。上图是准备装修这套房子的布置图,119平米的房子,厨房宽度1.9*4.57米,还没去掉墙厚,单位房子已经专门强调了厨房要大了,但是也就这么点大。
更好的抽烟效果

集成灶的吸风口比抽油烟机更贴近灶台,抽油烟效果基本都会比传统油烟机要更好,对于喜欢做敞开式厨房的用户来说更加合适。
七大品牌探店实测
我对集成灶的预算在1万左右,超过就没有了性价比,碍于成本会考虑继续用分体式。集成灶销量最高的产品也在这个价位,万元出头是大众对集成灶的认可与选择。
在功能上,目前集成灶下方可以选的组合有消毒柜、蒸箱、烤箱、蒸烤一体、蒸烤分体这几种。我倾向选择蒸烤一体,这也是各大品牌目前主推的。
其他的,就看各家分别有什么技术特长了,本次探店开始。
亿田
亿田的销售个个经验丰富,非常眼尖,我穿着牛仔裤T恤背个双肩包进去,一看就不是那种容易被忽悠的(穷的意思)....直接就带我去看销量最高的1万左右的款式了,进来的中年夫妇直接被带去看“亿田全新研发的智能AI一体集成灶”。我跟着过去看了下,核心卖点是带有屏幕,系统内置了一些蒸烤预设菜谱的功能,比如蛋挞预设好温度与时间,不用再去看食谱了,然后价格两万多、三万多,分别是次旗舰与旗舰...我刚写完的五百块烤箱就有七八个预设菜谱。这两三万的价格,确实不是我这个级别应该看的。

亿田主打蒸烤一体符合预算的型号是S6ZK-A,销售在确认我不可能会买两三万的旗舰之后,也悄悄的小声的不让周边大叔大妈听到的声音跟我表示,这其实是店里面的走量款,买这个绝对没错。当问到蒸烤一体与蒸烤分体选哪个的时候,估计是我的英俊把销售打动了,小声跟我说别买蒸烤分体的,同时用功率上不去....把我整得,老感动了....
S6ZK-A店里面活动价在1.3万,估计实际下单还能再谈到1.2万左右。

产品采用下置电机(电机在底部横放),是这次探店7个品牌中唯一采用下置电机的品牌,所以可以看到下部封闭的部分很高。
风压现场销售表示为480pa,但查京东产品页面为360pa。
有熄火/起火断气功能,但没有燃气灶定时关闭功能。

蒸烤箱方面,容量是75L,蒸汽采用的是蒸发器双直喷,烘烤采用的是上下背三面热管,热风是集成灶中少见的在背面的款式,内部涂层采用的是麦饭石。
服务上是整机三年保修,电机终身保修。
纯蒸温度范围55-100°,烤箱最高230°,但数据是销售口述,京东有产品但没数据,客服不解答,官网都没有这款产品数据。

在核实产品的纯蒸温度与烘焙温度的时候,销售直接告诉我一个数字,我去官方上查询不到这个型号,销售又很大方的丢了个京东链接给我,当时我还诧异了,那么佛系不怕我京东单么!结果京东仅仅提供产品页面没有标明参数,咨询京东的亿田客服,线下的款式一律不作答,让我线下咨询...看来亿田对我这种线下看线上买的人做足了预防措施,把控到位。

亿田印象:亿田是使用直喷式蒸汽的唯二两家,烤箱温度也能到230°的主流温度(未经核实也核实不到)。没有燃气定时关闭觉得比较可惜。风压较小,虽然低楼层用户有350pa也就足够了,但长时间使用后风压衰减会是一个问题。
亿田也是唯一电机下置的品牌,因此蒸烤箱内部更加扁平也更深一些。销售表示下置电机可以把风扇做得更大,风力也更强,但从我的理解,下置电机就代表着距离吸风口更远,风道要足够的密闭才能实现大风力,这自然也代表着日常维护的困难,时间长了密闭性不够了抽风能力也会下降,当然,只是我个人的理解。
奥田

奥田的销售是两位四五十多的阿姨,人比较实在。是唯一看到有白色集成灶的品牌,我进门一直在看白色的,而阿姨很实在的说:小火鸡,辣个白色D不系活理的啦(那个白色的不适合你啦),直接就拉我看蒸烤一体的主打款了,也很实在的表示这款是目前性价比最高的。
销售阿姨主推的蒸烤一体型号为zkM5 ,是最近卖得比较多的,活动价格可以做到1.2万,我估计谈一下应该可以到1.1万。

产品采用后置电机。风压阿姨表示为650pa,京东产品页面查询确实是650pa。别小看这个,许多销售风压静压不分(或者故意不分),静压当风压说是常有的事情,奥田的两位阿姨很实在的就说了出来,真的很难得。
有熄火/起火断气功能,有燃气灶定时关闭功能。

这款机器是同价位较少上部带有温菜功能的产品,就是顶部有3个位置会加热,给菜保温。好笑的是两个阿姨自己介绍着介绍着就自己互相说了起来
a说:我觉得这个不实用,需要平底的碟子,很不方便
b说:哎呀~用那种铁盘子就很方便啦
a说:现在年轻人谁跟你用铁盘子哦,老古董了
......我在一边只能赔笑不出声,似乎我是销售,两位阿姨才是来买东西的。
蒸烤箱容量是70L,蒸汽底部煮水式,烘烤采用的是三面热管左边热风,内部涂层是特氟龙。
服务上是整机三年保修,电机终身保修。
纯蒸温度范围80-100°,烤箱最高200°,数据核实京东页面一致。

奥田印象:七个品牌里面唯一有白色机型的品牌(万元热销款不是白色),奥田有两个专利是销售重点宣传的,一个是自吸风门专利,就是在灶台上方的入烟口采用的开合阀门设计,不使用时是封闭的,宣传作用是防回烟、防虫防鼠。另一个专利是双模加水,在上部有一个注水口与水箱连通,可以在蒸时从上部给水箱加水,减少抽水箱去加水的过程再加上顶部三个热菜盘,奥田没有因此增加太多的溢价。
本次探店风压最大的就是奥田家,这点挺好,两位阿姨很实诚,这一点也挺好。
美大

美大是这次探店中门面最大的。美大的销售是个年轻的小姑娘,浑身充满战斗气息~眼神闪烁着青*光春**芒~的那种。美大的营销风格与其他品牌不同,首先就突出是A股上市的集成灶品牌,不单单发明了集成灶,它的技术还解决了厨房的痛点!
问如何解决厨房的痛点,“美大使用了权威性的技术以及一流的做工解决了用户厨房里面的痛点...”反正细问下去,都是各种口号营销,没有涉及到我需要了解的实质内容。
询问款式的时候也是,美大的销售打算从3万多的一路给我往下讲,我一看她股劲儿估计打算留我吃晚饭赶紧打断,要求看1万元左右的主打蒸烤一体的款式,在坚持了多次不看更贵的不看更高级的不看更强大科技的理念后,她终于明白了我是个穷鬼,才带我去看美大主打蒸烤一体7706ZK。店里面活动价在1.58万,估计实际下单还能再谈到1.4万左右。

产品电机后置。风压小姑娘表示为400pa,与京东一致。
有熄火/起火断气功能,也有燃气灶定时关闭功能。

蒸烤箱方面,容量是65L,蒸汽采用的是煮水式,烘烤采用的是上下左三面热管,内部涂层采用的是不锈钢压纹。
服务上是整机三年保修,电机终身保修。
纯温度范围40-100°,烤箱最高180°,但数据是销售口述,京东与官网都没有产品数据。

美大印象:美大的销售最有特色!这点没有一家能比!技术上比较有特色的是两个点,1个的是电控止逆阀,止逆阀在集成灶启动下才会通电打开,销售表示这个设计是为了应对现代住房烟道在煮饭高峰期时,普通止逆阀会被烟道内的风压影响没法100%打开,而美大可以通过机械式完全打开,现场还有一个模拟烟道的测试,让大家看到电动阀门的效果。另一个销售宣传的特点是手势控制。

后续的微信沟通中给我科普了各种知识,讲真如果我不是一个很熟悉蒸烤箱的人,真的会被她营销成功了!她甚至还给我发了几张知乎的截图,内容是搪瓷不如不锈钢的文章!可见美大的培训是多么的全面啊!就问你顶不顶得住?
当然,美大也是7个品牌里面最贵的...这也是我毫不动摇的原因之一
火星人

在美大出来膝盖都有点软,好不容易撤退跑到旁边的火星人的时候,火星人的销售小姑娘似乎刚刚接待了不太愉快的客户,跟我沟通的时候完全体透露出一种“我们家东西那么好你们居然不识货”的娇嗔,这种品牌自信也是让我对火星人有深入了解的念头。性价比型号是q35bc,活动价格可以做到1.32万,谈一下应该可以到1.2万。

火星人从机器做工到外观设计甚至店面的设计,统一的销售服装,在几家来里面感觉最好,也难怪小姑娘对自家产品的自信。
产品采用后置电机。风压现场销售表示为900pa,京东产品页面查询是370pa。
有熄火/起火断气功能,没有燃气灶定时关闭功能。

蒸烤箱容量60L,蒸汽采用煮水式,但比别家的都要浅很多,应该采用的是跟方太嵌入式蒸烤箱类似的二代煮水式蒸发器。烘烤采用的是三面热管左热风,内部涂层是瓷膜。
服务上是整机三年保修,电机终身保修。
纯蒸温度范围40-100°,可以开启烤+蒸实现120°,烤箱最高230°,京东与官网没有数据无法核实。

敢于把一台机器敞开给用户随意观看,说明品牌有自信,最起码在用料做工上,绝对处于同品类上等水准,否则不敢这么来宣传。这可远比用电机泡水有诚意多了。

火星人印象:销售重点突出的是用料,玻璃隔板的厚度、灶具使用的金属材质等等,从拆机看用料与做工确实还不错。销售也提到了火星人较浅的煮水蒸发盘可以让蒸汽来的更快,原理上类似于用平底锅煮水跟用深口锅煮水,浅一点自然升温快,但没有燃气定时关闭功能,风压小,容量只有60L。
森歌

喘了口气来到了森歌,接待我的销售是一位性感型的美女,穿着紧绷的迷你裙,身边一直跟着两位中年男女,后来才知道是老板跟老板娘,美女销售是刚培训完,老板在旁看看有啥需要指导的....
森歌符合要求的型号是i3ZK,活动价格可以做到1万,谈一下应该可以到万元以下,是这次探店中价格下万元的唯二之一。

产品采用后置电机。风压现场销售表示为780pa,京东产品页面查询是370pa。
有熄火/起火断气功能,没有燃气灶定时关闭功能。
聊了一下估计老板发现我略微专业,于是换下美女亲自来跟我谈了,但除了突出森歌服务好、售后好的特点外,介绍技术特点时,最大的特点居然是煮水式蒸发盘有一个金属盖子,在不使用蒸功能的时候可以盖起来...

蒸烤箱容量是66L,底部煮水式,烘烤采用的是三面热管左热风,内部纯不锈钢没有涂层。
服务上是整机三年保修,电机终身保修。
纯蒸温度范围60-100°,可以开启烤+蒸实现150°,烤箱最高230°,机器上印有可以确认。

森歌印象:森歌功能跟各家集成灶宣传的内容相差不大,电机强劲、抗油、一体成型等等,核心是突出服务到位以及售后各种优秀,在门的内壁有简单的一些功能介绍让我觉得还是用心的,但整体品质感觉没有其他家的好,也不知道是销售不专业还是店面灯光的问题,再加上风压不高,没有燃气定时关闭功能,唯一记住的优势就是价格方面,其他方面印象都不是很深刻。
帅丰

帅丰店面都是男销售,而且都不是鲜肉,都是30-40的男销售为主,带来的特点是啥呢?有非常典型的“我是最强的!”藐视一切的男销售风格,带来的好处很多,比如我直接说给推荐销量大的,人家直接就推荐了销冠j2-7b-90,没带墨迹的,这款机子活动价格可以做到1.1万,我估计谈一下应该可以到万元左右,价格比较不错。

产品采用后置电机。风压现场销售表示为800pa,京东产品页面查询是450pa。
有熄火/起火断气功能,有燃气灶定时关闭功能。
对产品的自信也有一点核心原因,两个销售估计都有多年的工作经验,多次提到在本店开业10年,我在这个行业那么多年一类的词,对这个行业、对本品牌都是非常熟悉,问问题啥的回答得也是非常精准,也不会给你一大堆的营销套话。

蒸烤箱方面,容量是70L,蒸汽采用的是底部煮水式,烘烤采用的是三面热管,内部涂层为搪瓷。
服务上是整机五年保修,电机终身保修,本次七个品牌整机保修唯一一家五年的。
纯蒸温度范围40-100°,可以开启烤+蒸实现200°,烤箱最高250°,属于传统品牌里面蒸烤比较强的了。

帅丰印象:帅丰是唯一一家都是男销售的品牌,男销售厨电专业性强了一些,不再是简单的讲培训内容了。在蒸烤方面应该是传统线下品牌做得比较优秀的,无论是纯蒸的下限还是蒸烤结合的温度,以及烤的上限温度都很不错。销售也较多的介绍了关于产品品质方面的内容,价格上也比较合适,我很在意的燃气定时关闭功能也有,容量也够大,整体没啥明显的短板。
凯度

看完帅丰刚好看到凯度的招牌,店里面居然也摆了集成灶,于是就顺便过去看了下,发现居然真的是凯度集成灶!凯度的销售在专业性上就好了许多,电力是蒸烤箱跟集成灶一起在卖,凯度毕竟是蒸烤箱旗舰品牌,因此销售在介绍集成灶的知识上会对蒸烤功能更加熟悉。
凯度店面主推的型号是XE,活动价直接是8999元,还有不少东西送,感觉谈一谈还能下来点。这价格看得我心动动。

产品采用后置电机。风压现场销售表示为400pa,京东产品页面查询无误。
有熄火/起火断气功能,有燃气灶定时关闭功能。
凯度的销售策略倒是做得很好,“集成灶普通功能,我们跟其他品牌保持一个水平”,这是一个基准,告诉我,别人有我也有!然后“蒸烤箱这块,因为我们是蒸烤箱专业厂家,因此会比其他品牌好不少”,这是告诉我,人有我优!

蒸烤箱方面,容量是60L,蒸汽采用的是蒸发器双直喷,烘烤采用的是三面热管,也是侧面热风,内部为不锈钢+底部陶瓷,顶部带有保温饭菜的功能。
服务上是整机三年保修,电机终身保修。
纯蒸温度范围30-120°,烤箱最高230°,蒸烤的上下限确实是凯度应有的风格。

当我对凯度销售表示,感觉集成灶的蒸烤箱都处于入门级别,想要专业级一点的蒸烤箱大家都做不到。凯度的销售表示准备上线新款G1E,在蒸烤箱方面能满足我专业级的需求,建议我去京东了解一下。
凯度印象:
凯度销售也是比较专业的了,店面蒸烤箱跟集成灶一起卖。XE产品性能上与线下品牌的万元主打款性能基本相同,蒸烤功能还有优秀一些,价格下探到了八千多,是本次探店问到的型号中最便宜的,整体性能上也都不弱,但唯一的遗憾是没有突破线下品牌太多。

销售跟我提到G1E的款式后,我晚上到京东了解了一下,发现确如销售所说, 蒸烤箱性能上是专业级别的,而且容量也做到了80L,在我做汇总数据的时候销售发来了几张G1E的照片,让我印象最深刻的就是这个边缘厚度。此外相比凯度的XE款,G1E的风压提升到了550pa,其他方面就与XE差距不太多了。
坑点小结

我把上面的内容做了一个简单的汇总,其中有亮点的做了标红。可以看到除了美大以外,各家主销的蒸烤一体集成灶价格都集中在1-1.2W。下面我讲讲几个比较大的感受。
销售的坑:线下销售的专业性堪忧,女性为主,厨电知识少,家里八成不用集成灶,对产品的熟悉程度全靠培训,对数据也记不住,就是瞎报,风压与静压分不清。所有销售说的数据与功能都不一定真实,为了成交夸大其次或是根本记不住,一定要与京东店或是官方渠道核实,然而崩溃的是部分品牌分线上线下款,京东能查到产品但咨询客服会告诉你无资料,请去线下咨询。大部分品牌官网都没有最新型号的数据。

电机与风压:多数品牌为了表达自家电机的强大,用电机泡水的方式在店面展示,实际大家都是电机终身保修,在易损坏上没有担心的必要呀?而电机的核心一是在吸力上二是在风压上,集成灶的吸力暂无明确的测试方法,现场通过造烟锅的烟出口正对着吸风口,自然一吸就干净,但你在家炒菜的时候油烟可是四处飞散,这个模拟根本没啥用处。唯一能知道电机是否强劲的只能根据国标要求展示的风压来判断了,我个人的理解是,风压越大的机器,电机自然就好。

蒸汽方式的误导:煮水式蒸汽出得慢、不均匀、蒸汽量不好控制是显而易见的缺点,但当你提到为啥不用直喷式的时候,许多销售都会告诉你直喷式有各种缺点,如蒸汽量不够、不够均匀、导管容易堵塞等问题,把煮水式的问题加到直喷式是常见情况。而且这种万元的产品居然大部分都是采用煮水式,这个行业的大部分厂家在技术提升上不思进取的态度让人非常无奈。
烘烤功能的误导:线下实体机器会*鸡做**翅、烤肉串的方式在现场进行钥匙烘烤功能非常厉害。常用的术语就是别人家温度都是虚标的我家温度是够力的,别家开200度烤肉,我家开150度就可以了。对烤箱熟悉的人都知道,一个电烤箱温度能差10度已经是很烂的了,你这个“别家”能差50度也真的是醉了。烤肉而已,开150度跟200度,区别不就是时间而已么...而且基本你是到那里就差不多可以吃了,很少有见过从生肉放进去考给你看的,更不用说有啥吐司、戚风、整盆蛋挞这类考验烘焙均衡性的产品试给你看了。
我认为除凯度外,所有的集成灶品牌在烘焙功能上都偏弱。比如只有凯度一家在烘烤旗舰机型上,在左右都放置了一个热风风扇,解决了长方形的腔体内的均匀问题,注重烘焙功能的用户要对这一点有充分的认识。

容量与空间的误导:别觉得60L的空间大得不得了,蒸烤箱许多内部都是细长的造型,深度不够是一个很重要的问题,不然各大品牌摆在里面的样品碟子就不会都是普通小碟子了,注意看实际能用的空间最为重要。对我来说,第一感觉就是怎么蒸烤箱那么小?四周那么厚?销售告诉我因为周围有各种电路所以需要那么厚的空间,然而看到凯度的产品实际上又并非如此,是技术问题导致的,还是不思进取导致的?
安全与定时:熄火/起火断煤气、定时关煤气,这些在传统烟灶大厂都极少见到的功能(日本除外),在集成灶上有一半的品牌都能做到,这一点真是难得,这是唯一集成灶优于其他厨电类产品的地方了。定时熄火是非常有用的一项功能,比如煲汤可以选择50分钟自动断气关火,建议大家作为选择项。
总结与推荐

如果有烘焙的需求如做面包、蛋糕等,买集成灶也是希望能省一个蒸烤箱位置的,凯度是唯一的选择了,七款机子里面唯一的蒸烤功能可以与专业蒸烤箱媲美的,带双热风,带有内胆烘干技术、空气炸功能,而且80L的空间也是最大的,缺点可能是线下店目前比较少,能探店的地方不多。

如果喜欢线下传统品牌的,比较推荐的是帅丰,风压够大,有燃气定时关闭功能,容量70L也不算太小,价格也比较适中。缺点是蒸烤箱比专业的蒸烤箱弱,蒸汽是老式的煮水式,烘烤偏向针对烤肉类型而不是蛋糕面包类型。
大家对集成灶还有什么想法,欢迎讨论区沟通!趁我还没有下单!