最近政务区又沸腾了!前日蜀山区政府举行“天鹅湖商务区”研讨会,欲把天鹅湖商务区打造成类似“曼哈顿”“朝阳CBD”“陆家嘴”的商务区CBD。原本就是合肥市价值高地的政务区似乎又被覆上一层金箔,越来越耀眼。
在政务区购置一套资产,似乎越来越难,而在政务区拥有一套资产,也成为一种追求和象征,入住政务区成为本地乃至整个安徽人的目标。
今年的政务区住宅市场,显然是被融创承包了。继融创合肥壹号院之后,11月26日上午融创在合肥的第二子融创信达政务壹号也惊艳亮相了。

融创信达政务壹号营销中心开放仪式


现场客户参观沙盘
与营销中心开放伴随着的是融创信达政务壹号产品的首次亮相。现场很热闹,许多人是全家一起来看房的,据介绍,和合肥壹号院的高端奢华相比,政务壹号打造的是更生活化的高端精品项目,生活化的定位也吸引了更多业内外的关注。
我们先来了解下项目基本情况。
基本情况
项目名称:融创信达·政务壹号
营销中心地址:政务区南二环路与茗香路交口
占地面积:约7.3万平方米,总建面约28.7万平方米
项目规划:规划3栋高层、12栋洋房以及配套商业
绿地率:35%
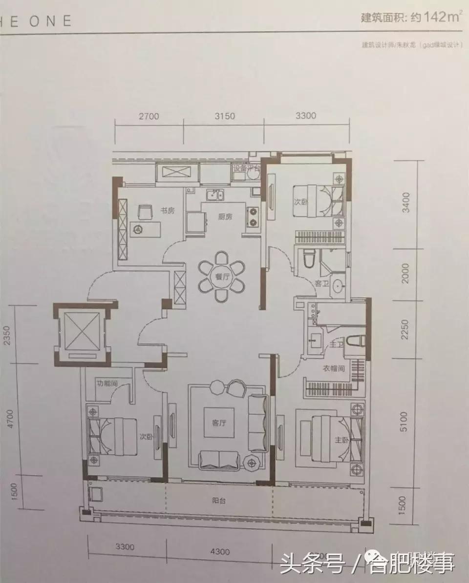
首开户型:高层:134㎡、139㎡、145㎡;洋房:142㎡
放风价:高层约2.5万,洋房约3.2万
商业配套:一路之隔就是安粮城市广场,自身配套商业
从区位上看,融创信达·政务壹号地处二环内,毗邻市经济文化中心,紧邻南二环与合作化路,距离融创合肥壹号院直线距离1公里左右,实现了两个融创高端产品的资源共享。

2016年3月24日以楼面价13928.5元/㎡取得地块,到9月30号案名发布会,再到11月26日营销中心开放,户型、沙盘、样板间全面公开,融创信达·政务壹号在限购政策之下,究竟准备以什么样的产品面世呢?
政务壹号占地约105.8亩,体量不小,包括精装洋房、瞰景高层以及配套商业等。
据悉,融创信达政务壹号即将首开,约2.5万的价格加上融创的品牌,还是有不少人为之心动的。
政务壹号 品质的升级+优化
目前热销的融创合肥壹号院作为融创在合肥的第一个项目,是融创在合肥一个具有标签意义的产品。而融创信达·政务壹号在投入及规划设计上基本一样,但更倾向于对生活方式的营造,对普通购房者来说,性价比还是比较高的。
定位的人群:更多面向行业的精英人士,从30到40岁左右的人群。据介绍,政务壹号针对客群变化,在品质延伸之外,也做了一些产品优化。
整个项目体量适中,以高端改善为主,打造高端精品项目。户型设计根据客群进行了优化,面积段可能更具性价比。
洋房142㎡

高层134㎡

高层139㎡

高层145㎡

建筑规划:由gad绿城设计操刀,采用了现代简约的处理手法。

景观:景观设计为新亚洲风格,以具有地域特色的传统文化为根基,结合传统意境和现代风格,用现代的设计来隐喻东方文化的传统。

真正的改善是挖掘客户喜欢什么,我们就放大什么。
阳台:约11米长三开间大阳台。合肥市面上的住宅一般都是单开间阳台,融创合肥壹号院当初面世的双开间阳台,深受客户喜欢,政务壹号延续了这个客户喜欢的点,放大优势,做了三开间阳台,这个目前在合肥是很难做到的。

商业配套:为业主提供更完善的社区配套,小区后面做了一个小资情调的商业步行街,是会客的好去处。
值得一提的是,通过刷卡方可抵达居住的楼层,加上走出电梯到入户的私密拓展空间,更提高了业主的安全感与尊贵感,这种设计也受到了看房客户的普遍欢迎。
园区功能升级
园区内部的功能配套:政务壹号在园区入口处做了会客大厅,而分设于不同楼栋的架空层,则设置了不同生活配套,从各个方面关爱业主生活。比如,四点半课堂,为孩子定时举办辅导服务;墨香书院,棋艺人生,是给老人提供写字、画画;而厨艺中心,则为全职太太提供自己的闺蜜圈层。

融创一直以来就非常重视业主的社区生活感受,生活在其中,老人、孩子、爱人都有圈层,也加强了邻里之间的交流。
地段到板块的升级
融创两个项目都在政务区,要说地理位置上有何不同,那就是从地段上的优越到板块上的升级了。
政务壹号其实是四个板块的交界处。从小区出来,上了南二环,向左转,有三个选择,东往滨湖或高铁站,往北上合作化路高架,直通国购之心城,东北往金寨路高架通往三孝口四牌楼,与热闹的老城区无缝连接。
项目向西则是政务区的高端商务区版块和天鹅湖,汇聚了时尚、繁华与现代,更是一个休闲的好去处。
在板块交界处,工作生活休闲娱乐都能满足。这种平衡的关系,在政务壹号这个项目得到了完美的体现。
所以说,从融创的产品战略上看,融创合肥壹号院是品牌化,融创信达政务壹号则更生活化。
融创 品牌的延续+升级
众所周知,融创在一线城市做高端住宅产品的经验丰富,一直专注于京津沪渝杭广深这些城市的开发,在高端住宅产品开发能力上是业界公认的。
为什么选择合肥?

合肥在这两年的发展,特别是今年6月国家发布的长三角城市规划中,合肥已经被列为I型大城市,走入了二线城市的行列。这引发了很多大企业开发商的关注,从去年开始,融创、金科、金茂等开发商的就已开始连续入驻。
但是事实上,房价的快速增长背后,是产品的缺失。融创的到来,无疑在一定程度上弥补了这种缺失,为合肥市场提供了更多优质产品的选择。

为什么选择政务区?

融创一直在坚持区域聚焦和高端精品发展战略,在区域的选择和产品的打造上都有着自己的标准和判断。
在杭州、武汉、郑州等强二线城市,融创的产品基本都是分布在核心区域。去年到今年,融创在合肥连续拿了三块地,其中两块在政务区,另外一块在西南区域中枢位置,都是定位高端精品,可以看出,融创一直坚持:好的地段与好的产品是需要相互匹配的。
为什么选择合作伙伴信达?

融创合肥壹号院的热销印证了市场对于融创高端产品打造能力的认可,但合肥对于融创来说,仍旧是一个陌生的市场,如何能做出更适合合肥的高端产品,以匹配合肥高端人群的需求。于是,在第二个项目政务壹号上,便有了融创+信达的合作开发。

最了解合肥的信达和最了解产品的融创,能碰撞出怎样的火花呢?
融创信达·政务壹号营销负责人王丹介绍说:“在合肥这块地,我们和信达做了很多交流沟通。后来发现双方的目标都是一致的,对这块地也有着相同的判断和预期,惺惺相惜之下生出合作的念头,最终走向了携手合作。”

在政务壹号这个项目的合作开发中,融创有着打造高端精品的成熟流程和思路,信达则有着在本土28年的开发经验和对本地人居喜好的研究判断,相信一定会带来不一样的产品。
王丹也说:“融创+信达,互相取长补短,在政务壹号这个项目上,我们要的效果是1+1大于2。”
结语:据说在项目推进中,融创和信达在产品打造理念上有很多碰撞和博弈,这对合肥的购房者来说一定是好事。不知道这个强强联手的国际范产品能给合肥人民带来多大的惊喜,这需要市场去衡量了。
加小编纳兰兰微信:nalan730,咨询购房问题。