今天刚吃完晚饭,一师兄打电话来,让我给他算几栋房子的工程量,当时我就头大了,为什么呢?因为前段时间给一老表算量,花了半个月晚上,每晚都建模到十一二点。就差一点点就完工了。但因为用的非正版加密锁,那天电脑不小心连下网,加密锁被官方锁了,辛苦半月的成果直接作废。有些话不吐不快。

一:正版加密锁23000元,19年后改年费制,每年年费大约一个W,以前的软件如果不按照年费制租赁,将无法打开新版本的文件。这对于我们这些不是专业算量计价的人员来说,这真的有点不友善,让人高不可攀。这既是核心技术。反过来说是不是垄断??
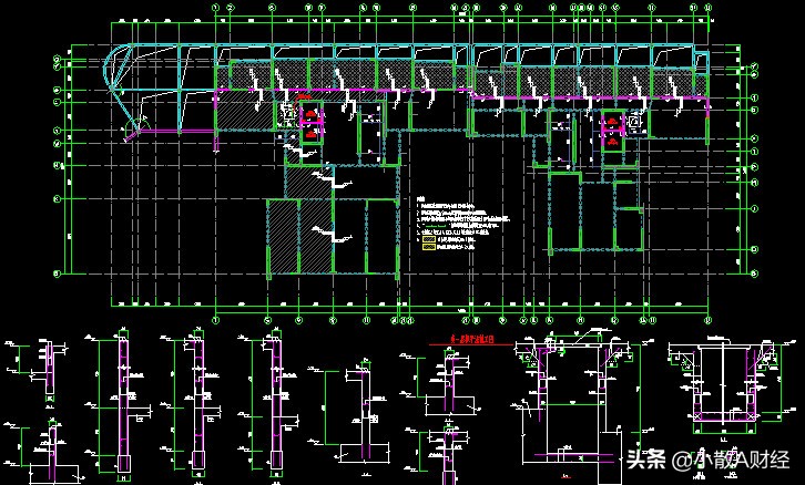
二:软件实操作方面还有很多得改进的地方,如地下室多标高,高低层在CAD图纸中是一个层高标高时,那建模时真的是非常废脑细胞的。一不小心就容易建错。如下图。


特别是像下图这种的,CAD图纸设计师图方便,同一层东单元是梁标注,西单元是板标注

我不知道是不是有快捷办法能从这单元复制到那单元构件的办法。还是只能一条一条在画过去。
三:这也是最重要的,我验证了N遍,广联达图形算量有些许的误差,不是多0.0几就是少0.0几,减扣关系有问题,问了几个预算大师,模板减扣规则无需更改,也在服务新干线上反应这方面的问题,也没有得到满意的答案。一个构件差一点点,一栋房的有多少构件组成,至最后得到的平方量也就不知道差多少了。

