风格:现代简约小区:广电兰亭都荟
业主是幸福的一家三口,女主人学过设计,同时也是一个实用至上的人,喜欢黑白色调,因此将设计定位为黑白灰的现代简约风格,去除了一切繁杂的设计元素,实用即是美。业主要求房子的收纳性能高,最终决定在尽量多做柜子的情况下让家里不会显得很拥挤。
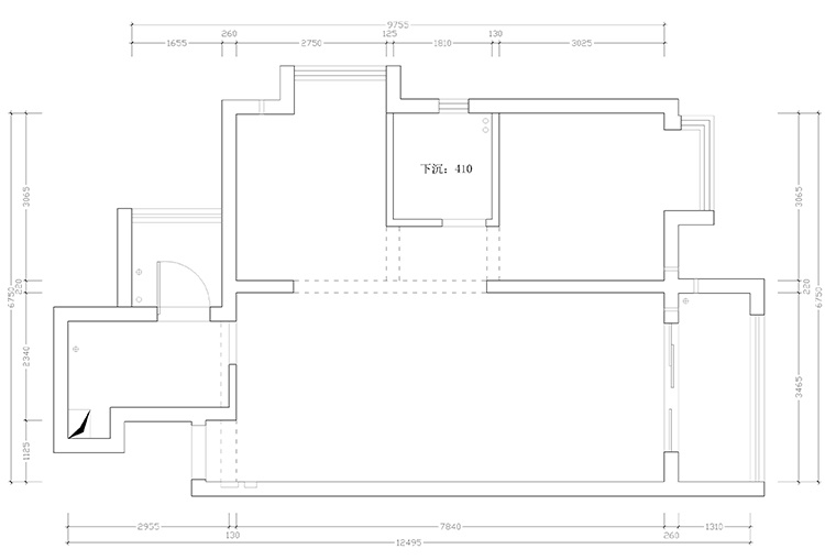
原始户型图

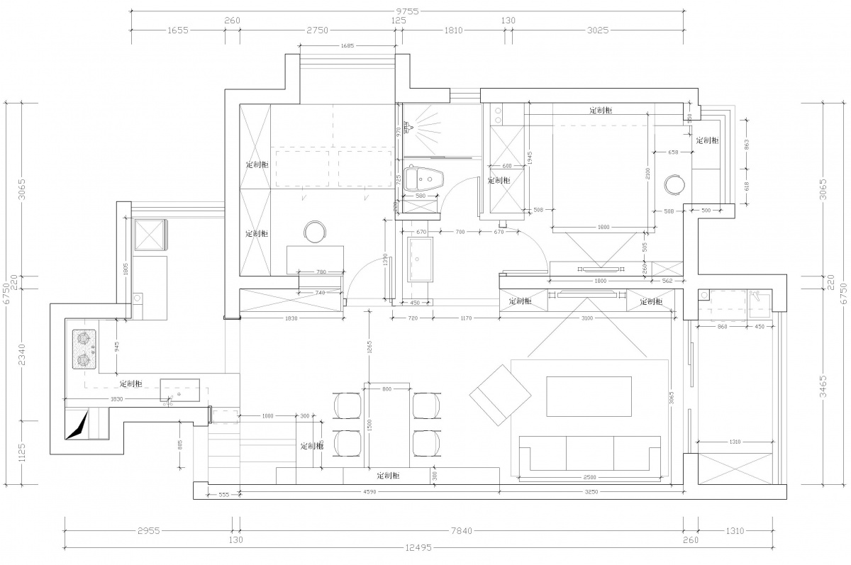
平面方案布置图

客厅









餐边柜、电视柜和鞋柜酒柜,不仅极大的增加了客厅的储纳空间,而且很好的营造出客餐厅的区域感,使单调的客厅马上层次丰富起来,而且非常美观漂亮,丰富的层次使空间感更强,客厅看起来更大了。

原阳台的移门拆除,换上能全部打开的折叠门,让空间更加通透。无主灯设计显得客厅更加简洁明快。

配色方面大面积的黑白灰为主体,配以高纯度的挂画和地毯,给人清新时尚之感。亮黄色用的恰到好处,实属点睛之笔,整个屋子瞬间明亮生动起来。

餐厅



玄关处定制的黑色方钢和时尚的餐厅灯相呼应,有极强的设计感。灯光的设计使这一方小天地更加温馨,简约而不失气质。艺术插画更是一枝独秀。

主卧



卧室里面也很大的利用了墙面做储物柜,让家里整洁起来。主色调是白色和地板的原木色,干净大气,在这里可以去除一切纷扰和嘈杂,让身心得到放松。

次卧

给人的第一感觉是这房子收纳能力简直了,这么多的柜子非但没有给人拥挤的感觉,而是使得空间被最大化利用,显得宽敞明亮。

卫生间

干湿分区,可以保持空间的清爽干净。洗手池下面设计的也是让人眼前一亮。

金螳螂家装修,
驻足细节,
感受生活的温度。