居住者的生活是多样性的,相同的材质也可以搭配出千百种不同的结果,设计并没有固定的答案;以人为本,深度解读居住者自己的想法,经过设计师的润色后,在空间内用最合适的设计手法表达出来,或许才是设计的本质。

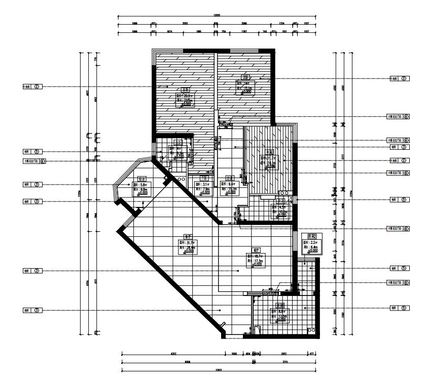
平面布局 这是一套145㎡的住宅,客餐厅面积开阔,采光良好,但为异形户型。
业主为细节控、爱干净,喜欢超大的空间感,所以在房屋整体规划时,卢丹设计师多采用简洁自然有质感的材质、通透布局、细节刻画,来呈现空间最佳的状态。

客餐厅 全开放的客餐厅布局极大地延伸了空间的视线与纵深感,调动了客餐厅与西厨的互动与联系,将与家人生活的点滴散落于空间。

八米长的电视背景柜,满足了业主收纳、展示及电视背景墙的功能。白色大理石与胡桃色搭配,或许不属于一眼惊艳,却足够高级耐看,能抵挡住时间对审美造成的变化,永不过时。

主卧 原始主卧的面积很大,设计师合理利用空间规划休息区+衣帽间+主卫的套间系统,提升居住舒适度。

次卧 配色上,用奶咖的暖搭配深色,点蓝色软装,让空间既拥有自然气息也成全时尚感。

书房 是业主平时办公的地方。如果有亲友来访,拉上窗帘,沙发床放下就可以变成私密的卧室,而且一整面柜体,可以归置超多的衣物书籍等。


主卫 面积很大,功能上规划了台盆区+马桶区+淋浴区,并做了干湿分离,实用度、使用舒适度都很高。

借用过道的空间,实现干湿分离。双台盆,方便实用,台上盆,也为干区颜值加分。洗衣机与烘衣机放置了过道,并将洗衣机旁的柜子用作了家政柜,很好的做了储物分区。

关于设计师——卢丹
从业时间:13年
设计总监、墅装高级专家
所获奖项: 中国建筑装饰协会高级室内设计师
2015年新锐设计师奖
2016年紫金奖文化创意设计大赛建筑环境类优秀奖
2017年紫金奖文化创意设计大赛建筑环境类银奖
2018年CIDA 中国室内设计大奖优秀奖
2018年作品刊登《瑞家家居设计》、《ELLE DECOR(US)》
2019年CIDA 中国室内设计学会等级奖
2020年ID星级设计榜 一级设计师
代表作品: 北京新天地、泰禾西府大院、龙湖西宸原著、澜馨墅、乐澜宝邸、鲁能格拉斯小镇、燕西华府、东恒时代、东方*阳城太**、世华水岸、铁建山语城、铁建国际城、鲁能七号院、亿城西山华府、大宁山庄、东恒时代、龙湖香堤漫步、丽水莲花