销量增幅百分之150 性能超越同级同行 深井潜水泵销售
深井潜水泵是电机与水泵直联一体潜入水中工作的提水机具。深井潜水泵作为生产提水的利器相比普通潜水泵适用范围更广,可在农田灌溉及高原山区的人畜用水,亦可供城市、工厂、铁路、矿山、工地供排水使用。

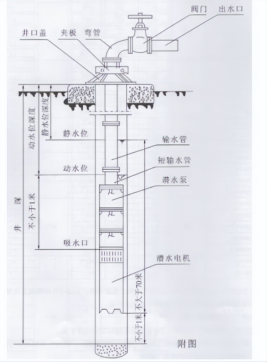
深井潜水泵具有结构简单,机组效率高,噪音小,运行可靠,安装维修方便的优点。其内部由潜水三相异步电动机和水泵两大部分组成,配套设备有电缆、输水管、控制开关。其材质有不锈钢,铸铁,铸铜,锡青铜等,需根据介质的不同使用合适的材质。

深井潜水泵为单吸多级立式离心泵;潜水电机为充油式、充水湿式、立式井用潜水异步电动机。电机与水泵通过筒式联轴器直联。
在使用前吸入管和泵内须充满液体。定期检查潜水电缆有无开裂、擦伤等现象,如有损坏应及时调换,以防漏电。