
hello,大家好

我是化老师,
又见面了,
欢迎来到化老师案例解析第二十二期
------------------------------------------------------------------
设计机构:JORYA玖雅
设计师:宏南
设计面积:109㎡
设计风格:美式
房屋位置:金汉绿港
装修花费:13w(轻工辅料+水电)
------------------------------------------------------------------

前几天微信上一位好久没有联系的小学同学,微信忽然发来一张开发商给的平面图,问我“听说你是搞室内设计的,帮我看看我家怎么弄?”
我就给他解释到,“做格局改造,首先要上门测量,并详细了解屋主的生活习惯(这一点很重要,有些用心的客户会给到一份好几页的需求清单,详细规划日后的生活)。然后在 CAD 软件上放出一张精确到毫米的平面尺寸图,还要确定所有原始设备(上下水、电箱、暖气等)的位置。当然这只是漫长思考工作的开端。格局改造差不多需要思考三四天以上的时间。”
如果我只是看了平面图,琢磨了一会就告诉他,你应该怎样布置,那肯定是不负责任的表现。
玖雅设计师宏南老师说过,“关于布局不像是方程式有唯一标准答案,推敲的过程中,总觉得有更好的方案在等着我。无限接近却始终难以企及,好的设计师会情不自禁的在这个无穷函数上走的更远一些。”
一个家的格局改造更是可简可繁。复杂起来,远超过我们的想象。它的重要性也不可忽视,会影响我们日后的生活方式,甚至会影响人与人之间的关系。
开始进入正题
本期讲到的房屋主人,是一对打算结婚的情侣,她们的生活习惯有点特殊,后面我们会提到。155 平米的三居室两个人住,需要改为两居室和一个小书房。
今天这套案例,我们就重点分享一下设计师的户型改造过程。
原始户型图如下:

设计师根据夫妻两个人的情况,对户型做了整体的分析

主卧室放一张床就满了,没有衣柜的位置。
床的两边只有 70cm 左右,两个人会都不方便。
第一个思路
主卧面积太小,
那么尝试把次卧和衣帽间合并,改造成一间宽敞的主卧。

顺这个思路,
设计师逐步推演出了看起来严谨无误的平面布局:

等等 ...
设计师觉得一定还有一个更好的方案在那里等着他 ...
可不可逆向思维,
主卧还回到原来的位置??
毕竟不是朝南的主卧不是一个好房间
于是 ...
转了一圈又回到原点,
而设计师在第二个思路上走了更远的路 ......
第二个思路
主卧面积太小,
可不可以尝试把卫生间平移?

卫生间移动到次卧留一个朝南的宽敞的卧室

一步步的推导、细化过程中,发现两个问题
首先,原来主卧卫生间移走 ,会留下管道,怎么处理?

宏南设计师也是第一次遇到这样的问题,
与工长详细沟通后探讨出了解决方案,
改管绕着走,并将管道包裹上了隔音棉隔音。

其次,次卧凭空加一个卫生间,可行?
宏南老师之前遇到过这样的案例
借用隔壁卫生间的下水,就可以造出一个卫生间来

新建的卫生间的布局如下,
与次卫共用一个下水,这样安排距离最短,成本最低。

满足了这两个条件,
就得到了我们第二版布局方案啦。

业主选择了第二套方案,
不仅因为收纳空间更充足,有独立的衣帽间。
更重要的是符合他们的生活习惯:
女主人是空姐,经常半夜出动。
而男主人是创业青年,经常加班到深夜。
他们时常会出现这种情况,
男主人加班至深夜回到家里,终于可以闭上眼睛享受美好的夜晚。
但女朋友需要赶夜间的航班,
在收拾化妆的过程中时常会把男朋友吵醒。
两个人工作时间的不契合,造成了很多生活上的困扰。而这个方案
妥善解决行动路径的合理划分。

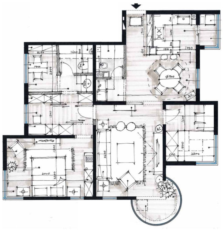
完整的平面布局图

再来简单介绍一下房间其他几处的设计
一、门厅、厨房、餐厅的布局

用圆桌代替了常见的长桌子,圆桌更适合打造动线。
也有团团圆圆的气氛。
二、次卧的纠结

各种尝试之后觉得榻榻米更合理:

设计师和业主的初衷都是希望有一张正儿八经的床,
觉得如果老人来了睡觉会比较舒服。
但尝试了各种可能性之后,发现还是榻榻米最合适。
所有的布局都没有那么的完美,就像生活一样
或多或少都会有点遗憾和妥协。
真实的家也如此。
案例改造介绍完毕
思考的过程也有很多忽然冒出来的想法,然后在一步步*翻推**。
不断的自我突破又自我否定。
附上宏南老师的手稿图:




设计方案效果图:








实景照片:















南老师后期回访过两次业主,业主回复说都很满意。
设计背后包含了设计师很大的心力——纠结与彷徨、失落和希望。
这也是我非常喜欢的一套案例,格局改造非常的巧妙。
为设计师能深入的思考,大胆又稳妥的去尝试,严谨又有序的落地点赞!
本期案例介绍完毕,感谢观看~
- End -
~版权归作者JORYA玖雅所有
~如需转载本文请联系“JORYA玖雅”账号
玖雅在传递"一家一世界"的生活理念
家既是物质世界的延伸,也是主人内心世界的显现
家的背后埋藏着主人的生活阅历、环境、文化背景以及世界观
每个家都各有不同
每个家都自成世界