今天这篇文章非常有针对性,这段时间同时有好几个朋友向“武汉阿松”咨询一个购房问题,需求还出奇的一致:
武汉三环内,单价2万以内,户型100平左右,不想太大,也不太想要两房的户型。
为此,“武汉阿松”就为他们找出了满足上述条件的一些楼盘,但每个楼盘或多或少也都有一些缺点,于是专门开一篇文章,将这些楼盘也分享出来,有相似需求的人可以参考一下。
下图为满足条件的楼盘表:

针对每个楼盘的基本情况,本文会做一个简单的介绍和点评,关于每个楼盘的详细测评,大家可关注【阿松评楼】回复楼盘名进行查看:
①星河2049
(江岸区-后湖)
建面约99平尾盘在售
楼盘位置: 星河2049位于江岸区温馨路与景秀街交汇处,属于东后湖板块,区域内这些年发展比较成熟了。
东、西后湖板块划分图:

项目微观区位:
北边是规划道路、监察委(在建);
西边是温馨路(在建)、后湖公园(局部完工);
南边是景秀街、住宅小区 ;
东边是安居路、住宅小区和规划教育用地。

星河2049 湖北省武汉市江岸区温馨路与幸福街交汇处东北侧
楼盘详情及最新动态:
星河2049共包含四个地块,目前在售的地块K1即项目一期,总占地面积约7万方,建面约36万方,共约2047套房源,容积率约3.58,车位配比约1:1.3。项目包含11栋住宅,目前已全部推出,仅剩3、8、9号楼少量建面约99平带装修房源在售。

3号楼为47层,两个单元,2梯4户;8号楼为47层,两个单元,3梯4户;9号楼为33层,两个单元,2梯4户。
在售楼栋户型分布:

B2户型建面约99㎡户型,三房两厅一卫:
该户型位于3、8、9号楼中间户,全朝南设计,北部房间没有连廊。这个户型客厅、餐厅采光非常一般,尤其是进门处餐厅板块,估计要全年开灯;另一个次卧窗户也比较小,采光也一般。整个户型把比较好的位置给了两个卧室,然而厨房紧临带阳台主卧,做饭等会有一定噪音影响。这个户型确实一般,也不符合当下主流户型,不过对刚需来说,同是后湖板块,差价约2000+元/平,也是划算的。

项目优势:
1、星河2049位于东后湖近三环板块,周边相对比较成熟,人气也比较足,是一个典型的生活片区。
2、项目周边生活配套相对充足,没有紧邻主干道、靠近后湖公园,生活环境相对较好。
3、项目一期是东后湖板块的价格洼地,也是年底交房的准现房。
项目劣势:
1、现阶段没有紧邻地铁,交通出行不是特别便捷。
2、未临主干道,大型商圈都需要到后湖大道主干道上才行。
3、一期小户型结构一般,且尾盘在售,选择不多。
②幸福时代大家
(江岸区-后湖)
约100万方大盘
楼盘位置: 江岸区后湖大道与百步亭路交汇处(汉铁高级中学东侧)

微观区位
南侧为规划路、K3地块、后湖大道、福星惠誉榜YOUNG小区、华林广场;
北侧为幸福街、规划医疗用地、水渠、东勤佳苑;
西侧为规划中小学教育用地、百步亭路、文卉苑、汉铁高中;
东侧为规划道路、项目K1地块、现状新荣工业园(规划为商业用地)。

幸福时代大家 湖北省武汉市江岸区后湖大道与百步亭路交汇处
楼盘详情及最新动态:
幸福时代大家总体量约100万方,一到四期已经交房,幸福时代大家是项目的五期。
幸福时代大家总占地面积约14.58万方,由K1、K2、K3、K4四个地块组成,总建筑面积约50万方,由20多栋高层、一所小学、两所品牌幼儿园、一所卫生服务中心及商业街组成。已推出K4地块、K2地块,还有9号楼少量房源在售,后期还有K1、K3两个住宅地块。

幸福时代大家K2地块占地面积约3.1万方,住宅占地面积约2.8万方,总建筑面积约16.2万方,计容建筑面积约11.5万方,容积率约3.66,绿地率约30%,共计约906套房源,共计约1149个住宅机动车位,车位配比约1:1.2,人车分流设计。

9号楼为两个单元、34层、2梯4户。
项目9号楼户型分布图:

建面约111㎡ 三房两厅两卫
中间户,户型方正,三开间朝南,北面对连廊,依靠连廊可实现通透效果,不过北侧房私密性和采光一般。客餐厅一体化,还带有南向观景阳台,视野和采光较好。动静分区,私密性较好。北向书房后期还可改为儿童房,增强其功能性。该户型也是当下市面上比较受欢迎的主流三房户型。

价格详情:
幸福时代大家9号楼备案价约19000元/平,基本没有折扣。其中9号楼总体是中间户约111㎡户型>边户约127㎡户型>两个单元连接处边户116㎡户型,差价在50-700元/平不等。
目前剩下来的房源约111平是单价相对较高的。
项目优势:
1、幸福时代大家位于汉口三环内主城区,靠近后湖大道主干道,2.5环的位置,周边自驾条件不错,步行也能到地铁。
2、项目自带规划幼儿园、中小学教育用地(如果未来引入类似育才系且跟项目对口,那对项目价值会有很大提高)、规划商业街,周边配套也还OK。
3、项目本次虽然价格大幅上涨,但在后湖来说还是价格较低的新房,性价比也还是有的。
项目劣势:
1、周边有一些未*迁拆**的工业区,且其他地块内还有较多私房未*迁拆**,面貌一般。
2、整个地段在后湖内横向对比略一般(比如对面的摩尔城基本处于垮了的状态)。
③万科华生公园大道
(硚口区-古田)
首付45万起,小户型为主
楼盘位置: 万科华生公园大道位于硚口区古田一路与成华路(在建中)交汇处
项目微观区位:
北边是绿化带用地、三环线;
东边是丰硕西路(规划)、东风村K2地块,规划教育用地;
南边是城华路、绿城地块、规划教育用地(引入十一崇仁九年一贯制学校)、蓝光林肯公园、园博大道;
西边是古田一路(在建)、竹叶海公园(扩建中,部分完工)。

万科华生·公园大道营销中心 湖北省武汉市硚口区园博大道与丰硕路交叉口西360米
楼盘详情及最新动态:
万科华生公园大道占地面积约7.65万方,总建筑面积约34.7万方,计容建筑面积约26.3万方,其中住宅计容建筑面积约25.4万方。共规划有11栋高层、超高层住宅。目前已经推出了1-4及6号楼。

6号楼为1个单元,2梯4户,34层,共包含建面约92-102平房源。

B1户型建面约102平三房两厅两卫
该户型位于6号楼边户,南北通透设计,两开间朝南且三面采光;主卧带独立卫浴,功能性和私密性都很不错。总的看来,该户型是目前主城区非常少见的小面积段边户,同等面积在别的项目基本都是中间户,很少有南北通透的。

价格详情:
万科华生公园大道6号楼带装修备案价约18500元/平,但实际销售有少量折扣。
从价格表来看,6号楼就两个户型,且户型都不大,除了1号房约102平边户价格较高之外,另外三个户型单价基本一致。
项目优势:
1、万科华生公园大道位于硚口区古田长丰板块,紧邻三环,位于三环内,环线位置还可以。
2、项目周边路网完善,紧邻三环线,还有多条主干道、快速路,自驾还可以。
3、项目自带商业和幼儿园规划,紧邻规划的十一崇仁九年制学校。
4、万科地产开发,万科物业。
5、项目临近绿化用地和建设中的竹叶海公园,大部分环境还可以。
6、项目主推户型都不大,首付门槛较低。
项目劣势:
1、区域内现阶段城市面貌相对汉口三环内其他区域较弱。
2、项目公共交通尴尬,没有地铁和公交直达。
3、项目北边紧挨着三环,要注意北边部分楼栋噪音影响。
④绿城华生桂语朝阳
(硚口区-古田)
三环内低价盘
楼盘位置: 绿城华生·桂语朝阳K3地块位于硚口区园博大道与古田一路(在建中)交汇处,属于汉口三环内核心地段,也位于硚口古田板块中约百万方东风村旧改的范围之内。

绿城华生桂语朝阳K3地块微观区位:
北边是成华路(部分建成、部分在建)、在售住宅;
东边是丰硕西路(规划)、规划教育用地(拟定引入十一崇仁优质教育资源)、蓝光林肯公园;
南边是园博大道、铁路、项目K4、K5地块;
西边是古田一路(在建)、竹叶海公园(在建中,部分完工)。

绿城华生·桂语朝阳 湖北省武汉市硚口区园博大道古田一路公交站台北110米
楼盘详情及最新动态:
绿城华生桂语朝阳规划总建面约60万方大盘,率先推出一期K3地块,该地块规划总建筑面积约33.8万方,容积率约3.55,已推出1、2、3号楼,目前主推1号楼建面约123平C户型。

1号楼为38层的超高层,两个单元,三梯四户,包含建面约108-123平三房,约108平户型基本售罄,剩下的都是约123平的大户型。
户型分布示意图:

C户型建面约123平,三房两厅两卫:
该户型分布于1号楼的两个单元拼接处,属于南北通透的边套,两开间朝南,南向带有开间约7米的阳台,主卧带有独立卫生间。

价格详情:
绿城华生桂语朝阳1号楼带装修备案均价约19000元/平,但折扣力度很大,折后约16500元/平起,是目前汉口三环内的最低价。
项目优势:
1、绿城开发,绿城物业。
2、位于三环内,环线位置较好。
3、紧邻规划的十一崇仁九年制学校。
4、价格低,是目前汉口三环内最低价,折扣力度较大。
项目劣势:
1、跟汉口三环内其他区域相比,发展相对缓慢,周边面貌目前也一般(有一些工业园)。
2、主推楼栋南侧临铁路,不能忽视噪音,也是价格力度大的原因之一。
3、公共交通较薄弱,距离地铁远。
⑤龙湖东湖高新春江郦城
(硚口区-古田)
低价毛坯房,现房
楼盘位置: 龙湖东湖高新春江郦城位于硚口区古田二路与长丰大道交汇处,项目整体南临长丰大道、东至古田二路、西至丰硕路。

微观区位:
龙湖 东湖高新·春江郦城当前主推的K5地块周边情况如下:
西侧为规划路,项目K6地块;
东侧为规划路,项目K4地块;
北侧为产业园;
南侧为长丰大道、长丰大道高架、产业园。

龙湖东湖高新·春江郦城 湖北省武汉市硚口区长丰大道107号
楼盘详情及最新动态:
龙湖东湖高新·春江郦城总建面约70万方,由K3、K4、K5、K6、K7共五个地块组成,其中K4、K5、K6地块为住宅地块,K3、K7地块为商业地块。 项目K6地块原计划不对外销售,目前有少量约116平房源可购买。

建面约116平户型,三房两厅两卫
该户型位于中间户,三开间朝南,户型方正,动静分区,主卧带独立卫生间和衣帽间,全明无暗房,南向大阳台和飘窗有一定优化面积,北侧对着连廊,有一定通透效果,不过对着连廊的房采光和私密性一般,但该户型主要生活空间集中在南侧,因此影响不大。

价格详情:
龙湖东湖高新春江郦城目前主推的房源是原计划不对外出售的K6地块,现在有少量房源拿出来卖,毛坯备案价约16900元/平,价格很低,折后约16500元/平,而且是准现房。
项目优势:
1、项目地处汉口2.5环,环线位置还可以。
2、项目自驾出行比较方便,周边多条主干道,从长丰大道高架可以快速驶入二环线。
3、项目自带规划龙湖天街,步行距离内有小学。
4、龙湖打造,是现房,品质实景呈现。
5、项目毛坯房均价16900元/平,折后约16500元/平,价格低。
项目劣势:
1、周边有一些工业园、区域,面貌一般。
2、距离地铁较远。
⑥武地汉樾台
(硚口区-古田)
价格不高,品质规划较好
楼盘位置: 武地汉樾台位于硚口区长安路上,项目从环线位置来讲位于二环至三环之间,更靠近二环,距离二环约2公里,距离解放大道约1公里,距离西三环约4.6公里,楼市片区属于古田片区,在古田片区中位于古田二路和古田四路之间。

项目微观区位:
北侧为公园绿化用地、教育用地、住宅社区;
南侧为长安路、湖北警官学院北校区;
西侧为古田三路(规划)、福利用地;
东侧为规划道路、项目K1地块、医疗用地、在建住宅用地、硚口公安局、硚口法院。

武汉城建·汉樾台 湖北省武汉市硚口区古田四路长安路5号
楼盘详情及最新动态:
武地汉樾台为武汉地产集团竞得的硚口区P(2016)063号地块中的K2地块,该地块东侧为待开发的K1地块。
武地·汉樾台规划用地面积约3.3万方,总建筑面积约23.5万方,其中计容面积约16.8万方,规划总户数约1368户,容积率约5.07,建筑密度约23.62%,规划车位约1664个,车位配比约1:1.2。

3号楼为34层两个单元两梯四户结构;4号楼为两个单元两梯四户结构,东单元33层、西单元28层。
户型分布平面示意图:

B户型 建面约105平 三房两厅一卫
位于3、4号楼东单元中间套,该户型整体结构与上面的约86㎡户型相似,但是面积更大,因此是三房结构,功能性更强,面积更大、居住舒适度更高,不过因为只有一个卫生间,因此功能性还是略显不足。这个户型实际上可以看作是大两房,小三房,因为书房是在主卧位置用非承重墙隔出来的。

价格详情:
武地汉樾台毛坯备案均价均为约17200元/平,基本没有什么折扣。
项目优势:
1、单价在区域内和汉口三环内都属于较低档。
2、自驾出行比较便利,可以快速上二环,周边配套资源也比较丰富。
3、品质规划从目前阶段来看很不错。
项目劣势:
1、目前周边部分区域城市界面一般,发展潜力也一般。
2、到地铁距离不适合步行,周边有学校但目前看学校教育质量一般。
⑦保利庭瑞阅江台
(汉阳区-汉阳核心)
二环旁,地块体量很小
楼盘位置: 保利庭瑞阅江台位于汉阳区琴台大道与玉龙路交汇处,总体量约101万方,整体位于武汉二环外约1公里处。

其中目前主推的K9地块距离二环线约1.2公里,距离汉江约900米。

K9地块微观区位:
北边是琴台大道、K5地块、绿化用地及规划的汉江公园;
南边是鑫瑞小城故事小区、规划小学用地、K10地块;
东边是燎原路、规划公共设施用地、K11地块、玉龙路;
西边是蟠龙路、K8地块等。

保利庭瑞·阅江台 湖北省武汉市汉阳区玫瑰街与玉龙路交叉口西北200米
楼盘详情及最新动态:
保利庭瑞阅江台项目规划总体量约101万方,共由14大地块构成,其中K7、K8、K9、K10、K11、K12、K13、K14地块大部分房源均已推出。目前主推K9地块,其他地块也还有房源在售。
K9地块总用地面积约1.2万方,总建面约6.5万方,计容建面约4.8万方,住宅建面约4.6万方,容积率7.02,绿地率30%,居住总户数400户,户均面积约115平米,机动车停车位(全地下)约475个,车位配比约1:1.2。
K9地块包括一栋3层商业配套&物业用房,以及一栋50-57层的超高层住宅。

K9地块2号楼共两个单元,其中1单元3梯4户,57层,2单元3梯4户,50层,全部是超高层住宅。共包含建面约97-142平房源。

目前该地块就主推建面约97平的房源,大户型基本卖不动。
建面约97平户型 三房两厅一卫
该户型位于K9地块2号楼中间户,全朝南设计,南向有阳台,户型设计一般,不通透,且次卧和厨房的采光面很小。

价格详情:
保利庭瑞阅江台本次拿证的K9地块2号楼住宅,带装修备案均价约20850元/平,含3000元/平装修。折扣不大。
项目优势:
1、保利庭瑞阅江台位于大汉阳二环外约1公里,靠近汉江,环线位置不错,距离汉口很近。
2、项目周边路网完善,距离二环线不远,上下二环线便利。
3、项目周边可以辐射多个商圈辐射,周边也有可享受的现成配套。
4、项目为武汉保利开发,开发商品牌和实力还可以。
5、K9地块小户型价格有一定性价比。
项目劣势:
1、区域价值认可度一般,距离汉阳核心钟家村较远,周边城市面貌较为老旧。
2、K9地块距离地铁站略有点远。
3、K9地块体量不大,且住宅是超高层,舒适度和小区居住氛围预计较为一般。
⑧保利香颂
(汉阳区-汉阳核心)
楼盘位置: 保利香颂位于汉阳区龙阳大道与四新大道交汇处,属于汉阳核心升官渡片区。项目距离汉阳王家湾不到3公里,距离汉阳三环线约2公里,属于规划的2.5环以内。该区位属于汉阳核心片区。

项目区位示意图:

项目五期K10地块微观区位:
东北面为规划陶家岭小学、规划汉新大道(可能为杨泗港快速路延长线);
西南面为规划道路、绿化绿地、变电站、四新大道;
西北面为规划道路、大面积的规划绿化用地、仙女山路延长线(在建);
东南面为规划道路、项目前期住宅、规划商业、龙阳大道。

保利·香颂 湖北省武汉市汉阳区龙阳大道与四新大道交汇处
楼盘详情及最新动态:
保利香颂项目总建筑面积约127万方,项目包括K10-K17号共8个地块,其中住宅共分5期开发,一期K12地块、二期K11地块、三期K14地块均已售罄,四期高层也在基本售罄,目前主推五期K10地块住宅。

项目五期K10地块规划用地面积约4.6万方,总建筑面积约21.6万方,容积率3.51,规划总户数约1258户,机动车停车位约1615个,地上仅2个车位,车位配比约1:1.3。
保利香颂五期规划有8栋高层住宅,本次拿证加推的G25号楼是项目最后一栋住宅,至此该项目全部住宅均已取证推出。

G25号楼为两个单元,均是33层的高层住宅,两梯四户结构,分布户型为建面约93-124平带装修三房。

户型分布示意图:

D户型建面约118平,三房两厅两卫:
该户型分布于楼栋的单元拼接处,两开间朝南,南北通透结构,主卧带独立卫生间,整个户型室内面积利用率较高,不过狭长型户型,餐厅处的采光不是很好。

价格详情:
保利香颂本次拿证的G25号楼是五期最后一栋住宅,也是全盘最后一栋住宅,堪称收官之作。本次拿证的备案均价约18096元/平,含2500元/平装修,价格上涨了约454元/平!
项目优势:
1、汉阳三环内,靠近王家湾商圈,周边有比较成熟的商业,自身也规划大量商业体。
2、规划双地铁,交通出行还算便利,五期紧邻规划的陶家岭小学。
3、超大体量,法式风格,前期已经交付,品质基本符合其定位。
4、小户型门槛较低,93平中间楼层首付仅约52万左右。
项目劣势:
1、五期距离主干道略远,到3号线地铁站有些距离,且南北均有一定不利影响,位置不如前期地块。
2、附近有变电站、高压线走廊,且西边和南边为待建空地,面貌不是很好。
⑨恒韵府
(汉阳区-汉阳核心)
地段位置很好,户型开发商一般
楼盘位置: 恒韵府位于汉阳区江城大道与汉阳大道交汇处,大区位上属于汉阳二环内五里墩板块,武汉二环以内,属于汉阳核心地段。该项目距离内环约2.4公里,距离二环约500米。


恒韵府微观区位:
项目北面是铁路走廊,规划垃圾处理站(暂未启动建设)、琴台大道,东北边是月湖主题公园;
西面是区域内的住宅小区;
东面是江城大道、万科金域国际住宅和商业;
南面紧挨着汉阳大道、地铁站及五里墩小学等。

恒韵府 湖北省武汉市汉阳区江城大道与梅子山通道交叉口西南方向180米
楼盘详情及最新动态:
武汉誉天东方置地有限公司开发的A-1和A-2地块原案名为万象汇润府,现更名为恒韵府。其中A-1地块为商业综合体,A-2为住宅地块。A-2地块总建筑面积约26.8万方,包含11栋住宅,截止目前项目共开盘了3次,推出了7、8、9、10、11号楼,目前还有房源在售。后面还有1至6号楼没推出,还有大量房源。

恒韵府住宅占地面积约4.38万方,建筑面积约26.8万方,住宅部分绿地率约30%,容积率6.12,公摊约25%(公摊数据以最终测量为准),包含11栋34-54层的住宅,共2092套房源。
10、11号楼均为一个单元,54层,3梯4户设计,共包含约99-140平房源。采用的是传统的非连廊结构设计,这种设计相比连廊结构,中间户的采光就差一些。
户型分布图:

Q户型建面约99平 三房两厅一卫
该户型位于11号楼的中间户,全朝南设计,是本次开盘的最小户型,南向卧室带有飘窗,客厅南向阳台,有一定优化面积。但三个房间只做了一个卫生间,舒适性有所降低。

M户型建面约102平米 三房两厅一卫
该户型位于10号楼的中间户,全朝南设计,厨房、次卧采光都很一般,真的还是前几年的户型设计,三房依旧只做了一个卫生间,整体户型都做的一般般,没啥亮点。

价格详情:
恒韵府目前主推楼栋毛坯备案价格约20401元/平,较之前7号楼的价格上涨了约971元/平。项目第一次开盘是卖的装修房,带装修22000元/平,目前改毛坯后虽然涨价了,但依旧比首次开盘的价格低了1600元/平左右。
项目优势:
1、恒韵府位于汉阳二环内,地段在汉阳是非常好的。
2、项目为正地铁口,周边汉江大道、二环线、琴台大道、汉阳大道多条快速路和主干道,交通优势非常明显。
3、项目自带大体量商业规划,对面万科商业规划,规划的还不错。
4、单价在汉阳核心有一定优势。
项目劣势:
1、项目周边基本是老破小,没有产业,导致区域价值远低于汉口。
2、教育配套是短板,五里墩小学质量一般般。
3、项目户型设计比较一言难尽。
4、品牌是一大劣势,前期还遭遇停工风波,一直都卖的不好,购买风险是很大的。
⑩王家湾中央生活区
(汉阳区-汉阳核心)
位置不错,双地铁
楼盘位置: 王家湾中央生活区位于汉阳区汉阳大道与玉龙路交汇处,属于汉阳核心王家湾板块,距离二环线不到500米,且紧邻汉阳大道主干道,自驾出行极为便捷。

项目地处汉阳核心,是武汉非常成熟的居住板块之一,项目位置非常好,周边交通便利(快速路+双地铁)、依附王家湾核心商圈,南侧更有龙阳湖公园(在建),从地段、到生活配套再到居住环境,都比较优质。
项目微观区位:
北面是汉阳大道、玉龙路地铁站、玫瑰苑、德才中学;
南面是墨北西延线、规划公共设施用地、龙阳湖公园(在建);
西面是玉龙路、规划教育用地、中国铁建国际城;
东面是龙阳湖东路、武汉摩尔城、龙阳大道、王家湾地铁站。

王家湾中央生活区 湖北省武汉市汉阳区汉阳大道与龙阳湖东路交叉口西南角
楼盘详情及最新动态:
王家湾中央生活区三期住宅部分占地面积约1.6万方,总建面约7.2万方,计容建面约5.1万方,容积率约3.16,共规划有约389户。三期共有3栋高层住宅,这3栋楼也是全盘最后3栋住宅。三期首开的是28号楼。

三期28号楼,为31层,1个单元,2梯4户结构,层高约3米,分布户型为建面约110-130平户型。

建面约110平,三房两厅两卫:
该户型位于28号楼中间户,户型方正,三开间朝南,北面对连廊,客餐厅一体化,动静分区较好。南向观景大阳台连接次卧,采光面和视野都非常棒,再加上卧室的飘窗,可拓展面积较多。主卧南北贯通,通透性好,居住舒适度也更高。该户型是当下市面主流户型,功能性和空间感兼顾。

价格详情:
王家湾中央生活区毛坯备案价格约19850元/平,有一定性价比。
项目优势:
1、王家湾中央生活区前期已交付,品质实景可见。
2、项目紧邻二环王家湾商圈,地段优势明显。
3、毛坯销售,性价比较高。
4、双地铁且小区自带大体量商业配套
项目劣势:
1、周边环境一般,北面都是老社区.
2、离锅顶山1.7公里,基本可以看到,也有一定影响。
11、海格公馆
(汉阳区-四新)
12号线地铁口,户型不错
楼盘位置: 海格公馆位于汉阳区四新南路与芳草路交汇处,属于近2.5环楼盘,项目周边城市面貌较好,配套成熟生态宜居。
海格公馆住宅地块微观区位:
北边是凤凰湖环路、凤凰湖公园、在建居住小区;
东边是规划道路、规划商业、在建的体育公园、成熟居住小区;
南边是四新南路、在建的地铁12号线四新中路站、成熟小区、英才小学和晴川初中;
西边是规划道路、在建住宅地块、规划小学、芳草路。

海格公馆 湖北省武汉市汉阳区四新南路与墨子路交叉口
楼盘详情及最新动态:
海格公馆项目规划为总建筑面积约53.9万方的城市综合体,由四个地块组成,除了上面介绍的期待值爆棚的体育公园之外,还规划约7万方的商业、以及约22.6万方的住宅。
项目一期的1-7号楼均已推出,二期的11-14号楼均已拿证,目前主推11号楼,整体节奏较快。

目前主推的11号楼规划为44层的超高层住宅,一个单元,三梯四户结构,分布户型为建面约106-142平三房四房。

A户型建面约106平,三房两厅两卫:
该户型位于楼栋的中间套位置,三开间朝南,南向带有超大阳台,连接客厅和卧室。户型动静分区,主卧南北贯通且带独立卫浴,舒适度不错。该户型面积不大,上车门槛较低,是刚需购房者在四新低总价买三房的好选择。

价格详情:
该项目毛坯备案价约18500元/平,目前折扣逐步收回,折后约18300元/平,其实价格已经不低了,但依旧是三环内的热门盘。
项目优势:
1、海格公馆位于武汉三环内,四新比较核心的位置,有比较完善的规划,区域面貌也还不错。
2、自带综合体育馆、商业等规划,自身配套还不错,周边也有成熟社区,距离学校、公园和医院都不远。
3、项目紧邻规划的地铁12号线四新中路站,是地铁房,自驾也比较便利。
4、项目又是毛坯房,户型设计的非常不错,折后价格也算是武汉三环内比较低的。
项目劣势:
1、靠近三环了,绝对环线位置一般,和区域内同环线位置的盘相比,距离长江和武昌也较远。
2、周边地铁建成需要较长时间,有可能交房后门口规划的地铁站还没通车。
3、东侧紧邻加油站。
12中国铁建御湖
(汉阳区-四新)
位置不错,户型较好
项目位置: 中国铁建御湖位于汉阳区四新北路与四新中路交汇处,位于武汉二环与三环之间,距离二环线约2.8公里,距离三环线约2.2公里,紧挨武汉新二环线,在整个武汉都属于环线位置很不错的项目。

该项目大区位上属于汉阳四新片区,又位于四新北边的位置,是区域内距离汉阳核心区域及汉口相对更近的板块。

项目微观区位:
西侧为芳草东路、纽宾凯汉CITY国际社区;
东面为四新中路、绿化用地(水渠)、武汉三中;
南面为四新北路、招商樾望、凤凰湖、方岛;
北面规划教育用地、变电站、杨泗港快速通道、规划绿化用地、墨水湖。

中国铁建·御湖 湖北省武汉市汉阳区四新北路与凤仪路交叉路口往西北约50米
项目详情及最新动态:
中国铁建御湖位于汉阳区四新北路与四新中路交汇处,占地面积约5.2万方,总建面约22.6万方,计容建面约17万方,共分为两期开发,一期全部为住宅,二期是规划的商业,截止目前共开盘了5次,1、2、3、4、5、6号楼住宅全部已开盘。

项目整体绿地率约35%,容积率约3.6。其中一期占地面积约3.7万方,建筑面积约12.5万方,容积率约2.44。
6号楼均为33层、3梯5户设计,一个单元,共包含建面约105平和117平两个户型。

B户型建面约105平 三房两厅两卫
该户型位于6号楼连廊中间户,北边对连廊私密性不好,局部南北通透,三开间朝南,主卧做了独立卫浴和衣帽间的套间设计,户型方正且动静分区较好;每个房间都有飘窗,有较多可优化面积。

价格详情:
中国铁建御湖最后一栋住宅带装修备案均价约20451元/平,含3000元/平装修,与上期5号楼备案价格持平,但比前期1、2号楼备案价上涨约831元/平。有少量折扣,折后约20000元/平。
项目优势:
1、中国铁建御湖位置在区域内有较大优势。紧挨着新二环,周边主干道较多,自驾便利。
2、项目北边将引进钟家村小学分校且由项目的开发商出资建设,紧邻武汉三中,教育资源占优。
3、周边有规划的地铁站,也有发展较为成熟的商业配套等。
4、户型设计还不错,项目规划较好。
项目劣势:
1、项目现阶段距离已开通的地铁站有点距离,出行主要依靠自驾,公共交通现阶段较弱。
2、北边紧挨着变电站,北面小学、杨泗港快速路都可能有噪音。
3、项目价格较高,没有限价红利,上车门槛不低。
13武汉国博新城
(汉阳区-四新)
价格较低,户型不大,紧邻三环
项目位置: 武汉国博新城位于四新南路与鄂渚路交汇处,项目位于三环内,属于汉阳四新板块,是武汉城市副中心之一。

D13地块微观区位:
北面是项目D10地块;
东面是项目D14地块、国博大道和地铁6、16号线;
南面是三环线、鹦鹉立交以及公共设施用地;
西面是项目D12地块。

武汉国博新城 湖北省武汉市汉阳区鄂渚路与秋礼街交叉口西北50米路北
项目详情及最新动态:
武汉国博新城项目规划总占地面积约6253亩,净用地面积约4100亩,规划总建筑面积约700万平方米,其中住宅包含A区、C区、D区三个部分。
目前主推D区D13地块。D13地块规划总建筑面积约23万方,容积率约2.45,共分为住宅与商业两部分开发,住宅由两栋55层的超高层、两栋45层的超高层和两栋32层的高层组成,规划住宅总户数约1222户,主推高层2、7号楼。

2、7号楼均是32层的高层住宅,三梯五户结构,分布户型为建面约86-128平带装修三房。

C4户型建面约102平 三房两厅一卫:
该户型分布于楼栋的连廊中间套位置,三开间朝南,北面对连廊,户型动静分区,两个卧室都带飘窗,属于舒适性三房设计。

C2户型建面约110平 三房两厅两卫:
该户型分布于连廊结构中间套位置,三开间朝南,北面对连廊,户型整体动静分区,明厨明卫。该户型面积适中,功能齐全,属于市场中比较受欢迎的户型之一。

价格详情:
D13地块带壮戏备案均价18401元/平,含3000元/平装修,此次价格较上期D14地块价格上涨1901元/平,不过实际有折扣, 折后约17500元/平。
项目优势:
1、位于汉阳三环内,主城区。
2、主干道、三环线,自驾便利,步行到地铁站。
3、价格不高,是三环内的低价盘。
4、南边距离经开核心商圈不远。
项目劣势:
1、在区域内位置一般,距离三环线近。
2、距离四新核心配套较远。
14禹洲新希望雍禧兰台
(经开区-经开核心)
单价地王,紧邻中小学
项目位置 : 禹洲新希望雍禧兰台位于经开区四新南路和新华园二路交汇处,地处三环内,是经开核心板块。

项目微观区位:
西侧为新华南路、地铁盛观尚城、三环线;
东侧为四新南路、海伦春天4期、洺悦芳华;
北侧为新华园路、绿化用地(三角湖公园);
南侧为新华园二路、在建小学、官士墩中学、新华工业园。

禹洲新希望·雍禧兰台 湖北省武汉市蔡甸区沌口经济开发区四新南路与新华园路交叉口东南
项目详情及最新动态:
禹洲新希望雍禧兰台规划总净用地面积约8.8万方,总建筑面积约31万方,计容建筑面积约22万方,其中住宅建筑面积约21万方,容积率约2.5,绿化率约30.5%,规划住宅总户数约1717户。项目共由8栋高层和超高层以及22栋多层洋房以及部分社区商业,以及一所幼儿园组成。

主推的一期4号楼为33层1个单元,2梯4户,分布户型为建面约98-116平。

建面约98平,三房两厅两卫:
该户型位于4号楼中间户,户型方正,三开间朝南,北面对连廊,客餐厅一体化,动静分区较好。南向带有观景大阳台,连接次卧,采光和视野非常好,再加上两个卧室的飘窗,拓展面积较多。建面仅约98平就能做到2卫,在市面上非常罕见,功能性和实用性都很强。

价格详情:
该项目是经开单价地王,备案均价约21117元/平,有折扣,折后均价约18800元/平,带装修销售。
项目优势:
1、禹洲新希望雍禧兰台位于三环内,环线位置还行,自驾出行比较方便,附近有快速路、主干道。
2、项目自带规划幼儿园、出了小区有小学(在建中)和中学(已建好),项目附近有公园。
3、容积率不高,高低配规划,高层基本没有遮挡,采光视野较好。
项目劣势:
1、虽然是三环内,但属于三环内地段价值较低的区域,也不是经开区重点打造的区域,二线临三环线和规划的高铁,周边有高压线。
2、建筑密度(建筑基底面积/占地面积)高,没有完整园林绿化空间。
15锦绣江城
(洪山区-白沙洲)
区域内低价盘,位置还不错
项目位置: 锦绣江城项目位于洪山区白沙洲大道与江国路交汇处,在杨泗港快速通道以北,白沙洲2.5环内。项目紧邻白沙洲大道主干道,离地铁5号线江国路站也不远,距离梅家山立交约3公里,在区域内占据的位置还不错。

区位示意图:

项目微观区位:
西面为白沙洲大道高架桥、张家湾小学、烽火钢材市场(规划图显示为商业用地);
南面为江国路、5号线地铁站、保利上城、张家湾中学;
东面为合富金生建材市场(规划图显示为绿化用地);
北面为江南汽车交易市场(规划图显示为规划绿化用地)。

锦绣江城 湖北省武汉市洪山区白沙洲大道
项目详情及最新动态:
锦绣江城项目由两个地块组成,规划总净用地面积约6.8万方,总建面约35.7万方,容积率约3.8,绿化率约40%,居住总户数约1771户。项目首开K15地块,K15地块净用地面积约4.6万方,总建筑面积约24.6万方,计容建筑面积约18.2万方,容积率3.94,建筑密度19.1%,绿地率40%,总户数1295户,机动车停车位1666个。
K15地块体量较大,4-7号楼已开,本次拿证加推的8、9号楼将是项目第三次开盘,也是该地块最后两栋住宅,之后项目还是K14地块的3栋住宅待售。

8号楼为55层,9号楼为44层,均为3梯4户结构,分布户型为建面约96-154平毛坯三房四房。

B2b户型建面约96平,三房两厅一卫:
该户型分布于9号楼的中间,户型方正,三开间朝南,南向开间约10米,北面对连廊,私密性较差。户型整体动静分区,三房设计,只有一个卫生间,不过面积不大,上车门槛较低。

C3户型建面约106平,三房两厅两卫:
该户型分布于8号楼的中间位置,户型结构跟上面建面约96平基本一致,主要区别在于主卧多了一个卫生间,功能性更好。

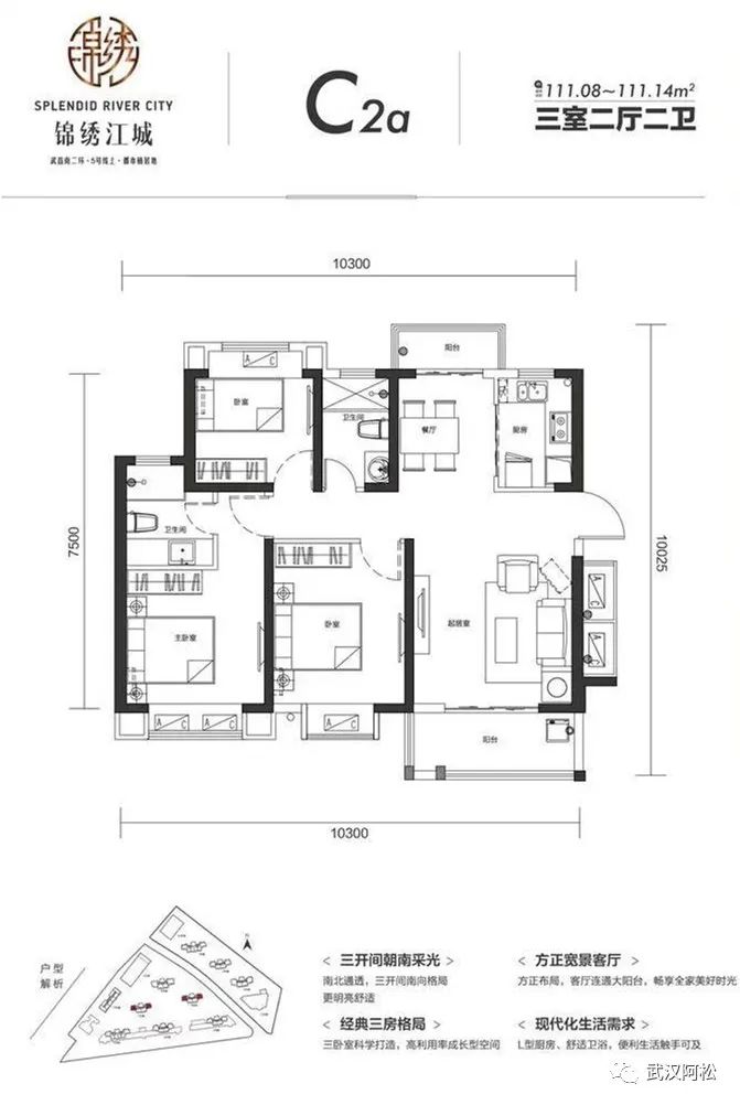
C2a户型建面约111平,三房两厅两卫:
该户型分布于9号楼的东西两端,南北通透双阳台,三开间朝南,动静分区,明厨明卫,主卧带独立卫生间,舒适度不错。

价格详情:
锦绣江城8、9号楼毛坯备案价约17145元/平,相比上次价格上涨了约816元/平,涨幅不小,不过基本也符合当前的楼市规律。
项目优势:
1、项目在杨泗港快速通道以北,属于新二环以内,在白沙洲内占据的位置不错。
2、项目紧邻主干道,距离地铁5号线也比较近,在区域内的交通状况较好。
3、区域有一定利好规划,且兑现速度较快,后期生活将比较便捷。
4、户型结构还不错,基本都是南向大开间设计。
5、毛坯销售,虽然价格上涨,依然属于白沙洲三环内的低价楼盘。
项目劣势:
1、现阶段周边整体面貌不太好,现阶段居住环境糟糕,目前周边配套相对欠缺。
2、该项目品质规划中规中矩,后期品牌溢价空间有限。
3、项目西侧为白沙洲高架,东侧为地铁5号线高架,会有一定噪音影响。
总结:三环内单价2万以下,100平左右的三房产品,主要集中在后湖、古田和汉阳,而大武昌只有锦绣江城可以基本符合需求,而光谷三环内更是没有2万以下的楼盘,也可以体现出武汉楼市发展的不均衡:大武昌价格高、火爆、楼盘少,大汉阳盘多、涨不动,大汉口低价盘基本都在古田。