20万盖农村小楼,30万盖农村豪华别墅,50万带家装也能盖起一套豪华别墅了,如果是50万的主体,那又能建出什么样的顶级农村豪宅?
其实这一切,首先你得有一个好的设计,然后找对施工队。不然的话,同样的钱、同样的地,建出来的房子可就差别很大了。
下面都是网友投稿,造价都是50万左右的农村别墅,我们来看看问题都出在哪,为什么同样的造价,甚至更低的造价,别人的房子为何就比我的好?
第1套 造价65万,总面积295平方米,位置:湖北

这套农村别墅的造型非常精美,素色的外墙瓷砖搭配红色瓦顶,还有四周围绕的绿植,呈现出一派和谐之气。未采用农村欧式别墅常见的雕花梁托、花瓶栏杆、豪华落地窗,而是在结构上选择传统欧式元素。带家装65万,造价也算合理,主体造价30万。


第二套:造价60万,占地15×10米,总面积378平方米,位置:江苏
这是江苏一位网友家的豪宅,参考“住宅公园”下面这套的图纸,略做修改。2016年初建成,那时各种建筑材料钢筋、混凝土、红砖还没有涨价,房屋主体加上装修也才只花费了60万,放到现在70万不一定能搞定。

这是建成后的外观,淡雅色的瓷砖,天蓝色屋顶,也非常的美观。院内停车,有院子的话,设计车库反而是浪费现在不好批、面积有限的宅基地。

这是住宅公园的原始平面图,相比外观只是屋顶颜色改了一下,户型图上网友也做了一些调整。
对于原户型的双楼梯,家人颇有异议,最后决定取消了弧形楼梯做成卧室,火盆室改成餐厅,餐厅位置则改成双跑楼梯了。这样整栋房子的空间利用率就更大了,而且更符合乡村住宅的习俗。



走进外大门,近看我们可以发现网友其实也是很懂的。大气的大门,一楼不同于原始效果图,采用文化石装修外墙,更美观、富于变化,也耐脏。

外内装修也不差,谁说城里才用空调,咱农村,主卧、客厅空调也走起。

第3套 : 55万带家装,姐夫施工,建筑面积400㎡, 位置:安徽
房子是全包给自家姐夫施工的,另外请哥哥协助。施工过程中,户主在城里工作,从开工到建成也没回去过几次,但质量还是很放心的,400㎡的房子,做了一层装修一共才55万,果然有亲人的地方才有家啊!
钢混框架结构,这一套实在是太值了。

整体效果,红、白、蓝经典的美式三段配色,清新明亮堪称经典。动静、油烟分离,户型非常适合家居,农村厨房单独隔离开是很多人的追求,但是现在宅基地不好批,能实现真的是太美的一件事。


砌筑墙体时,构造柱位置做了留槎处理,能够让构造柱和墙体结合紧密,虽然并不是典型的马牙槎“五进五出”的构造。但也比光溜溜直上直下的构造好多了。

在两栋房子之间加装玻璃顶,作为逢年过节回家备用车库使用,平时父母在家的时候,吃了晚饭在这里纳凉,聊天打牌……小日子想想就觉得惬意。


再来看看房子内部最终效果,目前至装修了一层,主要给父母住。家具和装修统一的欧式风格,大气美观,就这陆先生还跟我们说是简单装修,真是未免太过谦虚了。

第四套 50万,江西
三层别墅,50万建出百万效果。外墙涂刷米色真石漆营造素雅大气的别墅格调,镀膜玻璃保护到家人的隐私还能增添一丝时尚元素,门厅罗马柱和窗楣采用欧式浮雕装饰喷涂金色漆料点缀凸显整体的华贵大气之感。
动静分离,老人房、堂屋、造型整个都很符合南方人的居住需求。

真正的钢混框架结构,2层半,建筑面积328平米。50万的主体造价确实蛮高,但是对比框架结构的质量,这价格其实算很中肯的。





第五套 造价55万,面积325㎡,位置:广东
别墅仿照托斯卡纳风格自建而成,占地15X10米,建筑总面积325平方米。有车库、老人房。但是这套却被网友们骂惨了。主要还是看上去太像教堂了,不符合中国农村的审美,就算在城市,作为家居,除了宗教认识,一般人也确实很难喜欢上这样的风格。


当然网友不喜欢,不仅仅是因为外观风格,这套的设计既不满足南方农村的居住需求,也不能满足北方的居住需求,空间使用率也低。


三层布局:

第六套 造价40万,建筑面积364㎡, 位置:四川
计划生育那是城里人和公务员、企事业单位的事,在农村其实很多90后也是有兄弟姐妹的,很多家庭是有两兄弟。都在外面打拼、父母年事渐高、成家立业后老婆孩子在家、老房子太破旧了.......各种因素下,农村起栋别墅这么看都是必需的。
房子最开始想的是盖砖混结构,但是这几年地震频繁,谁也保不准会有什么闪失,还是盖成框架结构的实用。钢材花了9吨,水泥90吨,还有乱七八糟的一些费用,主体加起来40万上下。这造价,对比前面一套55万,是不是瞬间KO了 !


1楼空间很大,但是没有设计老人房,也没有堂屋,如果要参考这一套,户型上看一看做适当的改善。

相比一楼,2、3楼的户型布局就很符合农村人的生活习惯。大露台也方便晾晒。


第七套 主体造价60万,位置:广东湛江
见多了农村别墅实拍,对于造价心里也有谱,大抵上农村盖房基本上在40万左右上下波动,但不包括有些土豪斥巨资自建百万豪宅,靓丽的外形配上稳重大气的内在布局,说其是当地第一房一点都不为过,可真正的百万农村豪宅到底长啥样,广东湛江盖房实拍告诉你!


别墅设计规整有序,三层的布局从根本上解决了农村人多房间数不够的情况发生,同时挑空客厅的设计也令居室生活更富有情调。
柴火房,土豪也爱家乡的味道!一楼只哟一个老人房,也符合现在的实际居住需求,老人住一楼方便,年轻人住2楼、3楼,惬意。



第八套 50万,建筑面积331㎡,位置:南方
11X10的占地,算是豪华设计,精巧实用一点都不过时,适合农村居住!

房子一共是三层,农村人多,卧室数量也相应的较多,首层就有两个卧室,以满足日常生活所需,客厅与餐厅之间通过软隔分开,打造出独属于自己的空间设计。



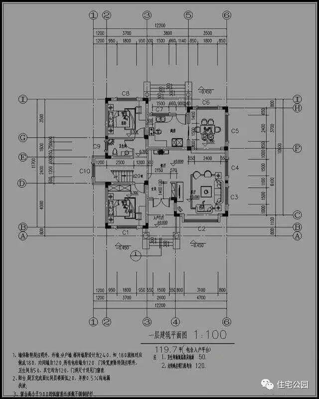
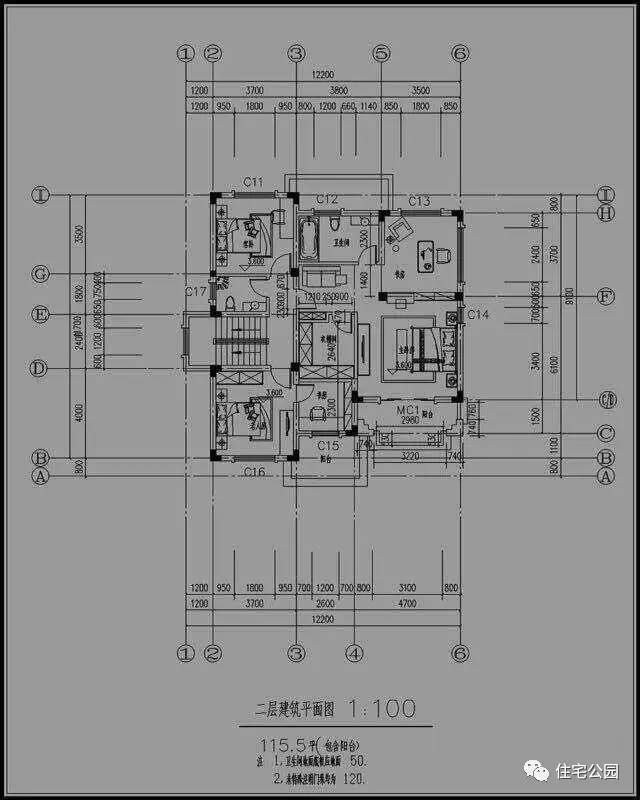
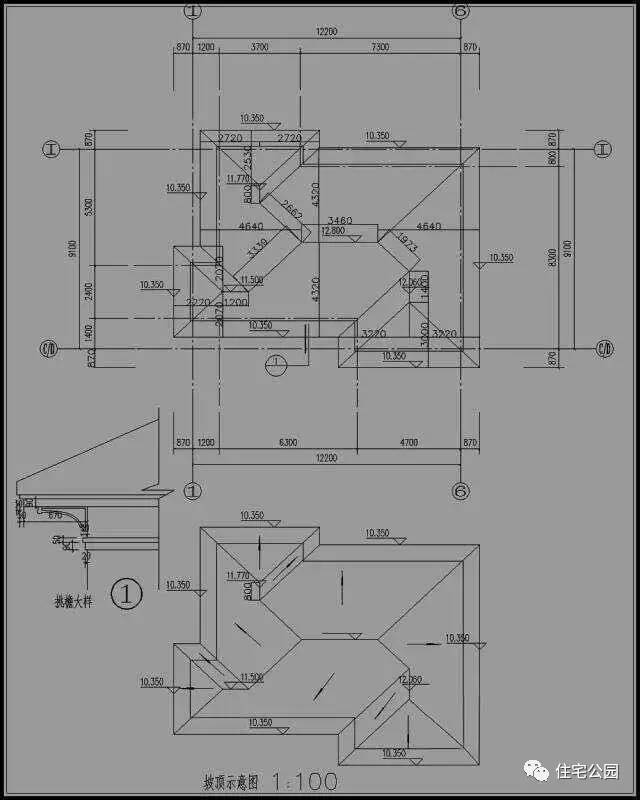
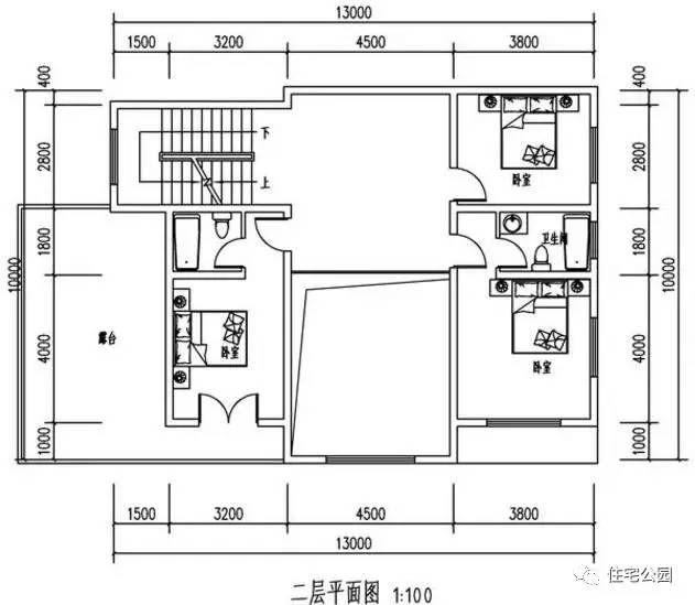
砖混35万,框架50万造价户型推荐
第一套
占地尺寸:12.24m*12.7m
占地面积:149㎡
建筑面积:391㎡
总 高 度:11.2m
建筑情况:共设4室 1书房 2备用房 1储藏室 1健身房 2厅 4卫 1厨 1阳台 2露台





第二套
占地尺寸:12.24米*12.18米
占地面积:140平方米
建筑面积:255平方米
总 高 度:9.67米
建筑情况:4室 3厅 1堂屋 3卫 2厨 1洗衣间 2阳台




该预算只是主体结构毛坯造价,全国平均水平,不含交通费、装修。
微信公众号:住宅公园,450套别墅图纸,户型私人定制!