小区:奥东花园
户型:三室两厅
装修面积:126.19㎡
装修风格:北欧风格
基础造价:3.9万
业主要求:要求简单大方,以为色系为主,储藏空间增多。
奥东花园126平三室两厅北欧风格


木棉花的花语是珍惜眼前幸福,让生活可以留住我们的痕迹,让时间也能留住我们的影子。


在这里大量使用原木色赋予了空间大自然朴实的气息,舒适、干净、素雅、温和、每次回到家都是一次心灵的放松。



家就应该这样,虽然承载着疲惫,更重要的是也开启了幸福!

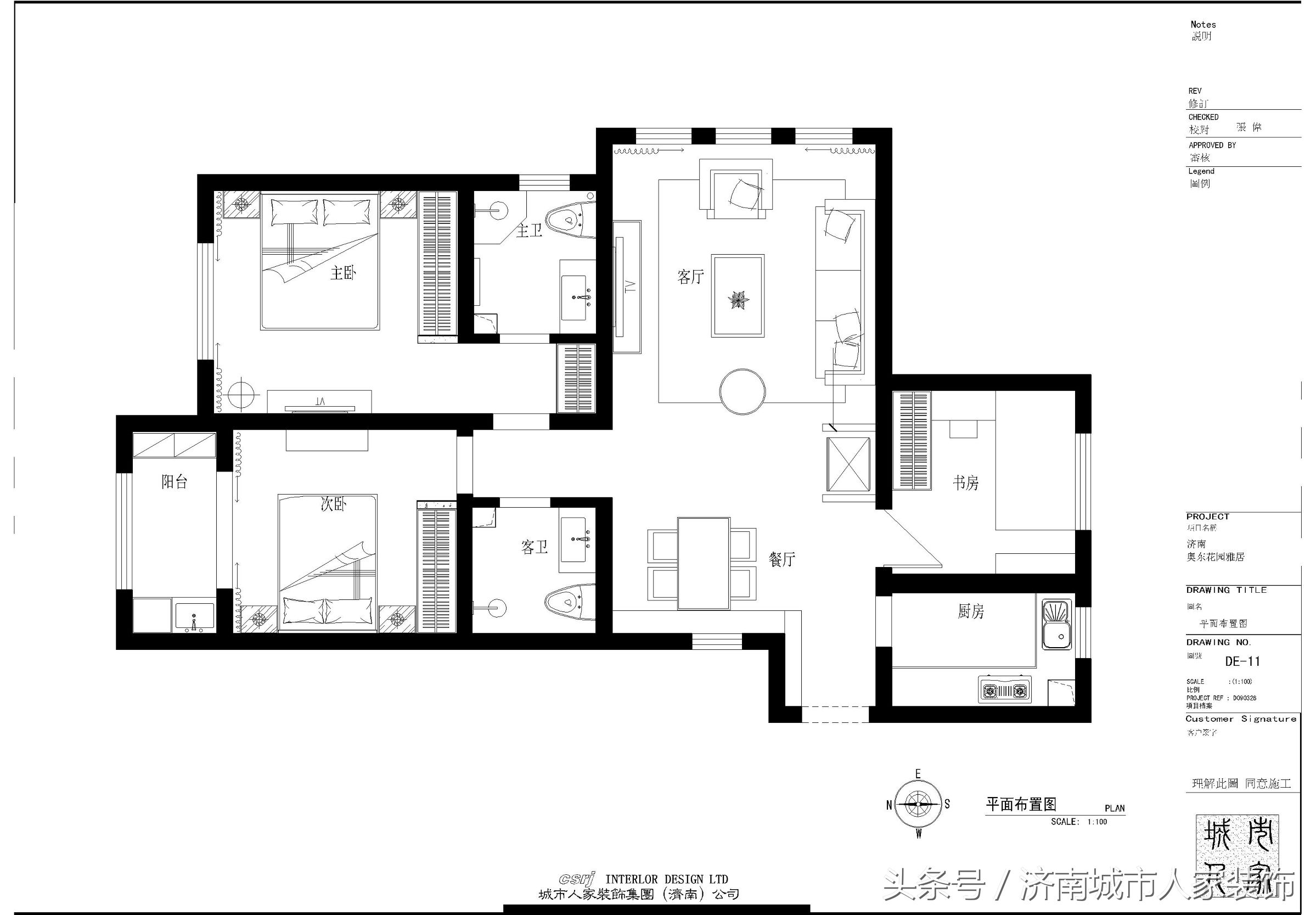
奥东花园平面布局图
想要查看更多案例,如果您有装修设计问题可以关注小编点击“在线咨询”或者给小编留言喔!