本文为设计师雷翔原创作品,文字及图片均原创制作,转载请私信作者!
一、项目概况(背景):本庭院设计方案位于云南省市临沧,设计制图使用SU、Lumion、PS等软件。庭院去掉建筑后面积约在280㎡左右,业主家里有五口人,平时两位老人在家时更多一些,业主希望庭院效果能够高贵大气一些,可以多种一些植物,还要有菜地、水景、休息区等等,让老人可以喝喝茶下下棋,打发闲暇时光,最后我们选择了简约欧式风格来设计庭院。首先入口处设计了停车棚,往前是大片的菜地,往左是一条汀步,都可以走到后院。后院主要是以欣赏为主,设计了水景,池塘里有汀步、荷花和锦鲤等等,非常的生动自然。植物配置也很丰富,但绿叶树种类多,颜色比较素雅。还有造型简约而且带有一些欧式元素的凉亭、秋千椅和休闲餐区。其他的休息区布置在天井里,整体比较简约。





二、城市气候分析:临沧市位于云南省西南部,属于亚热带低纬度山地季风气候,四季温差不大,干湿季分明,夏季没有酷暑,冬季没有严寒,常年气候温和,降雨充沛,阳光充足,是十分宜居的城市,有着“亚洲恒温城”的美誉。




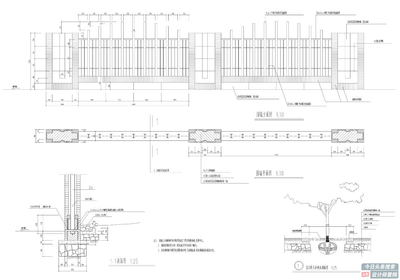
三、庭院布局分析:U型庭院布局,入口处设计了停车区域,停车棚采用玻璃做顶,玻璃具有很好的透光性,在遮风挡雨的同时为空间增添了通透感。依照业主要求设计了菜地,菜地面积比较大,完全满足业主的需求。菜地与建筑侧面均铺设了汀步小路,增加生活趣味的同时,也为空间建立了联系。后院设计了水景,水池边采用碎石进行装饰,结合周围的绿植以及具有欧式风情的凉亭设计,使空间具备了浓郁的自然气息以及欧式风格的惬意与优雅。休闲区设计在木平台上,放置了户外家具,再结合壁炉与绿植的装饰,使空间十分舒适、悠闲。




四、风格解析:简约欧式风格沿袭了古典欧式风格的主元素,融入了现代的生活元素,展现更多的是惬意和浪漫。以浪漫主义为基础,效果典雅、亲切,具有强烈的视觉效果,注重突出景观的空间感和立体感。





五、植物分析:根据临沧市气候环境以及庭院的风格特点选择栽种了木槿、月季、小叶女贞等植物。
1. 木槿喜欢阳光充足和温暖潮润的气候环境,耐寒耐热耐修剪,稍稍耐阴,耐瘠薄耐旱,在重黏土中也能生长,萌发力很强,对环境的适应力很强,木槿是重要的观花灌木,对于很多有毒气体都具有很强的抗性,是主要的绿化树种之一。
2. 粉红月季象征着初恋,不同的花色所代表的意义不同。月季喜欢温暖、阳光充足、空气流通性好的环境,月季对于气候、土壤的要求不高,但更适宜种植在疏松、肥沃的土壤中。月季具有藤本植物的特性,根系发达,抗性强,是攀援生长型植物。月季花色艳丽、花期持久、香味浓郁。月季花具有非常高的观赏价值,而且极耐修剪。
3. 小叶女贞是落叶灌木,喜欢阳光,比较耐阴暗环境,还可以耐受寒冷,华北地区可以露地栽培;属性比较强健,耐修剪,生长力强。主要作为绿篱栽植;枝叶紧密、圆整,庭院中常栽植观赏;可以抵抗很多的有毒气体,是非常优良的抗污染树种。



六、材料分析:地面铺装选择了花岗岩、防腐木、草坪等材料,墙体使用铁艺围栏以及花岗岩材料铺贴装饰。
七、颜色搭配分析:整体颜色以黑白灰为主,搭配棕色、原木色以及植物的颜色点缀装饰庭院。





八、项目亮点总结:本项目中的值得大家参考借鉴的地方在于池塘的设计。池塘边是碎石和植物进行装饰的,再加上里面的荷花、汀步和锦鲤等等元素,非常自然清凉。
点击下方观看更多庭院文章和视频
80㎡小面积庭院这样设计!你想要的都在这,邻居看了也要设计
150㎡实景设计案例!充分利用空间,打造实用低维护的庭院花园
庭院石板如何铺地才好用?怎么选?设计师解答地面铺装常见问题
