了解更多商业空间设计及商运知识,可以关注我们的头条号哦

因为每个商店的设计都尊重它周围的环境,在寻找其他商店之间的视觉异质性时增强它,同时保持它们之间的统一性。该品牌在一个现有的地点开展了该项目,在那里保留了一些元素,例如斑岩“Patagonico”,因为它是该地区广泛使用的材料。入口门和水泥地板也被保留下来。
在外面,有两个巨大的铁鸟笼可以坐着,但是,无意中,它们是一个有价值的营销工具,因为作为一种有趣的体验,人们想要在网络上与他人分享它。建筑设计兼收并蓄,试图将现代元素与不同年代的风格融合在现有建筑的空间干预中。在材料方面,资源是将它们分为两大类:一类是用于所有项目,以巩固公司形象,另一类是偶尔使用,目的是让每个地方都成为一个独特的部分。这个地方特别使用水泥、石头、木头、陶瓷、大理石、铁等材料。冰激凌、字母、交流、氛围,用音乐术语来说,都是和谐安排的音符,为那些想去卢卡诺餐厅的人定义了一段旋律。

卢西亚诺Lucciano’s冰淇淋旗舰店室内实景图

卢西亚诺Lucciano’s冰淇淋旗舰店室内实景图

卢西亚诺Lucciano’s冰淇淋旗舰店室内实景图

卢西亚诺Lucciano’s冰淇淋旗舰店室内实景图






卢西亚诺Lucciano’s冰淇淋旗舰店外部实景图

卢西亚诺Lucciano’s冰淇淋旗舰店外部夜景实景图

卢西亚诺Lucciano’s冰淇淋旗舰店外部夜景实景图

卢西亚诺Lucciano’s冰淇淋旗舰店外部夜景实景图




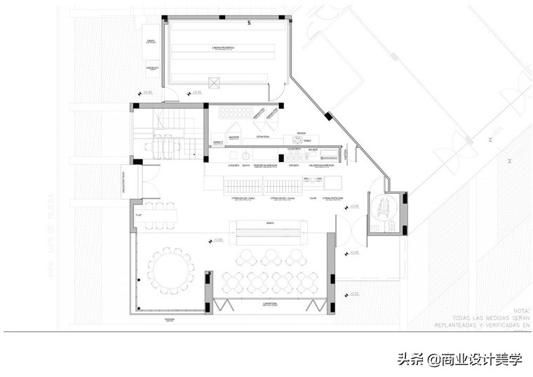
卢西亚诺Lucciano’s冰淇淋旗舰店平面图

卢西亚诺Lucciano’s冰淇淋旗舰店平面图

卢西亚诺Lucciano’s冰淇淋旗舰店平面图

卢西亚诺Lucciano’s冰淇淋旗舰店立面图

卢西亚诺Lucciano’s冰淇淋旗舰店立面图
