好看的效果图千篇一律,有温度的家万里挑一!184㎡新中式让人沉醉的东方韵味

「家,就是伸手触及的幸福」

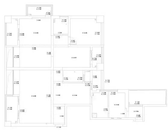
原 始 结 构 图

平 面 布 置 图

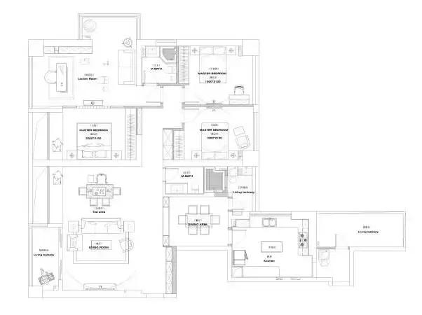
平 面 效 果 图
过道

▲温润的原木木材与的淡雅的石材烘托出庄重典雅的神韵,给人一种曲径通幽的感觉,走廊尽头别致的摆件,流露出浓厚的东方韵味,令人忍不住涉足想要一探究竟。
客餐厅

▲客厅是传统与现代居室风格的结合,设计师以现代的装饰手法和家具,结合古典中式的装饰元素,来呈现亦古亦今的空间氛围。中式风格的古色古香与现代风格的简单素雅自然衔接,更贴近现实生活需求。

▲餐厅空间以中式工艺木门和木质收纳壁橱隔断,线条简约,通过这种新的分隔方式,单元式住宅就展现出中式家居的层次之美。背景墙饰以别致的装饰元素,有格调又不显压抑。
书房

▲书房的设置不仅满足了家居主人的生活习惯或嗜好,又极有分寸而又极其丰富地传达着主人的内心,从而提升了主人的身份与品位。
卧室

▲卧室在色彩方面秉承了传统古典风格,同时加入了很多现代时尚元素。在配饰的选择方面更为简洁,去除了奢华的装饰,更加流畅地表达出传统文化的精髓。饰以精巧的灯具和雅致的铁艺画,给居室增添了几分暖意。
设计最终目的
不是一幅漂亮的图纸
而是一种只可意会不可言传的空间感觉
是视觉上所表述的一种洒脱的“语言”
更是灵魂的交融!