看过太原南城房子的朋友应该都发现了一个有趣的事儿:从亲贤北街一直到龙兴街,短短六公里路程,太榆路(建设南路)两侧竟然有五个万科家的项目。可以不夸张地说,这个区域几乎被万科“承包了”。这种情况是非常少见的,很少有开发商会集中在某个区域密集开发多个项目。这五个项目分别是:万科城市之光(东望)、万科紫台、万科城、万科翡翠东第、万科新都荟(悦都荟)。至于为什么万科这么喜欢这个区域,咱们不做讨论,这篇文章只对这个区域目前比较受关注的两个项目做一个优劣势分析,希望能给准备在这个区域买房安家的你带来一些帮助。文章约2500字,阅读时长约6-7分钟。
一. 区域位置
南内环街以南,南中环街以北,建设南路(太榆路)以东,东中环以西。
二.区内交通

五横: 南内环街、亲贤北街、长风大街、学府街、南中环街。
三纵: 并州南路(坞城南路)、建设南路(太榆路)、东中环路。
地铁: 地铁一号线(南内环东街站、东太堡站、长风东街站、学府街东口站、省农科院站、太原南站)。

三.区域配套
1.公建配套
山西省政府、山西省委*党**校、山西省财政厅、山西省司法厅、山西省公路局、山西省通信局、山西省体育局、迎泽区公安分局、迎泽区人民法院等。
2.医疗
山西中医学院第三中医院、*警武**医院、山西省第二人民医院新院区(规划中)、太航医院、109医院、铁三局中心医院等。
3.商业
茂业天地、北美N1 、北美新天地、天美新天地、印象城 等。
4.自然景观
双塔景区、学府公园、晋阳公园等。
5.教育
大营盘小学、八一小学、九一小学、省府街小学(建设中)、山大附小、小店区第三实验小学(太师三附小万科城校区)、马蹄莲小学(长风森林校区)、山大附中、三十八中、志达常青藤、志达中学、山西大学、山西财经大学等。

6.其他品牌项目
合生御龙城、碧桂园玖玺台、昌盛双喜城、保利东郡、华润首开紫雲府、金地卿云台、富力金禧城、绿城太原广场等。
四.项目简介
目前这个区域有万科城市之光东望、万科翡翠东第、万科新都荟(悦都荟)在售,但因为新新都荟(悦都荟)在南站以南,本文暂不做分析,只做东望和东第的相关分析。
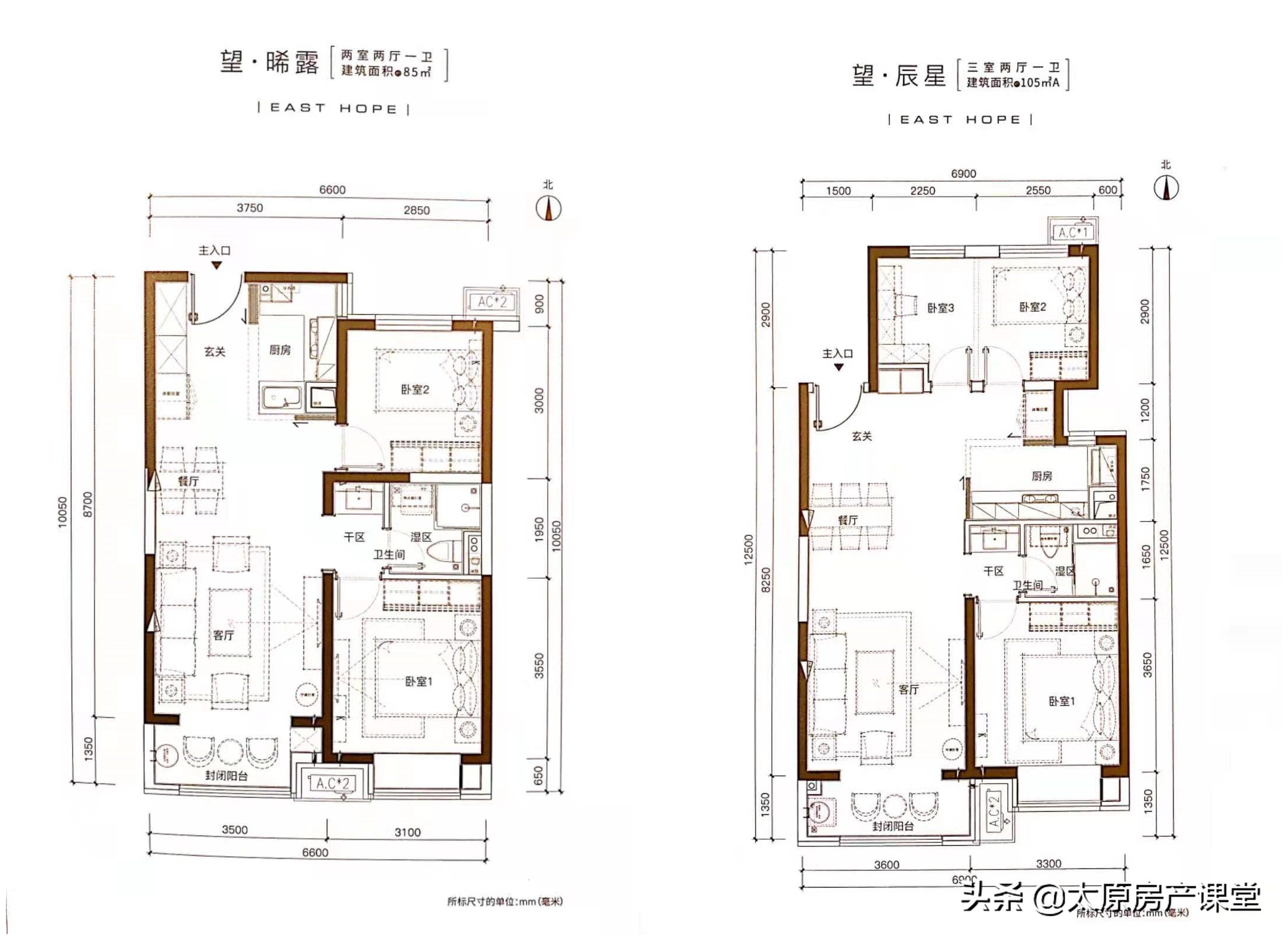
1. 户型
东望:
85㎡两房一卫/105㎡三房一卫

115㎡三房两卫/148㎡四房两卫

东第:
100㎡三房一卫(有三面朝阳和两面朝阳两个户型)

115㎡/125㎡三房两卫

140㎡/160㎡三房两卫

2.装修
东望:全部为带装修交付。
东第:全部为带装修交付。
3.商业
东望:项目地块西侧临近双塔南路位置规划两栋商务楼,并有沿街社区底商,足够满足日常所需。
东第:项目自带约22000㎡商业综合体,与地铁一号线地下接驳,并有配套沿街社区底商,足够满足日常所需。
4.教育
东望:已签约双西小学和三十六中。

东第:地块无小学中学教育用地规划,项目西区规划一所幼儿园。
5.价格
东望:单价约13000元/㎡-13500元/㎡。
东第:尚未开盘,具体价格未定,销售口径为14000元/㎡-16000元/㎡。
6.定位
东望:从户型设计和小区本身园林等各方面来看,项目定位偏刚需+刚改。
东第:从入门户型和小区本身园林等各方面来看,项目定位偏刚改+改善。
7.交房时间
东望:2023年8月底。
东第:2024年10月底。
8.施工进度
东望:部分楼栋盖至8层左右,剩余楼栋已出地面。

东第:东区小区自带公园只要小部分区域完工,但各楼栋正在桩基施工阶段。

9.舒适度相关
东望:项目总占地面积约40000㎡,规划7栋住宅楼和2栋商业楼,容积率约4.0,绿地率约25%,舒适度中规中矩。在项目东南侧约300米处,有一处万科自己修建的临街瀑布小公园——东望园,在一定程度上提升了小区居住舒适度。

东第:项目总占地约229亩,共规划19栋住宅楼、1栋商业楼、一栋商业综合体、一所幼儿园以及一处20000多㎡的私家公园。东区规划13栋住宅楼,容积率约2.5,绿化率约48%,私家公园便是在东区;西区规划6栋住宅楼,容积率约2.8,绿化率约35%。小区整体楼栋总楼层为20层-26层,综合来说,居住舒适度非常高。


五.优劣势分析
1.优势
东望:位置较好,离主流商业区——长风亲贤商圈非常近,生活便利;签约双名校,解决了业主子女上学的问题;户型设计新颖,可根据家庭实际需求DIY自己喜欢的户型;同地段相似楼盘价格都要高于本项目。
东第:位置较好,离地铁站近,离主流商业区非常近;小区自带商业体,生活便利;小区内自带超大公园,非常亮眼,不用出门就能逛公园,老有所乐,幼有所乐;125㎡/140㎡/160㎡的三居户型设计很亮眼,有点豪宅的意思;改善型定位,社区圈层较高。
2.劣势
东望:容积率较高,居住舒适度会受影响;户型比较新颖奇异,与主流户型不同,部分客群难以接受;地块较小,小区内园林景观设计受限;中学开学时间暂未定。
东第:100㎡的三居户型都是带连廊中间户,115㎡的户型非纯南北通透户型,户型设计较为非主流;有11栋楼是西南向倾斜约30°-45°,并非正南正北;距离东中环较近,可能存在噪音污染;暂无小学中学规划,有此需要的客群可能要有所取舍了。
六.是否值得入手
需要注意的是,东望是属于迎泽区,而东第是属于小店区,所以东望签约了迎泽区的双西小学和三十六中。也许有朋友会问,东第没有学校规划,如果买了东第,孩子要上学怎么办?离项目最近的学校是万科城的小店区第三实验小学,如果业主子女有上学需求,按就近原则,大概率是会到这里的,一则因为同属小店区,二则因为距离近,三则因为都是万科旗下项目。但是毕竟项目刚上市,一切均为未知。
而关于两个项目本身,其实正如我文中所写,优劣势都十分明显。其中最大的优势就是两个项目所处的位置都离主流商业区非常近,可以说,就是处于市区,同时,都是万科开发,而万科的物业在业内也是有口皆碑。当然,不足之处也非常多,比如户型、比如距离快速路近等等。
但是话说回来了,任何房子都有优点也有缺点,没有十全十美的,如果有十全十美的房子,那价格一定更“美”。而对我们购房者来说,明确自己的需求,了解清楚自己的预算,然后再去匹配适合自己的房子,这才是正确的看房选房之道。
当然,如果你有购房打算,我更建议你多去了解一些项目,整体对比之后再做决定。切记不能盲目跟风,汝之蜜糖彼之*霜砒**,适合自己的,才是好的。
你觉得怎么样?欢迎留言讨论。
注:本文所有时间节点,均截止到发稿前。
关注@太原房产课堂,看更多太原楼盘靠谱测评。
#太原头条##山西##太原#