中国高歌猛进的城市化进程,造就了一些大尺度的新城中心——强烈的规划轴线与巨大的用地为建筑的尺度和形体塑造提出了完全不同于城市街区环境的挑战。在此前提下,本项目试图塑造一个形态完整的放置于城市尺度的艺术“展品”以回溯当地的文化记忆。同时我们希望它是一个在场的“触媒”而非一座“孤岛”,成为连缀城市空间与历史记忆的桥梁。


►背景
Background
郑州作为飞速发展的区域中心,其城市化进程与历史记忆之间的涤荡冲突,为本次设计提供了一个二元化的复杂背景。郑州美术馆新馆、档案史志馆项目位于郑州西部新城区一片由旷野中拔地而起集群建筑片区之中,本项目与郑州博物馆、郑州大剧院共同组成未来的“文博中心”组团。
没有城市氛围、没有周边肌理的约束和巨大空旷的用地尺度看似为设计提供了绝对自由的发挥空间,但强烈的规划轴线以及与周边建筑的对话关系却又为建筑的尺度和形体塑造提出了挑战。

| 基地规划轴线关系图 |
►原型
Prototype
在建筑的赋形上,设计首先提出要用一个大尺度、有力量感的完整形体来契合规划结构,与周边的两大主要建筑形成对等的体量并产生对话。设计以抽象的气韵回溯地域文化,原型的由来从当地的商周艺术品和中原历史建筑中探寻华夏原始审美的形态共同点,并在“似与不似”之间营造一种“神似”的模糊意象,力求在一瞥之间窥得文化记忆的神韵,并避免落入与具象形态之间简单对应的字面意义上的符号再现。

| 回溯地域文化 |

| 整体鸟瞰 |
►生成
Generation
在建筑的原型母题之下,逐步生长出的建筑形体明朗而干脆,线条利落而无过多矫饰。建筑四周恰到好处的斜面与切口分别对应了周边重要建筑或公共空间的环境要素,形体的收与放均与城市对景有关,体现了对场所精神的尊重。建筑的生成过程,即是模糊的意象原型在场所中的转化和落位过程中逐渐清晰固化的过程。

在建筑东南主入口处灰空间,设计打造了一个标志性的大扭面,对外引导来自博物馆方向的公共人流,对内塑造了一个不同角度富有微妙变化的建筑入口形象。

| 建筑主入口处的巨大扭面 |

| 从博物馆方向远眺美术馆 |
在面向城市广场的建筑东立面,设计塑造了一个通透巨大的索网玻璃幕墙,在中庭中形成巨大的框景,展现东侧城市广场中熙来攘往的空间景观。

| 建筑东侧的索幕墙框景 |
设计依照两馆的独立功能清晰明确地切分为两个体量,在一层底座和顶部屋面板处将两馆相连,在形态上锚固成一座整体,同时形成中部的城市公共空间。


| 两馆中部连接体公共平台 |
►肌理
Texture
建筑外立面采用暖灰色预制混凝土装饰板作为立面主材,整体色彩携带地域文化元素的基因,但通过当代化的处理提升又呈现出了崭新的面貌。条纹肌理使得建筑在大尺度的形体之下保持粗粝质感的同时,兼具了近人尺度的细节。立面开窗采用参数化演绎的渐变表皮肌理,取意于河南巩义石窟中凿刻过的历史痕迹,也如青铜器的铭文一般为建筑形体增添精致层次。



| 表皮与肌理细部 |
►空间
Space
本项目在内部空间的塑造上力图以一个“内”“外”统一的全盘策略打磨空间,从建构角度如实地反映和延续建筑外观。建筑体验的精华在于以使用者在参观路径中的身体感知为线索,并引入天然采光的元素为使用者提供空间和时间上两个维度的感知体验变化。

| 美术馆与档案史志馆剖轴测图 |

| 美术馆中庭(右)与档案史志馆边庭(左)剖透视 |
美术馆通过中庭组织空间,与外部扭面形体对应的外倒斜墙与栈道意象的楼梯结合,拾级而上,随着层数的升高空间愈发宽敞开阔,随着时间推移,顶部天窗洒下的光影不停转变角度,打破了传统美术馆沉闷的环境和充满人工采光的“黑匣式”观展氛围。





| 美术馆中庭空间 |
档案室史志馆因为功能特征所限,公共人流被限制在南侧较小的活动区域,设计通过边庭的引入,营造了一个峡谷意象的公共空间序列,各层楼板层层递退,小中见大,结合墙面的灵活开洞和顶部线性天窗的光影形成空间氛围上的节奏感。



| 档案馆边庭空间 |

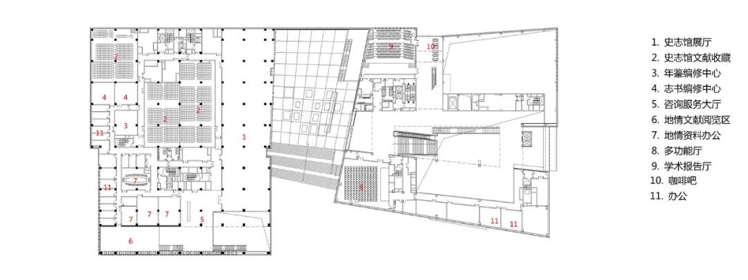
| 一层平面图 |

| 二层平面图 |


| 剖面图 |
►结语
Epilogue
郑州美术馆新馆、档案史志馆项目设计过程中的思考核心是,脱离传统意义上对文化记忆、对场所环境以及对空间塑造上的分别呈现和繁复拼凑,力图构建一个全盘策略来最大化整合形式与空间语言,介乎于回溯历史与立足场地之间用简单、整体的方式营造一个属于郑州的“艺术展品”和“活力触媒”。


| 项目建成后吸引的各类公共活动 |
项目信息
项目名称:郑州美术馆新馆 郑州档案史志馆
项目总负责人:曾群、文小琴
建筑团队:陈康诠、杨旭、王国宇、邢佳蓓、孙嘉秋、杨灵运、伍弦智、雷宇、杨玉菡
结构团队:季跃、余金鑫、陈毅麟、张羿彬
给排水团队:游博林、耿军军
暖通团队:朱伟昌、朱青青
电气团队:李志平、姜宁、张其松
项目地点:河南/郑州
用地面积:5.36万㎡
建筑面积:9.67万㎡
设计时间:2015-2016年
建成时间:2020年
项目业主:郑州市建设投资集团有限公司
建筑摄影:苏圣亮
资料来源、版权所有: TJAD 曾群建筑研究室