从钢结构起步阶段到现在的持续发展,越来越多的人已经逐渐认可并接受这种新型建筑体系,我国也有部分地区开始自建钢结构住宅,其好处自然不必多说,远超传统红砖所建房屋,可以说钢结构现在已经成为了建筑史上的一匹黑马,而当装配式遇到钢结构,又将会碰撞出怎样的色彩!

立面图展示:
别墅为两层半西班牙风格的别墅,占地规模宏大,25.6X13.8米,占地面积353.8平方米,建筑面积619.8平方米,总高度11.9米,共设8室3厅,带杂物间,储藏室,客厅,多功能厅,车库,烤火房露台。




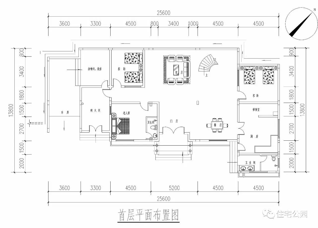
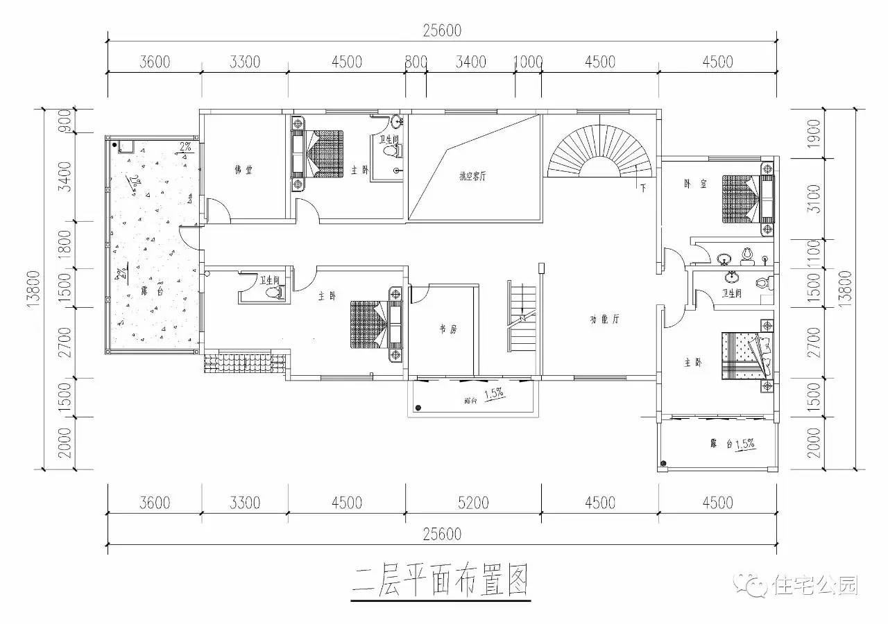
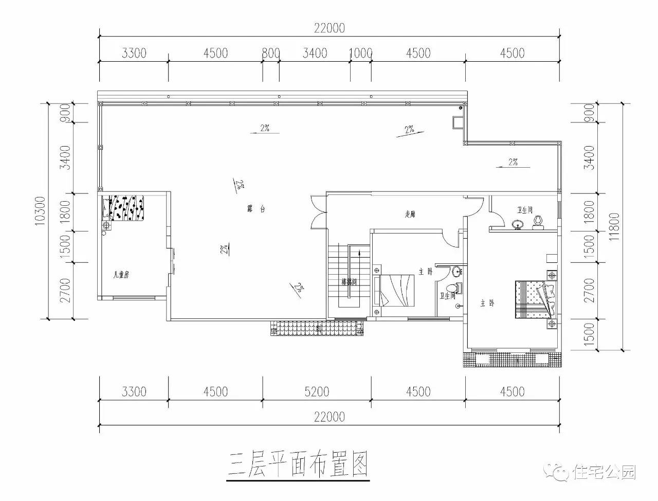
平面布局图:
首层布局多功能用房,独立老人房带私卫,与杂物烤火间相连;东侧设有厨房与客卧,另单独开辟出一小保管室,方便储藏东西。

二层共有四间卧室,每间卧室均带有卫生间设计,方便生活,同时西侧设有佛堂,与外向露台相连接。

三层超大露台设计更注重与周遭环境的互动性,视野效果更好;另为方便生活,三层东侧设有两间卧室,已做好防水保温工作。

施工图解:
钢结构施工一般不做条基,多数情况下是以独立基础为主;清理基坑抄平完毕后,在基面上浇筑一层C10的细石混凝土垫层,振捣密实后绑扎钢筋并安装模板与预制件,开始浇筑混凝土,养护完成拆模后进行钢结构搭建施工。

钢结构所需的构件均是在工厂完成,运输至施工现场进行组合安装即可;构件底部与独立基础通过镀锌螺栓紧密连接在一起,精度要求准,很是考验施工队技术;同时为了加强钢结构的承重性,骨架顶部架有工字钢,并在各构件之间的缝隙处架设方钢,通过电焊或螺栓连接在一起。

待钢结构骨架安装完成后,开始进行墙体填充;对于空间分隔较大的区域,采用高分子内墙板来进行处理,而开间狭窄的区域,则采用了轻质砌块来进行填充。

高分子内墙板安装:
所谓的高分子内墙板,也称ASA墙板,它是采用粉煤灰为填充料、以水泥为胶凝料、以耐碱玻纤网格布或钢筋为增强材料制成的一种建筑板材。具有质量轻、强度高、保温隔热、耐火、隔声效果好等性能,是一种新型建筑材料。

房屋内部空间丰盈有余,钢结构旋转楼梯的设计,也提升了别墅内在美感。

三层主体结构施工,砌垒轻质砌块。

最后,屋面工程施工,钢结构紧实完成后铺设屋面结构板,并做好保温隔热工作。


外墙粉刷已完成,开始粘贴文化石:先测量好墙面的水平线和平整度,每隔50cm弹一根水平线,接着将文化石按照先贴转角,后贴平面的要求进行粘贴;粘着剂用量应充分,按压后要能在周围挤出来,接着用勾缝剂对缝隙处进行勾缝处理。


坡顶上的红色波形瓦与深棕文化石形成了鲜明的对比,色彩搭配和谐统一,大气感十足。

最后在主体外墙上喷涂米黄色真石漆,门斗处喷涂棕色漆做好最后一步美化工作,一栋质优高效的钢结构住宅,便已完工。
据房主介绍,别墅共花92万建成,后续的门窗安装与细节上的处理,还有内装设计则另外计算,预估实际建成要上百万;相信在如此漂亮的外观下,这栋房屋的内在装修也必是亮丽堂皇吸引眼球,就让我们期待别墅落成后的最终面貌吧!

微信公众号:住宅公园,450套别墅图纸,户型私人定制!