

- PREFACE -
我们生于光,我们通过光感受四季。
— 路易斯·康
路易斯·康是建筑设计中光影运用的开拓者,他认为空间应该是一个能让人在精神感受纯粹的地方。在这里,让一些空间可以是「无限的」,但也有一些空间就应该完全地「有限」。不同光引发空间的不同节奏感,室内空间随着光环境的变化而产生丰富的表情。
本案项目位于重庆市渝中区大融城。项目甲方希望围绕品牌「泛民族风格自成一派的原创艺术摄影」,打造一家集社交打卡、艺术体验等多功能于一体的沉浸式感官空间,呼应当下愈发多元化、年轻化的体验。
01
The silence under the light and shadow
沐浴光影下的静谧






设计师利用建筑室内化的手法去营造极具有未来感的空间氛围,让人产生「游」的欲望,身处其中也能领略到空间的丰富。
-


悬挑的「摄影镜头」将光照亮整个空间,同时运用弧形的白色表面来发射光线,增强光的在场感。这些圆形转角的表面所创造出的明暗对比则为光赋予了一种体验上的物质性和造型感。
-

顺着台阶往里走,立刻置身于一个更深层次的空间之中,悬挑的空间球体配合灯光将空间点亮。
02
Spatial deduction of flow segmentation
流动分割的空间演绎


流动的曲线与块面分割,不同材质的运用,重构了空间形态,让留白空间更富有层次韵味。灯带不再只是用作照明,结合环境进行适当的变化,延展着空间的视觉体验。
-


03
Multi-attribute migration space
多重属性的回游空间
门头运用灯带将空间划分为线与面的关系,并在视觉上达到立体与平面的层次变化,勾勒出了空间的轮廓感。大面积的深灰色设计加上宋代山水美学倒影,让门头显得简练而精致。
-



为了保证空间的连续性、给空间增添了一份趣味,设计师让小路变得蜿蜒且富于变化。使不同形式和氛围的空间加以融合,为情境之间创造无形的秩序。
-

选片区
通过动线的规划,让人际交往的接触强度随着空间体验逐步递增,保证了探店打卡、咨询、拍摄等不同人群活动的私密性。同时将空间边界进行了柔性处理,去掉了传统意义上的门,以建筑体块的视觉差做半私密的处理,让空间得已「流动」。设计师希望以一种轻松自在的方式让相互交流有更多的机会。
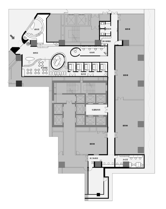
/项目图纸 /





左右滑动
/平面布局 /

项目名称 | 帆摄影·重庆体验中心
项目地址 | 中国重庆
项目面积 | 7 5 0 m²
项目类型 | 商业空间
设计范围 | 全案设计
设计机构 | 牛犇建筑空间设计事务所
主案设计 | 牛犇
参与人员 | 宋丫、贺元斌
内容策划 | 李红丽