-
冲动
北漂了六年,终于在北京三环边买了一栋建筑面积40㎡,使用面积仅有36㎡的老房子。

*蓟门里小区

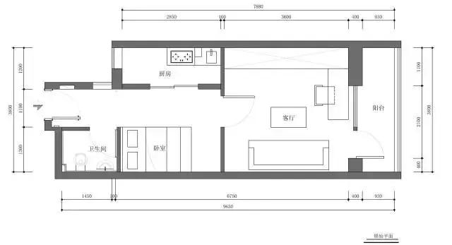
*原始平面
一房一厅的格局,但是整个户型是纯南向的

*原客厅

*原卧室

*原厨房

*原卫生间
原房东是一对老夫妻,这里保留着他们从结婚到晚年的所有生活痕迹。没有玄关,没有干湿分离的卫生间,没有完整的厨房操作空间,没有单独的卧室,没有娱乐空间,没有晾晒洗衣的地方,更是没有收纳空间……
破釜沉舟
这里寸土寸金,巴不得1㎡当做3㎡用。因此,如何取舍需求,将现有面积合理功能分区是这次设计的最大难点,也是最大的乐趣。历时2个月,我将这个蜗居赋予了新的生活理念,享受着空间带给我的愉悦。

*不管做什么总有一只来捣乱
改造就这么开始了房子是真的老,除了砖混结构以外,原始户型完全没有功能划分的概念。重新划分空间功能,第一步也是最重要的一步就是确定需求,不考虑需求的设计都是耍流氓。家里有1人1乌龟1狗。


麻雀虽小,五脏俱全,打造完整的一室两厅,一厨一卫,收纳储藏空间以及安置家里的两只活宝。

*改造前平面

*改造后平面
玄关
原空间进门没有玄关,眼前摆着巨大的洗衣机,既不美观又影响风水。精致的小玄关,一个山形的衣帽挂钩寓意着“开门见山”,一个简单的层板解决了日常更换鞋子的需求,采光井透下来的自然光,透过小窗,衬着一盆从原来住处搬来的绿植。老式的门禁对讲机里藏着我心里住的那个小朋友。



*玄关、挂衣换鞋、门禁
两个旋转鞋架,宽度720mm,进深360mm,这是旋转鞋架的安装最小净尺寸,高度可以根据实际情况决定使用多少层,我采用了6层鞋架,共收纳36双鞋子。一鞋架的乔丹,球鞋迷们,看着动心不?


*360°旋转鞋架,共收纳36双鞋
客厅
客厅是个超级复合功能空间,容纳了我的超级衣帽间,只是被藏得特别好,你们猜哪里是?

*客厅收纳推拉门
3600mm长,超级无敌衣帽间,选用了宜家的可以组合衣帽架,根据自己的生活需求随时调节。



*推拉门后面暗藏了整个衣帽间
客厅中间空出来的部分,可以打游戏机,可以和三五好友聚餐,可以和陈法宝小朋友玩耍,还可以…..在这里滚来滚去….

*客厅


*朋友聚会折叠餐桌

*干了这杯,还有三杯,不醉不归
喝茶练字,最惬意的周末

*一篇字,一杯茶
厨房


*开放式厨房
洗(包含碗架沥水)--切--炒--盛,对于这种小户型可以同步解决就餐功能,同时,需要考虑就餐后凳子的收纳。不锈钢背板,方便擦洗油污。

*完整的厨房功能,餐椅收纳
厨房收纳一定要合理的整理所有物品的位置,升降拉篮,调料拉篮,从宜家买来的墙面收纳配件,以及抽屉里的分类格,都表达了陈大厨对厨房这一“圣地”的专业要求。

*从平面到立面,内部到外部,无死角的厨房收纳


卫生间
80年代的卫生间,骑在马桶上淋浴的布局,拆墙势在必行!干湿分离,独立的淋浴间,洗手盆,壁挂马桶,卫生间里一定不要有落地的东西,因为会产生很多卫生死角,为了马桶移动位置,地面也就必须要抬高150mm。

*原有墙体拆除,加钢梁钢柱加固


*干湿分离卫生间,壁挂马桶,解决卫生死角

储藏
相对房子的使用面积36㎡,室内的储藏面积高达80%。

从断舍离开始,拥有的少,反而更自由开阔。让大小物品“各安其位”,根据功能做近距离收纳,触手可及。这是一扇神奇的大门!!打开之后会有惊喜~~

*2250mm的层高,将床抬高1100mm

*这里储藏了各种存货,到2020年也用不完
北方换季的被褥也需要有地方整理。考虑要细致周到,任何一个地方都不可以放过。

*被褥、换洗床单收纳

*谁家都有点小零碎

*电箱、wifi抱抱一起睡,藏在柜门里

睡
以前的状态,一进门就是一张床,并且床对着厨房,还对着灶台,生活方式的改变在于设计师为业主提供什么样的设计。

*每天晚上都会跟法宝say“晚安”
在床的前面增加一扇手拉窗帘,可以解决第一次来家里的客人,不想让对方看到你的床铺的尴尬,相当于关了卧室的门。

*暗藏窗帘可以在接待客人的时候放下来

*睡前阅读复合了书架的功能

晾晒
南向的房子,最美好的就是阳光,北方的天气,就是在寒冷的冬季,把被子晒得暖暖的。

*折叠户外晾晒架

*洗衣、晾晒、脏衣篓、壁挂吸尘器仅需要0.6㎡

一扇大窗
开阔敞亮,光、景与风之必要,将原有的窗户拆除,更换为内开内到,双层中空玻璃,可以避免安装老式的防护栏遮挡阳光,可以节能保温,同时将中间的部分做成一扇大窗,让阳光、风景、蓝天统统到屋里来。


*改变窗户分割,让阳光洒进来

法宝小八
这是我家的另外两只家庭成员,陈小八,大家可以叫它八爷,一只跟随了我八年的乌龟,关于养龟,最需要解决的就是换水的问题,以前总是大力搬运水缸,现在直接预留了上下水,并且阳光可以直接照射。八爷从此过上了龟仙人的生活~~

*一只有镜头感的乌龟和旺盛的花花草草
这只,集万千宠爱于一身的陈法宝小朋友,有喝水上厕所的笼子,有自己的玩具框,还有自己美美的大圆床。



看天亮
电动窗帘,以前醒来就希望可以在周末早晨,躺在床上拉开窗帘,看着冬日的阳光照满整个屋子。



入住至今
入住的那一刻,设计并没有停止,“2分设计,3分扔,5分收拾”,其实,空间的维护和改良才是更重要的。超过一年以上没有用过的东西,扔掉。

本次的所有照片是2017.6月拍摄,已经入住一年,大家肯定想说拍摄之前肯定疯狂收拾,其实并非这样,好的设计是经得起时间的检验,屋内可以保持像入住时一样的整洁。
(文章内容转自作者陈琰筠,略有改动。)