
美联社美发
Hair Salon Design
对于美的追求,一直都是艺术永恒的主题。当某个设计作品,以其独特的美将你我打动,则它是具有独特艺术品质的,美联社,便是如此。


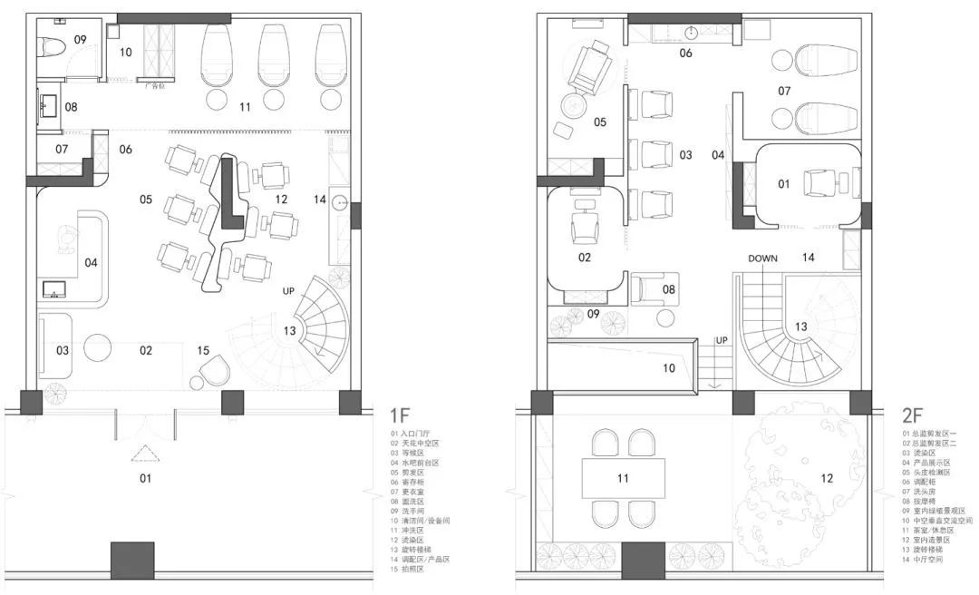
原有店面二楼全部为暗房,无任何采光和通风,设计师根据业主需求,反复考虑后决定打通室外廊道夹层空间,引入阳光和自然风。

设计秉持着“人应是空间核心”的理念,调整原有的楼梯位置,左右互换,让空间充满互动感,成为一个不可多得的空间亮点。



门头设计采用大面积留白,将美联社logo衍生而来的弧形造型贯穿全案,全尺度的落地玻璃门窗,让人一眼看穿的整体空间,给路过的人群最直观的视觉冲击感。

推门而入是美联社的等待区,设计师采用了挑空设计的方式,在增加与楼上空间互动的同时,也添了不少趣味性。




一楼大厅的设计承袭了整个空间主题,方案上配色多采用浅淡轻盈的色调,以乳白色水磨石为主体,辅以浅灰色大理石地砖,与零星散落其间的烟灰金属边框座椅,共同营造出充满现代感的简约氛围。



剪发区通过打造弧形立面墙体,巧妙地隐藏了承重柱,同时也做到了区域分割的功能,功能和美观同时得到了满足。

空间中楼梯承担着沟通与联结的使命,美联社的弧形楼梯,营造出一种奇妙的灵动感,无意中给人一种引导人去探索未知世界的潜意识。



这个角度的楼梯,能更加直观地感受到艺术吊灯的整体设计,造型圆润可爱却不失时尚感,在装点空间的同时,也增加了空间延续性。


项目名称 | 美联社时尚美发会所
项目类型 | 美发商业空间
项目位置 | 湖南 长沙
设计面积 | 130平米
竣工时间 | 2019年06月
主要材料 | 香槟金不锈钢、水磨石、肌理漆、木地板