设计前言
一个舒适的居住环境可以营造出闲适写意、悠然自得的生活境界。它如同清流一般,缓缓在我们心间流淌,让人想闭上眼睛去享受远离喧嚣的宁静。家带给我们的是惬意温暖的感受,它是一件充满芳香的衣物,是一顿可口的饭菜,是晨间香浓的咖啡,是来自爱人的一个吻。
【项目地址】:新站区·华润熙云府
【户型面积】:103m²
【房屋类型】:普通住宅
【设计风格】:现代
【设计单位】:一鸣空间设计
【施工单位】:极物装饰施工
【方案执行】:曹月明 、方晓东(设计师助理)
案例 详情
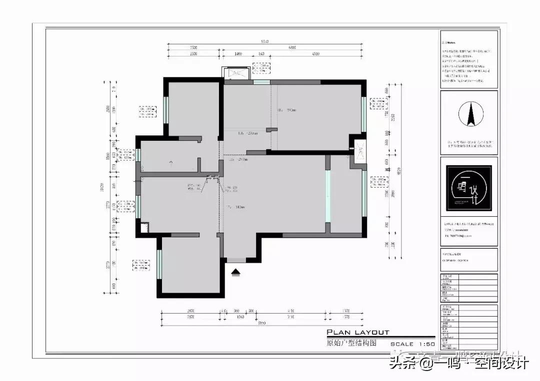
平面户型结构图

基本 情况
此套房子是考虑到一家四口的居住,为爱人提供舒适好用的厨房空间,为两个成长阶段的儿子提供舒适的玩乐居住环境,为自己的提供一个方便办公的书房,为了整个家庭考虑以人为本是业主最想要的。
业主 要求
1.冰箱放在餐厅,怎么解决美观和走路碰撞问题。
2.小孩房的格局设计。
3.需要一个榻榻米。
4.家庭基础储物空间。
5.进门小孩房梁以及中央空调的摆放方位。
6.打造样板间的氛围感又不失温馨。
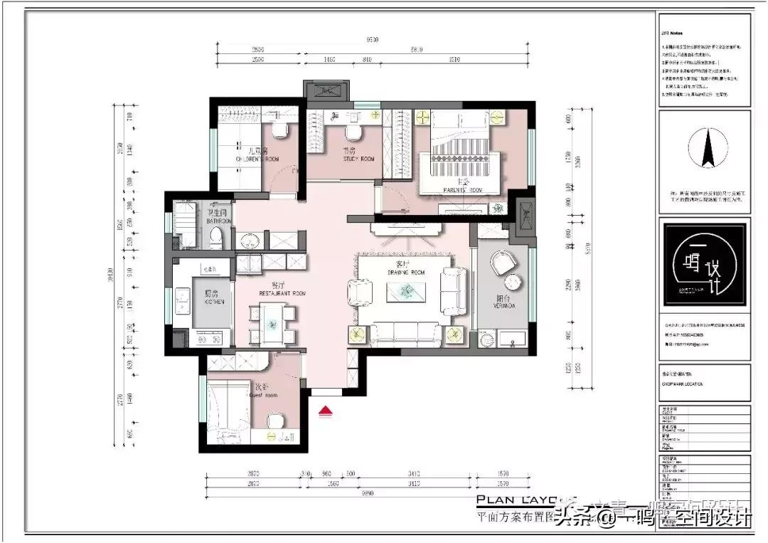
平面方案设计图

【设计思路】:到了30多岁,人的内心越来越稳定,事业上升,家庭和睦,我们也越来越明白什么是幸福,学会珍惜,学会包容。在追逐幸福的路上,我们越来越明白自己想要什么。脱繁至简。业主装了6套房了,什么样的都尝试过,发现还是喜欢现代风格的。业主说:我想要的简约是,一眼看过去整体归一,不要复杂的波打线,不要门槛石,我想要精致的收口,细节真的很重要。本案主色调以灰色,橡木,咖啡色为主,通过不同的材质打造空间的肌理感,从而达到即使颜色相近相同但是可以通过材质区分开空间。
《客厅》




【设计思路】:深色是品质的,冰冷的,如果要选择一种材料来代替冰冷同时凸显品质感,我会选择木材,实木是品质的代表者,在实木的饰面上抽出缝隙把一个平面的质感瞬间立体化。原电视背景偏长,餐厅过短。这样的户型更加凸显了客厅的大背景。但在这样的空间比例下反而使得空间高度显得矮了许多,设计首要考虑就是拉高客厅的空间比例。通过材质的分割来达到视觉的平衡化。
《餐厅》

【设计思路】:冰箱放在餐厅影响了空间的使用,将墙体空间利用出来做柜子解决了过道窄的问题。客厅和餐厅从进门视线为了达到一致的效果,使用同种材质,视线上更整体。
《主卧》


【设计思路】:我想给你的生活浪漫和惊喜,在一个温馨的空间,陪你度过春夏秋冬,看尽黄昏落日。
《儿童房》


【设计思路】:此空间有限,想满足休息,学习,储物的功能有些困难,榻榻米可以满足一切的需求。进门右手边的软木墙防止儿童碰撞,可以让孩子自由在此玩乐。
《北次卧》


【设计思路】:色块让空间更加跳跃,清新可爱的氛围。
《书房》

【设计思路】:孩子们的成长也是不断学习的过程,我们需要渊博的学识,需要沉浸在知识的海洋,同时我们需要舒适的环境和好的氛围,满面的造型书架满足孩子的成长需求。
《卫生间》


【设计思路】:通过不同颜色的砖分割了整个空间,更加富有层次,精致体现在每个细节空间。
《厨房》

【设计思路】一个家幸福的代表就是厨房空间,这样特别设计的厨房空间让做饭也是享受的过程。
《阳台》

【设计思路】:明亮的空间,大面积的花色会显得凌乱,洗衣柜的墙面局部使用花片砖做空间的提亮。