
「我是大自然的门徒,我坚定地认为建筑应该与自然融为一体。」
——建筑师 赖特
紫金山作为江南四大名山之一,有“金陵毓秀”的美誉,不仅是南京名胜古迹荟萃之地,更是南京的标志和象征。
南京紫金智谷总部园坐落于紫金山脚,地处“紫金山-灵山-龙王山”生态廊道,园区总建筑面积约7万平方米,位于栖霞区马群科技园区核心板块、产业、人才聚集地,是三益携手招商蛇口在紫金山沿脉黄金地段,打造的一座以“人工智能”和“互联网+”为主导产业的创新科技园。

△园区坐落于紫金山脚 摄影: 刘松恺

△产业服务区 摄影: 寻美影视

△产业加速区 摄影: 刘松恺

△产业总部区 摄影: 刘松恺
# 以EOD模式打造产业有机生命"智能体" #
作为南京城东“环紫金山”区域内首个以人工智能产业为核心定位的产业载体,南京紫金智谷总部园致力于打造一座以人工智能为主导,以跨界融合为特色,以创新创业为聚力的高端绿色生态总部基地。

△园区可远眺紫金山景 摄影: 刘松恺
园区整体规划设计采用生态环境导向的开发模式(EOD模式),采取“外部延绵山景+内部共享花园”的设计理念以及“巨型花园景观中轴”的设计概念,从紫金山景观入手,通过整体的量身定制,扩大景观视野角度,与远处紫金山景形成互动,打造出一座产业有机生命“智能体”,完美呈现了人与自然与空间的融合关系。

△园区整体规划设计采用EOD模式 摄影: 刘松恺
#01
生态体验型人工智能“绿谷”
生态环境保护与产业发展是互为助力的,产业园既是一个高效的生产基地,更应当是一个绿色生态的大花园,此次园区规划设计以强烈的共享花园中轴为主旨,贯穿始终,打造出一个生态*界无**的人工智能“绿谷”。

△生态*界无**的人工智能“绿谷” 摄影: 刘松恺
*界无**共享,花园中轴
紫金山,又称钟山,作为南京“绿肺”,拥有优良的生态环境和自然景观,满山苍翠,山光与水色齐收,是非常难得的景观资源。项目坐落于紫金山脚,基地西侧为主要景观面,视野可无遮挡眺望紫金山。因此设计从紫金山景观入手,分析基地不同位置对紫金山的观赏角度,最大化实现外部借景。


△设计理念
建筑师将紫金山景作为终极远眺点,在场地内以园区入口为起点,营造了一条花园景观中轴,并在端部打开,扩大景观视野角度,与远处紫金山景形成互动。同时以此花园中轴串联所有AI业态,充分利用场地条件,将建筑尽量置于南北两侧,最大化释放共享花园。

△与远处紫金山景形成互动 摄影: 刘松恺

△绿色生态的花园环境 摄影: 刘松恺

△最大化释放共享花园 摄影: 刘松恺
形体错动,景观渗透
园区建筑虽贴临基地边界,但建筑师利用建筑形体的错位,在视觉上形成了错落有致、富有变化的立面效果,同时在空间上让园区有了收放自如的呼吸感。交错的形体对内让中轴紫金山景观可以渗透至每一个办公组团,对外可以将广场和院落还给城市,并将城市景观纳入场地,让园区与城市有了相互交融、相互渗透的感觉。

△景观渗透分析

△园区景观中轴面向紫金山打开
开放包容的布局设计,使园区内外均可到达花园景观中轴,人们可以在景观中轴上进行互动、交流,也可以在每个建筑组团错落的庭院中进行休憩、活动。整个园区仿佛一个生态*界无**、交流*界无**、互动*界无**的共享花园。

△错落有致的建筑形体 摄影: 刘松恺

△花园景观中轴 摄影: 刘松恺

△中轴下沉广场 摄影: 刘松恺

△绿色生态的庭院景观 摄影: 刘松恺
品质规划,人车分流
园区的主入口设在基地东侧,沿景观中轴从东至西依次为产业服务办公、孵化型办公以及产业总部,同时结合景观中轴设置部分园区配套,如下沉广场、体验花园等,增加园区体验的丰富度,为园区营造更好的环境。

△流线分析及功能布局
中轴景观的置入让园区总体布局自然形成清晰的人车分流流线。车行外围,可以到达每栋办公单体准确落客,同时在南北道路两侧设置适量的停车位,方便进行地面停车。人行则进入场地内部后分流,沿中央景观步移景异的同时,便可到达办公地点,真正做到人车分流,互不干扰。


△车行外围 摄影: 刘松恺


△人行内部景观花园 摄影: 刘松恺
#02
多维交互的未来办公场景体验
在建筑设计上,无论是办公产品,还是配套产品,三益都强调从单调呆板走向灵活多元,从传统封闭走向开放互动,设计希望通过重塑园区中的人际关系与产业网络,打造出有温度的产业办公环境和多元互动的工作场景。

△总部办公产品 摄影: 刘松恺
产品模块,灵活多变
设计充分考虑了园区的适应性与灵活性,将景观价值高,私密性好的西侧作为销售,东侧作为自持。销售区在满足规划要求分割单元为300平米的前提下,建筑师研发出“品字形”新产品,将建筑以模块的形式置于场地之上,模块单位可分可合,产品组合灵活多变,为企业提供了多种多样的办公空间选择。

△灵活多变的产品模块
企业可以根据自己的需求选择“品字形”的任意羽翼或者其中某层进行入驻,还可以在企业发展之后,选择独立的一整栋办公总部,满足企业的可生长性。同时“品字形”的建筑形态,让每一个建筑体块都实现了三面采光,产生出一种独栋感,满足不同企业多元化的需求,凸显企业形象。

△设计将建筑以模块的形式置于场地之上 摄影: 刘松恺

△“品字形”的建筑形态 摄影: 刘松恺

△企业可以根据自己的需求选择任意模块 摄影: 刘松恺


△每一个体块都产生出“独栋感” 摄影: 刘松恺
体块交错,互动体验
建筑师将编织交错的设计理念延续到建筑设计层面。将园区入口处AI服务中心和AI研习中心两栋原本方正的形体进行体块交错,形成了错落有致、富有变化的立面效果,同时增加交流灰空间,与周边空间形成互动。

△编织交错的设计理念


△错落有致的立面效果 摄影: 寻美影视
产业总部区的“品字形”建筑,同样在局部进行体块交错,释放出更多的体验场所,形成形式多变的露台空间与紫金山及景观中轴互动,既模糊了室内外的界限,又为使用者创造出更多的交流、休憩和观景空间。

△建筑体块生成图解


△形成多变的露台空间与景观互动 摄影: 刘松恺
#03
精细化设计成就艺术品质
在设计过程中三益的建筑师始终坚持以高品质、精细化设计为出发点,全程把控设计服务品质,重视建造细节以及空间体验,最终让园区得以高品质地呈现。

△建筑细部 摄影: 刘松恺
双墙体系,典则俊雅
建筑立面设计采用幕墙+窗墙的外墙体系,以相交编织及顺势渐变的手法呼应人工智能之理念,在满足业主对立面成本控制的条件下,既丰富了建筑立面效果,也为设计增添一丝趣味。


△立面设计采用幕墙+窗墙的外墙体系 摄影: 刘松恺
设计在园区对外展示界面及面向紫金山和景观中轴的界面,主要采用幕墙,不设置开启扇,提供更好的展示及观景效果;在有对视的建筑消极面,采用窗墙体系,窗洞形式的设计减少了建筑的对视,满足了建筑自然排烟的需求,同时其有序列的开洞方式也弱化了开启扇对立面的影响。

△主要展示面及景观面采用幕墙 摄影: 寻美影视

△在建筑相对消极面采用窗墙 摄影: 寻美影视
精雕细琢,编织立面
极具视觉张力的渐变窗洞造型及编织状的窗墙体系,看似简单,但要达到完美的效果却很难。渐变的窗洞通常都是采用涂料,看起来不够精致,因此建筑师与幕墙沟通精细化设计,定制了很细的窗套,并把窗框的副框钉到窗套中,从而达到理想的视觉效果。同时窗套型材设计突出墙面,雨天时可以形成滴水,防止墙面产生水渍。


△极具视觉张力的渐变窗洞造型 摄影: 刘松恺
而编织状的窗墙体系,建筑师则是在预留窗洞时,考虑到了后期施工及涂料厚度的影响,提前预留了相应的空间,保证了最终编织线条的准确对位。



△编织状的窗墙体系 摄影: 刘松恺
在“品字形”建筑有对视的立面,建筑师特别设计了较长纵深的格栅,从而起到消减视觉对视的效果。


△利用格栅消减视觉对视 摄影: 刘松恺
空间优化,释放层高
由于用地位于紫金山脚下,建筑限高为15米。在极致限高条件下如何创造更舒适的办公空间,设计师也想了很多办法,比如风井藏在梁窝内进行最大程度的压缩,尽可能减少对净高的影响;室内局部做镜面吊顶,拉大室内的纵深感;卫生间的管道严格控制在吊顶之上,既不干扰使用者的感受,也维持了外立面干净轻薄的形象。

△局部设计镜面吊顶 摄影: 寻美影视

△舒适的办公空间 图源: 紫金智谷总部园公众号


△巡场:卫生间管道整改前后


△保证了立面干净轻薄的形象 摄影: 寻美影视
#招商蛇口全周期人工智能服务体系助推区域发展#
1979年,招商蛇口成功打造了中国第一个外向型经济开发区——蛇口工业区。作为产业园区的鼻祖,招商蛇口以40多年的实践经验打造了一座又一座产业园区,积淀了丰厚的园区管理经验,在“产业资源整合能力”、“产品力”以及“提升区域价值能力”方面均处于国内领先地位。2019年至今,更是连续三年蝉联“年度中国产业园区运营商TOP50”第一名。

△AI服务中心夜景 摄影: 寻美影视
作为招商蛇口首个以人工智能产业为核心定位的产业载体,紫金智谷积极响应新一代“人工智能”发展规划的国家战略,秉承丰富的“招商系”资源,凭借优越的自然环境,通过整体的量身定制,形成自然生态繁茂、智能生态多元的互联网+人工智能特色主题产业园。

△全生命周期服务体系 图源: 紫金智谷总部园公众号
园区聚焦企业全链生态周期,集创新孵化、科技研发、创业投资等多种产业功能于一体,结合AI智慧产业总部区、AI加速孵化中心、AI研习服务中心等功能,为不同需求的入驻企业提供多方位的全面选择,成为企业一流的孵化器,区域创新的发动机。

△园区入口 摄影: 刘松恺



△花园式办公环境 摄影: 刘松恺
随着园区竣工并投入使用,标志着栖霞区人工智能产业的发展将开启新的篇章,未来紫金智谷将与栖霞区创新共融,形成以人工智能为主导,数字经济和新一代信息技术为辅的“2+1”产业体系,为栖霞区产业高质量发展提供坚实基础。

△园区鸟瞰 摄影: 刘松恺
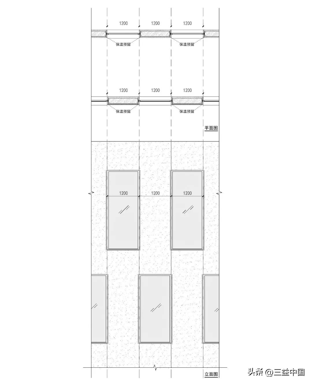
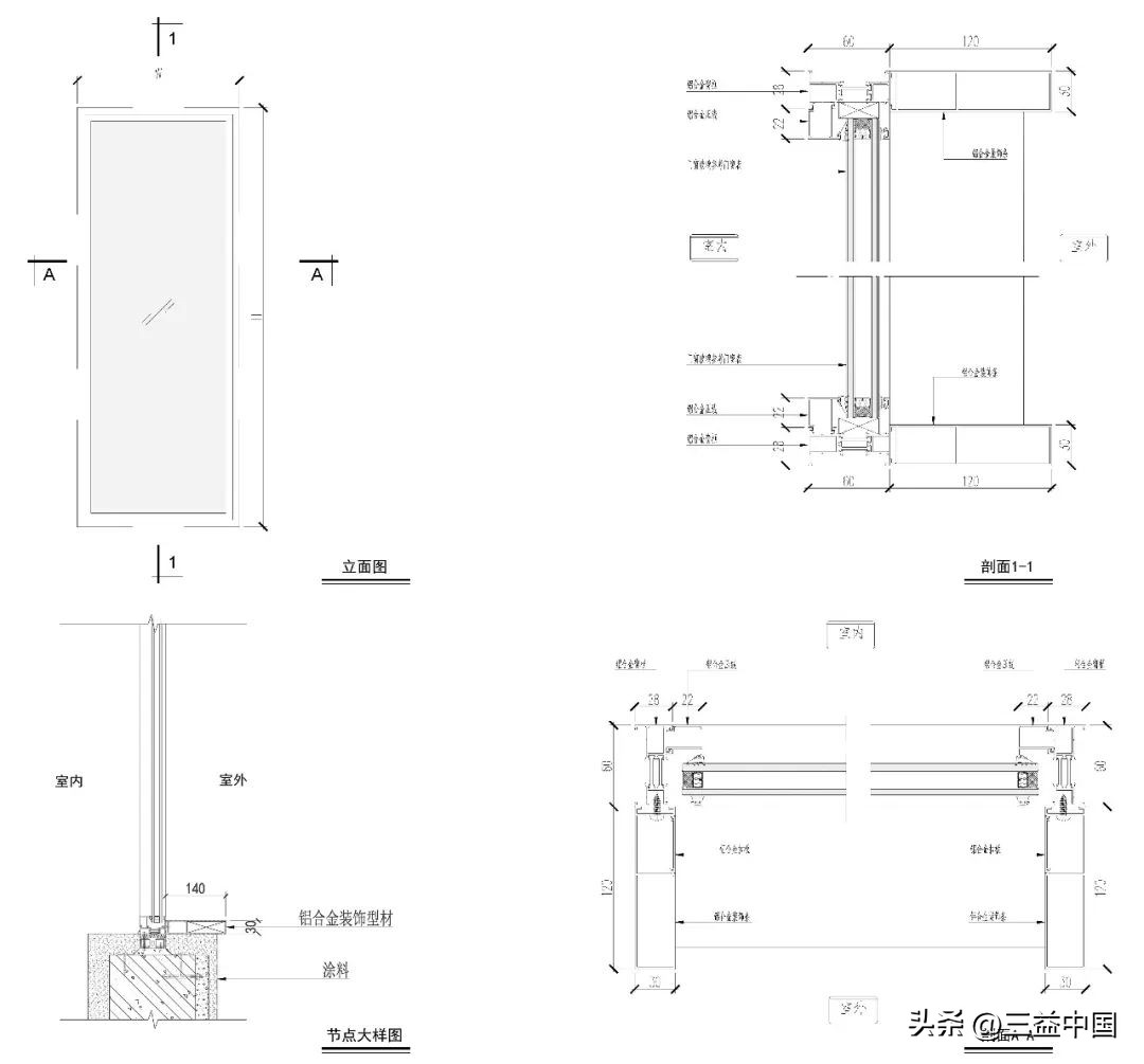
技术图纸
-

编织状窗洞节点

渐变窗套节点

幕墙格栅节点

建筑模型

巡场照片
项目信息
项目名称 :南京招商紫金智谷总部园
项目类型 :产业园
项目地址 :南京市栖霞区奔马路与天马路交叉口
基地面积 :4.23万平方米
建筑面积 :7.01万平方米
设计时间 :2019.02-2020.12
建造时间 :2020.12-2022.06
建设单位 :招商蛇口南京公司
设计单位 :上海三益建筑设计有限公司
主创建筑师 :俞潇潇、张伟伟
项目负责人 :俞潇潇
方案设计 :李洋扬、王赢、胡哲雨、胡楠
技术支持 :卢晓刚、王晓红、赵斌、钱方、王芳
合作单位
景观设计 :谷创生态景观规划设计(北京)有限公司
室内设计 :集艾室内设计(上海)有限公司
施工图设计 :北京炎黄国际联合工程设计有限公司南京分公司
幕墙设计 :肯佩斯幕墙工程顾问(上海)有限公司
照明设计 :三色石设计院
施工单位 :江苏飞龙装饰工程有限公司
建筑摄影 :刘松恺、寻美影视