设计理念
本案是蓝堡湾190平四居室装修效果图,业主选用了简欧风格,香槟奢华,每一处的细节都是高品质
装修方式:半包+个性化
装修风格:简欧风格
小区户型:四室两厅
建筑面积:190平
小区位置:郑州蓝堡湾
详情咨询:置顶文章

玄关布局

客厅

餐厅

女孩房布局全景

男孩房

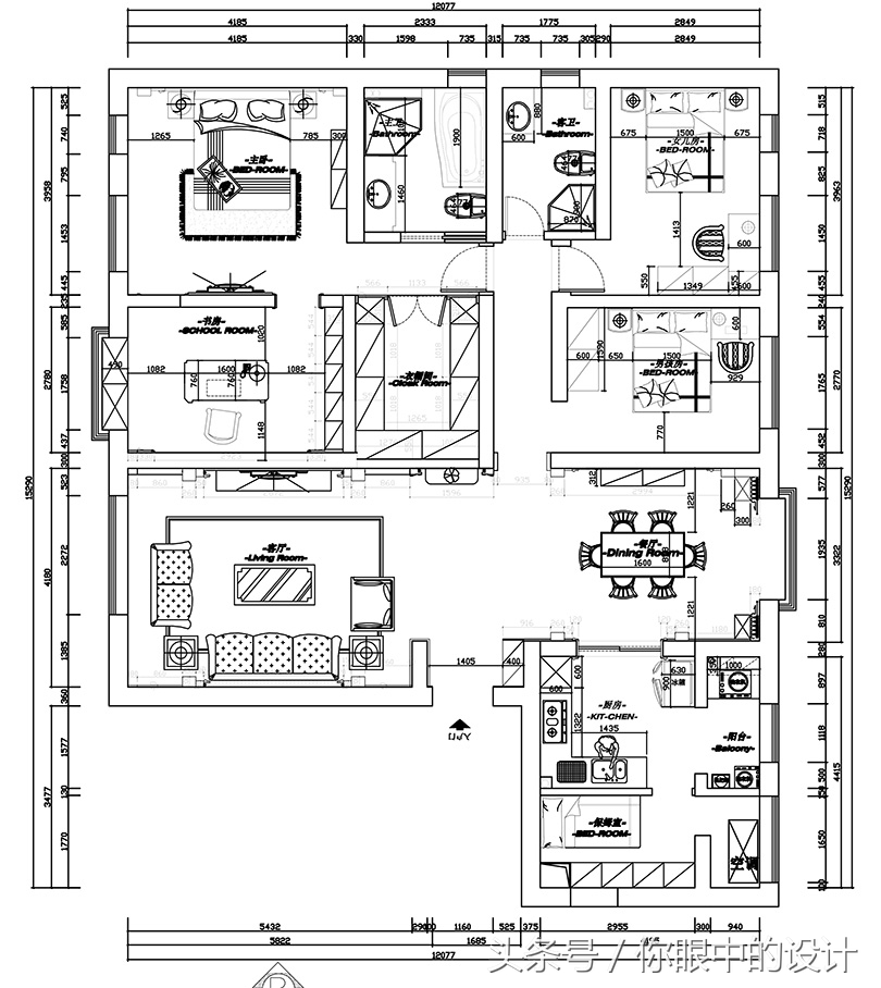
户型布局方案

卧室
服务范围:河南(郑州 新乡 安阳 南阳 鹤壁 焦作 )
设计理念
本案是蓝堡湾190平四居室装修效果图,业主选用了简欧风格,香槟奢华,每一处的细节都是高品质
装修方式:半包+个性化
装修风格:简欧风格
小区户型:四室两厅
建筑面积:190平
小区位置:郑州蓝堡湾

玄关布局

客厅

餐厅

女孩房布局全景

男孩房

户型布局方案

卧室
服务范围:河南(郑州 新乡 安阳 南阳 鹤壁 焦作 )