当代建造语境下的时代感,是对传统装饰语汇的反思和辨析。

方案秉承着传统精神的当代构建为核心理念,尊重形式因循功能的设计原则。方案尝试重构功能界面的过渡与转承的形式,为建构当下空间功能的界限抛砖引玉。设计者从空间的围合关系、界面的材质肌理、装饰的构成手法等方面着手,以此表达时代感的特征,渗透着如同向内的花园一般的理性和秩序。




建筑是住人的机器,住宅更是生活的安放之所。午后阳光透过庭院的栅栏,爬上水性漆的橡木饰面,拂过浅灰色的涂料,到达慵懒的客厅一角,片刻的休憩都能凝固流淌的时光,让情感的陪伴成为建筑的第二次生命。









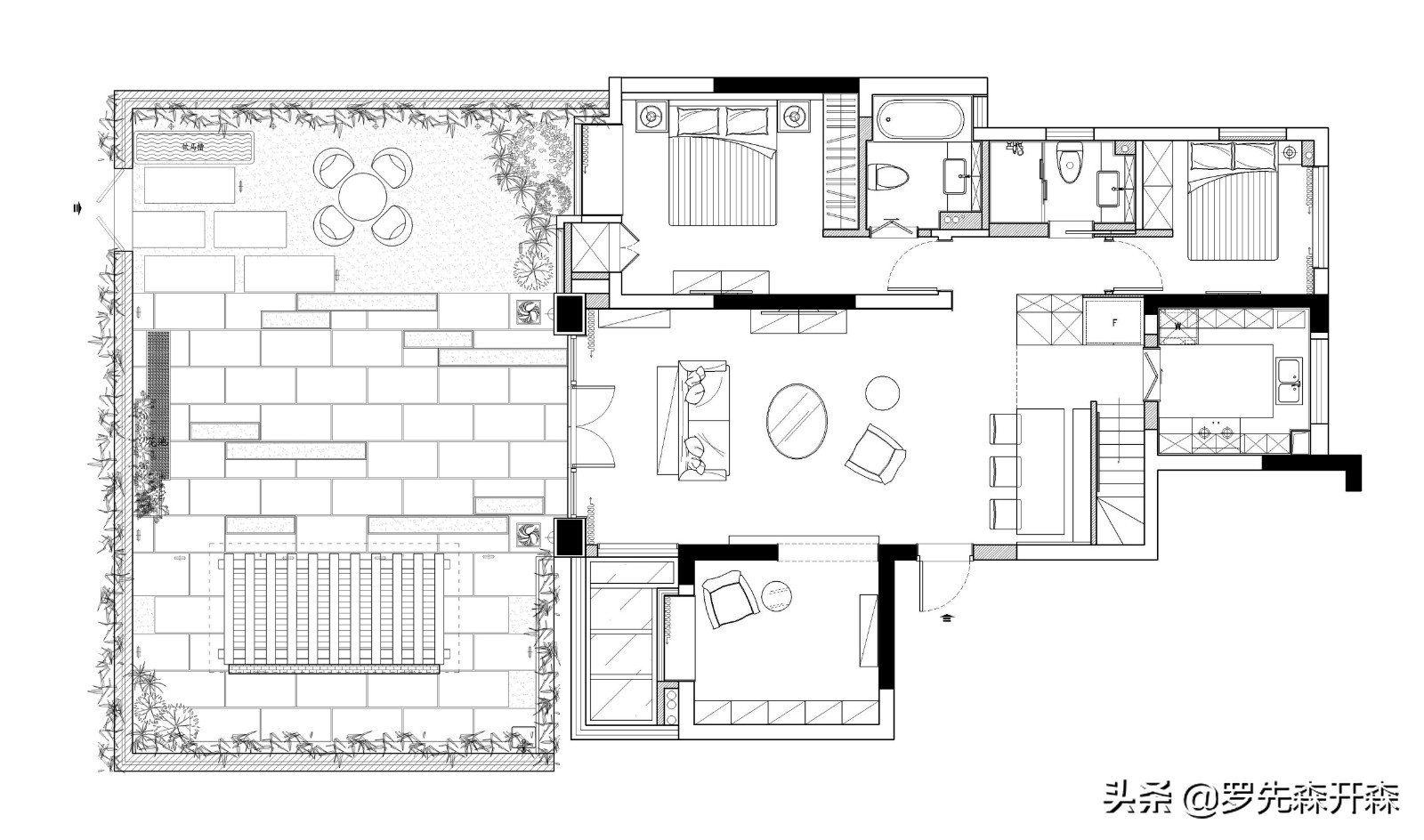
建筑面积:172.49 ㎡ 项目地址:南京市奥克斯钟山府号 设计:陈尚书 主要材质:木饰面、日本木纹壁纸、艺术地坪、进口乳胶漆涂料、芝麻黑石材